Lokacija hiše: Ljubljana Rudnik, Črna vas, 136.00 m2 (prodaja)
- Cena
- 530.000 €
Šifra oglasa: 14249542
-
- Bivalna površina
- 136,00 m²
-
- Leto izgradnje
- 2025
Osnovne informacije
- Vrsta ponudbe
- Prodam
- Lokacija
- Osrednjeslovenska, Ljubljana, Črna vas
- Vrsta hiše
- Dvostanovanjska
- Bivalna površina
- 136,00 m²
- Površina parcele
- 209,00 m²
- Leto izgradnje
- 2025
- Število parkirnih mest
- 2
- Balkon / terasa / atrij
- Balkon
- Vrsta cene
- Skupna cena
- Interna številka oglasa
- HP13461225807
Opis oglasa
Dvostanovanjska hiša – novogradnja, Ljubljana Rudnik – Črna vas, zgrajeno l. 2025, VP+1N, skupna površina 136,50 m2, bivalni prostor 125,50 m2, shramba 2,10 m2, balkon 8,94 m2, zemljišče 209,00 m2. Cena: 530.000 EUR.
OGLASU JE PRILOŽENA VIZUALIZACIJA POTENCIALNE UREDITVE NOTRANJIH PROSTOROV TER ZUNANJOSTI.
V Črni vasi prodamo enoto v novograjeni dvostanovanjski montažni nizkoenergijski hiši. V bližini se nahaja LPP postajališče, restavracija ter številne sprehajalne in rekreacijske površine.
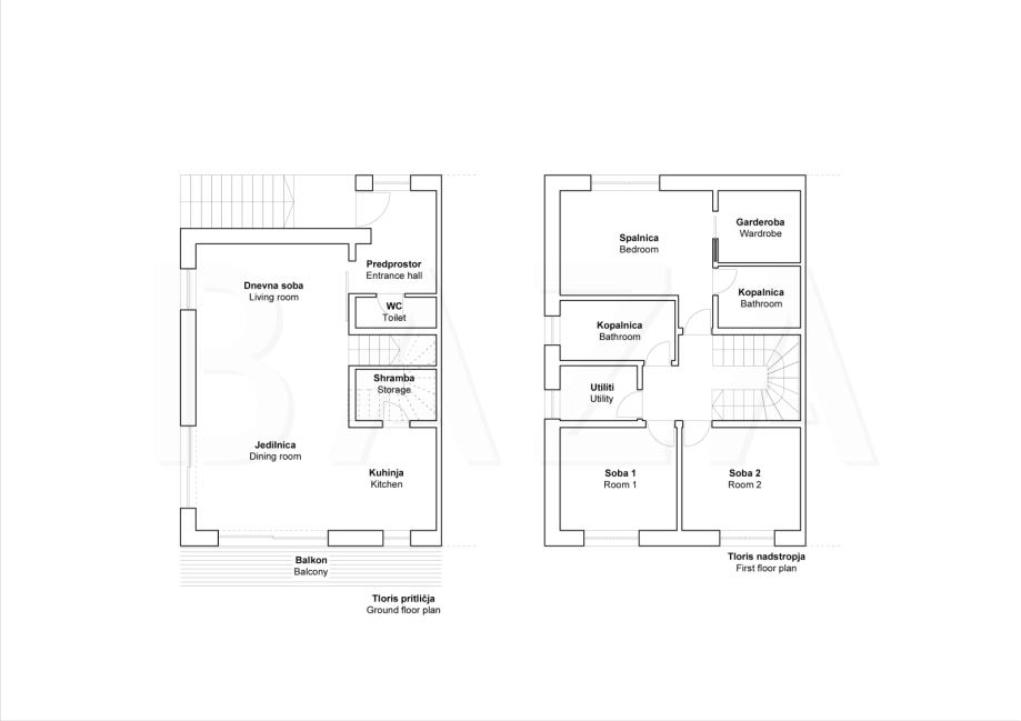
Enota je orientirana v smeri Z-V in obsega pritličje in nadstropje. V pritličju se nahaja vetrolov, dnevni WC, shramba, bivalni prostor s kuhinjo in jedilnico ter balkon. V nadstropju se nahaja utility, kopalnica, dve otroški sobi ter zakonska spalnica z lastno kopalnico in garderobno sobo.
Enoti pripada zemljišče velikosti 209,00 m2, na katerem bo urejeno asfaltirano parkirišče za dva avtomobila ter zelenica.
Hiša bo zgrajena na ključ po najvišjih standardih in bo nizkoenergijska. Ogrevanje je predvideno na toplotno črpalko, prav tako topla sanitarna voda. Stavbno pohištvo bo PVC s trojno zasteklitvijo DECEUNINCK PROFIL ELEGANTE, vhodna vrata DECEUNINCK PROFIL ELEGANTE v protivlomni izvedbi.
Kupec ima možnost izbire vseh finalnih materialov – talnih in stenskih oblog, sanitarne keramike in armatur, notranjih vrat in barve notranjosti, izbira senčil po doplačilu. Cena je za severno enoto in vključuje DDV. Predviden zaključek gradnje je konec leta 2025.
Za objekt je garancijski rok na konstrukcijo 60 let, na strešno kritino 30 let in na stavbno pohištvo 10 let. Za ostale vgradne elemente, materiale in opremo dobaviteljev, se uveljavljajo njihovi garancijski pogoji, ki imajo svoje roke za uveljavljanje le-teh. Veljajo vse zakonske garancije iz ZGO in ZOR.
V primeru zanimanja nas kontaktirajte; Agentka Tamara Gostiša, Tel: 00386-40-626-250, E-mail: tgostisa@bazarealestate.com.
Lepo vabljeni k ogledu.
OGLASU JE PRILOŽENA VIZUALIZACIJA POTENCIALNE UREDITVE NOTRANJIH PROSTOROV TER ZUNANJOSTI.
V Črni vasi prodamo enoto v novograjeni dvostanovanjski montažni nizkoenergijski hiši. V bližini se nahaja LPP postajališče, restavracija ter številne sprehajalne in rekreacijske površine.
Enota je orientirana v smeri Z-V in obsega pritličje in nadstropje. V pritličju se nahaja vetrolov, dnevni WC, shramba, bivalni prostor s kuhinjo in jedilnico ter balkon. V nadstropju se nahaja utility, kopalnica, dve otroški sobi ter zakonska spalnica z lastno kopalnico in garderobno sobo.
Enoti pripada zemljišče velikosti 209,00 m2, na katerem bo urejeno asfaltirano parkirišče za dva avtomobila ter zelenica.
Hiša bo zgrajena na ključ po najvišjih standardih in bo nizkoenergijska. Ogrevanje je predvideno na toplotno črpalko, prav tako topla sanitarna voda. Stavbno pohištvo bo PVC s trojno zasteklitvijo DECEUNINCK PROFIL ELEGANTE, vhodna vrata DECEUNINCK PROFIL ELEGANTE v protivlomni izvedbi.
Kupec ima možnost izbire vseh finalnih materialov – talnih in stenskih oblog, sanitarne keramike in armatur, notranjih vrat in barve notranjosti, izbira senčil po doplačilu. Cena je za severno enoto in vključuje DDV. Predviden zaključek gradnje je konec leta 2025.
Za objekt je garancijski rok na konstrukcijo 60 let, na strešno kritino 30 let in na stavbno pohištvo 10 let. Za ostale vgradne elemente, materiale in opremo dobaviteljev, se uveljavljajo njihovi garancijski pogoji, ki imajo svoje roke za uveljavljanje le-teh. Veljajo vse zakonske garancije iz ZGO in ZOR.
V primeru zanimanja nas kontaktirajte; Agentka Tamara Gostiša, Tel: 00386-40-626-250, E-mail: tgostisa@bazarealestate.com.
Lepo vabljeni k ogledu.
Spletna povezava
Zemljevid
Dodatne informacije
Ogrevanje
Stanje objekta
Podatki o objektu
Možnosti parkiranja
Lega stanovanja
BAZA
Vsi oglasi te trgovine
Uporabnik je telefonsko številko preveril v državi Slovenija
- Naslov: Miklošičeva 30, Osrednjeslovenska, Slovenija
- URL: https://www.bazarealestate.com/
-
- Oglas je objavljen
- 15.04.2025. ob 15:47
- Do poteka še
- do prodaje
- Oglas je prikazan
- 673 -krat
BAZA
Vsi oglasi te trgovine
Uporabnik je telefonsko številko preveril v državi Slovenija
- Naslov: Miklošičeva 30, Osrednjeslovenska, Slovenija
- URL: https://www.bazarealestate.com/
-



















