-
- Vrsta stanovanja
- 3-sobno
-
- Leto izgradnje
- 2025
Osnovne informacije
- Vrsta ponudbe
- Prodam
- Lokacija
- Pomurska, Apače, Apače
- Nadstropje
- 2.
- Skupno število nadstropij v stavbi
- 2
- Vrsta stanovanja
- 3-sobno
- Neto površina
- 73,64 m²
- Leto izgradnje
- 2025
- Vrsta cene
- Skupna cena
Opis oglasa
APAČE - prodamo nov poslovno - stanovanjski objekt,
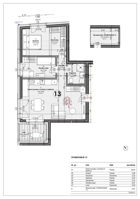
OPIS STANOVANJA 3 sobnega, ki se nahaja v 2. nadstropju objekta, v skupni velikosti 73,64 m2:
- Dnevni bivalni prostor vel. 30,64 m2
- hodnik v velikosti 2,58 m2
- Kopalnica v velikosti 4,33 m2
- Spalnica v velikosti 9,32 m2
- Loža v velikosti 6,05 m2
- Kletni prostor za shrambo v velikosti 5,81m2
Skupni prostori: Vhod v stanovanjski del in klet v keramiki. Vgrajeno dvigalo za prevoz oseb.
Prostor za odpadke in kolesarnica: Zunanji prostori za zabojnike za odpadke so pod nadstrešnicami.
Parkirna mesta so za doplačilo in bodo locirana na zunanjem parkirišču kot nepokrita parkirišča in delno pokrita parkirišča ter v podzemni garaži.
Lokacija: v centru Apač blizu šole in v neposredni bližini trgovine. Smer sever – zahod.
Priključki: bodo definitivno vsi.
Poslovno - stanovanjskega objekta bo vseljiv že v letu 2025.
Pokličete me lahko na mobi 031 632 637 Peter - DOM M5 d.o.o. na katerega sem za Vas vedno dosegljiv IN od kupca ne zahtevamo plačila nobene provizije
OPIS STANOVANJA 3 sobnega, ki se nahaja v 2. nadstropju objekta, v skupni velikosti 73,64 m2:
- Dnevni bivalni prostor vel. 30,64 m2
- hodnik v velikosti 2,58 m2
- Kopalnica v velikosti 4,33 m2
- Spalnica v velikosti 9,32 m2
- Loža v velikosti 6,05 m2
- Kletni prostor za shrambo v velikosti 5,81m2
Skupni prostori: Vhod v stanovanjski del in klet v keramiki. Vgrajeno dvigalo za prevoz oseb.
Prostor za odpadke in kolesarnica: Zunanji prostori za zabojnike za odpadke so pod nadstrešnicami.
Parkirna mesta so za doplačilo in bodo locirana na zunanjem parkirišču kot nepokrita parkirišča in delno pokrita parkirišča ter v podzemni garaži.
Lokacija: v centru Apač blizu šole in v neposredni bližini trgovine. Smer sever – zahod.
Priključki: bodo definitivno vsi.
Poslovno - stanovanjskega objekta bo vseljiv že v letu 2025.
Pokličete me lahko na mobi 031 632 637 Peter - DOM M5 d.o.o. na katerega sem za Vas vedno dosegljiv IN od kupca ne zahtevamo plačila nobene provizije
Zemljevid
Dodatne informacije
Ogrevanje
Stanje objekta
Podatki o objektu
Okolica
Dovoljenja
DOM M5 d.o.o.
Vsi oglasi te trgovine
Uporabnik je telefonsko številko preveril v državi Slovenija
- Naslov: Lendavska ulica 39 B, 9000 Murska sobota, Pomurska, Slovenija
- URL: http://www.dom-m5.com
- E-pošta: varga.peter@siol.net
-
- Oglas je objavljen
- 18.04.2025. ob 09:26
- Do poteka še
- do prodaje
- Oglas je prikazan
- 166 -krat
DOM M5 d.o.o.
Vsi oglasi te trgovine
Uporabnik je telefonsko številko preveril v državi Slovenija
- Naslov: Lendavska ulica 39 B, 9000 Murska sobota, Pomurska, Slovenija
- URL: http://www.dom-m5.com
- E-pošta: varga.peter@siol.net
-








