-
- Bivalna površina
- 290,72 m²
-
- Število sob
- 4
-
- Leto izgradnje
- 2023
Osnovne informacije
- Vrsta ponudbe
- Prodam
- Lokacija
- Izven Slovenije - Hrvaška, Istrska, Poreč
- Število sob
- 4
- Število nadstropij
- Večnadstropna
- Bivalna površina
- 290,72 m²
- Površina parcele
- 676,00 m²
- Leto izgradnje
- 2023
- Število parkirnih mest
- 1
- Energetski razred
- A+ (0 do 15 kWh/m²a) - HR
- Vrsta cene
- Skupna cena
- Interna številka oglasa
- 20964
Opis oglasa
Prodamo vilo z bazenom.
Vila se nahaja v občini Tar in nudi čudovit pogled na morje.
Vila je namenjena 8 osebam.
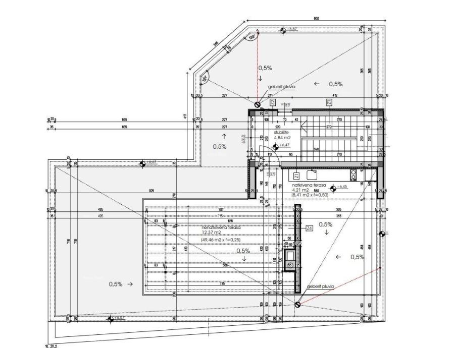
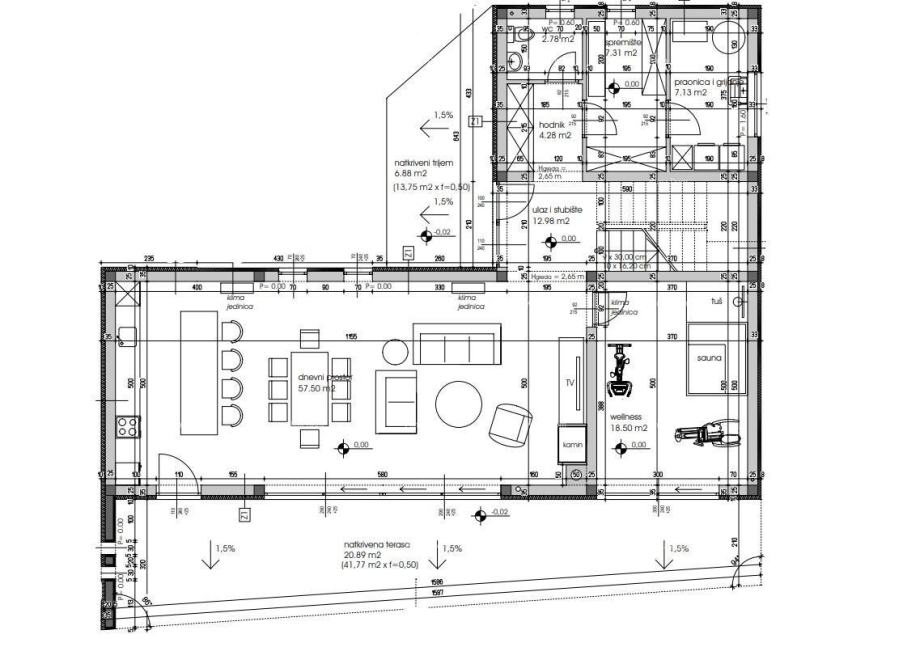
V pritličju objekta je pokrita veranda, hodnik, WC, pralnica, kurilnica/shramba, wellness, dnevna soba, stopniščni del in pokrita terasa.
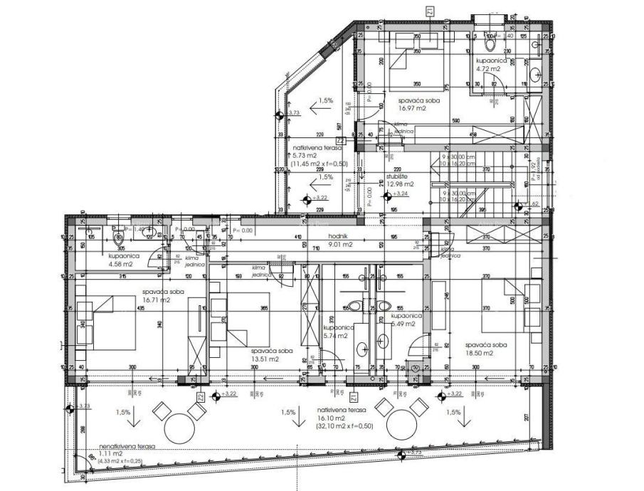
V prvem nadstropju so štiri spalnice s pripadajočimi kopalnicami, hodnik, pokrita in nepokrita terasa.
V drugem nadstropju je stopnišče, pokrita in nepokrita terasa.
Na stenah sanitarij so predvidene keramične ploščice I. razreda v višini 2,20 m, na vseh notranjih talnih površinah pritličja, kakor tudi sanitarij v nadstropju, je predvidena polaganje keramičnih ploščic I. razreda. kot končna talna obloga. Na vseh notranjih talnih površinah prvega nadstropja je predvidena polaganje parketa kot zaključne talne obloge, razen v sanitarijah, kjer je predvidena polaganje keramičnih ploščic I razreda.
Ogrevanje v stanovanjskem objektu je izvedeno s toplotno črpalko na električni pogon preko talnega gretja. Kamin v dnevni sobi lahko služi tudi kot dodaten vir ogrevanja. Hlajenje v objektu je zagotovljeno s klimatskimi napravami.
Na dvorišču vile je zunanji bazen velikosti 8m*4m, predvidena globina vode je 135 cm.
Vseljivo konec leta 2024.
Za dodatne informacije in ogled smo vam na voljo:
+385 91 6115706
+385 98 420 885
azra@almadominvest.com
Vila se nahaja v občini Tar in nudi čudovit pogled na morje.
Vila je namenjena 8 osebam.
V pritličju objekta je pokrita veranda, hodnik, WC, pralnica, kurilnica/shramba, wellness, dnevna soba, stopniščni del in pokrita terasa.
V prvem nadstropju so štiri spalnice s pripadajočimi kopalnicami, hodnik, pokrita in nepokrita terasa.
V drugem nadstropju je stopnišče, pokrita in nepokrita terasa.
Na stenah sanitarij so predvidene keramične ploščice I. razreda v višini 2,20 m, na vseh notranjih talnih površinah pritličja, kakor tudi sanitarij v nadstropju, je predvidena polaganje keramičnih ploščic I. razreda. kot končna talna obloga. Na vseh notranjih talnih površinah prvega nadstropja je predvidena polaganje parketa kot zaključne talne obloge, razen v sanitarijah, kjer je predvidena polaganje keramičnih ploščic I razreda.
Ogrevanje v stanovanjskem objektu je izvedeno s toplotno črpalko na električni pogon preko talnega gretja. Kamin v dnevni sobi lahko služi tudi kot dodaten vir ogrevanja. Hlajenje v objektu je zagotovljeno s klimatskimi napravami.
Na dvorišču vile je zunanji bazen velikosti 8m*4m, predvidena globina vode je 135 cm.
Vseljivo konec leta 2024.
Za dodatne informacije in ogled smo vam na voljo:
+385 91 6115706
+385 98 420 885
azra@almadominvest.com
Spletna povezava
Zemljevid
Dodatne informacije
Ogrevanje
Lega stanovanja
Kopalnica
ALMA DOM
Vsi oglasi te trgovine
Uporabnik je telefonsko številko preveril v državi Hrvaška
- Naslov: Hrvaška, Hrvaška
- URL: https://therealestatecroatia.com/
-
- Oglas je objavljen
- 24.11.2025. ob 07:35
- Do poteka še
- do prodaje
- Oglas je prikazan
- 286 -krat
ALMA DOM
Vsi oglasi te trgovine
Uporabnik je telefonsko številko preveril v državi Hrvaška
- Naslov: Hrvaška, Hrvaška
- URL: https://therealestatecroatia.com/
-



















