ZADAR, ZATON - Vrhunski penthouse z dvigalom 45 metrov od plaže! A10 (prodaja)
- Cena
- 946.890 €
Šifra oglasa: 15015890
-
- Bivalna površina
- 150,38 m²
-
- Vrsta stanovanja
- 3-sobno
Osnovne informacije
- Vrsta ponudbe
- Prodam
- Lokacija
- Izven Slovenije - Hrvaška, Zadarska, Nin
- Umeščenost stanovanja
- V večstanovanjski stavbi
- Nadstropje
- Penthouse
- Skupno število nadstropij v stavbi
- 2
- Vrsta stanovanja
- 3-sobno
- Bivalna površina
- 150,38 m²
- Balkon / terasa / atrij
- Terasa
- Vrsta cene
- Skupna cena
- Interna številka oglasa
- 41864
Opis oglasa
ZADAR, ZATON - Vrhunski penthouse z dvigalom 45 metrov od plaže! A10.
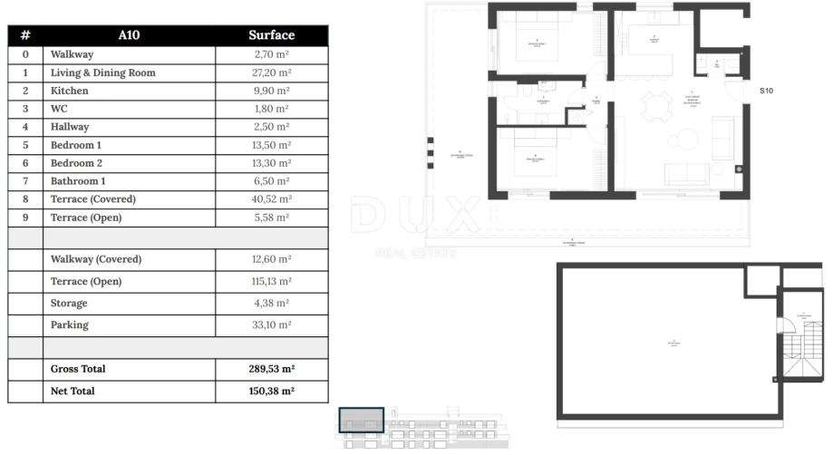
V mirnem in očarljivem mestecu Zaton, le 45 metrov od plaže, se nahaja nova moderna stavba z dvema vhodoma in dvema dvigaloma, ki skriva deset ekskluzivnih apartmajev. Vsak od njih je bil skrbno zasnovan za maksimalno udobje in uživanje - apartmaji v pritličju so obogateni z zasebnimi vrtovi, apartmaji v srednjih nadstropjih imajo prostorne terase, penthouse pa ponujajo strešne oaze z instalacijami za letne kuhinje in jacuzzije, idealne za sproščena večerna druženja ob sončnem zahodu. Vsi apartmaji so opremljeni s klimatsko napravo v vsaki sobi, penthouse pa imajo dodatno talno ogrevanje po celotni notranjosti. Penthouse A10 v drugem nadstropju z neto površino 150,38 m2 združuje funkcionalnost in eleganco. Razporeditev vključuje dve spalnici, kopalnico, dodatno stranišče, kuhinjo in zračno dnevno sobo. Odlikuje ga pokrita terasa, ki odlično povezuje notranji in zunanji prostor, ter prostorna strešna terasa z dih jemajočim pogledom na morje. Stanovanju pripadata tudi dve parkirni mesti, eno zunaj in eno v garaži, ter shramba, oprema pa vključuje talno ogrevanje po celotnem stanovanju, električne rolete, varnostna vrata in video domofon. Kupci imajo tudi možnost prevzema popolnoma opremljene notranjosti, kar jim omogoča vselitev brez dodatnih skrbi. Posebna ugodnost – kupec je oproščen plačila davka na nepremičnine, ker je prodajalec pravna oseba. Zaton je znan po dolgih prodnatih plažah, kristalno čistem morju in mirnem vzdušju, ki združuje tradicionalno dalmatinsko vzdušje s sodobnimi udobji. V neposredni bližini se nahaja letovišče s številnimi ugodnostmi – restavracijami, kavarnami, športnimi igrišči in wellness programi, zaradi česar je ta kraj idealen tako za počitnice kot za življenje skozi vse leto. Le deset minut vožnje stran je Zadar, mesto bogato z zgodovino in kulturo, svetovno znano po rimskih forumih, romanskih cerkvah, Morskih orglah in Pozdravu soncu. Če iščete kombinacijo razkošja, udobja in mediteranskega načina življenja, nas kontaktirajte za več informacij in za dogovor o ogledu.
Spoštovane stranke, provizija agencije se obračunava v skladu s Splošnimi poslovnimi pogoji www.dux-nekretnine.hr/opci-uvjeti-poslovanja
ID KOD AGENCIJE: 41864
Josip Šestan
Agent s licencom
Mob: +385 91 799 6986
Tel: +385 91 480 8808
E-mail: josip@dux-dalmacija.com
www.dux-dalmacija.com
V mirnem in očarljivem mestecu Zaton, le 45 metrov od plaže, se nahaja nova moderna stavba z dvema vhodoma in dvema dvigaloma, ki skriva deset ekskluzivnih apartmajev. Vsak od njih je bil skrbno zasnovan za maksimalno udobje in uživanje - apartmaji v pritličju so obogateni z zasebnimi vrtovi, apartmaji v srednjih nadstropjih imajo prostorne terase, penthouse pa ponujajo strešne oaze z instalacijami za letne kuhinje in jacuzzije, idealne za sproščena večerna druženja ob sončnem zahodu. Vsi apartmaji so opremljeni s klimatsko napravo v vsaki sobi, penthouse pa imajo dodatno talno ogrevanje po celotni notranjosti. Penthouse A10 v drugem nadstropju z neto površino 150,38 m2 združuje funkcionalnost in eleganco. Razporeditev vključuje dve spalnici, kopalnico, dodatno stranišče, kuhinjo in zračno dnevno sobo. Odlikuje ga pokrita terasa, ki odlično povezuje notranji in zunanji prostor, ter prostorna strešna terasa z dih jemajočim pogledom na morje. Stanovanju pripadata tudi dve parkirni mesti, eno zunaj in eno v garaži, ter shramba, oprema pa vključuje talno ogrevanje po celotnem stanovanju, električne rolete, varnostna vrata in video domofon. Kupci imajo tudi možnost prevzema popolnoma opremljene notranjosti, kar jim omogoča vselitev brez dodatnih skrbi. Posebna ugodnost – kupec je oproščen plačila davka na nepremičnine, ker je prodajalec pravna oseba. Zaton je znan po dolgih prodnatih plažah, kristalno čistem morju in mirnem vzdušju, ki združuje tradicionalno dalmatinsko vzdušje s sodobnimi udobji. V neposredni bližini se nahaja letovišče s številnimi ugodnostmi – restavracijami, kavarnami, športnimi igrišči in wellness programi, zaradi česar je ta kraj idealen tako za počitnice kot za življenje skozi vse leto. Le deset minut vožnje stran je Zadar, mesto bogato z zgodovino in kulturo, svetovno znano po rimskih forumih, romanskih cerkvah, Morskih orglah in Pozdravu soncu. Če iščete kombinacijo razkošja, udobja in mediteranskega načina življenja, nas kontaktirajte za več informacij in za dogovor o ogledu.
Spoštovane stranke, provizija agencije se obračunava v skladu s Splošnimi poslovnimi pogoji www.dux-nekretnine.hr/opci-uvjeti-poslovanja
ID KOD AGENCIJE: 41864
Josip Šestan
Agent s licencom
Mob: +385 91 799 6986
Tel: +385 91 480 8808
E-mail: josip@dux-dalmacija.com
www.dux-dalmacija.com
Spletna povezava
Zemljevid
Dodatne informacije
Ogrevanje
Podatki o objektu
Možnosti parkiranja
Dux nekretnine
Vsi oglasi te trgovine
Uporabnik je telefonsko številko preveril v državi Hrvaška
- Naslov: Tizianova 8, 51000 Rijeka, Hrvaška, Hrvaška
- URL: https://www.dux-nekretnine.hr/
-
- Oglas je objavljen
- 30.10.2025. ob 12:23
- Do poteka še
- do prodaje
- Oglas je prikazan
- 89 -krat
Dux nekretnine
Vsi oglasi te trgovine
Uporabnik je telefonsko številko preveril v državi Hrvaška
- Naslov: Tizianova 8, 51000 Rijeka, Hrvaška, Hrvaška
- URL: https://www.dux-nekretnine.hr/
-

















