UGODNO PRODAMO ZAZIDLJIVO GRADBENO PARCELO, 2,5km iz centra, 1000 m2
- Cena
- 86.000 €
-
Želite na boljše? Preverite stanovanjski kredit OTP banke.OglasOglaševalec OTP banka d.d.
Zakaj vidim ta oglas?
Uporaba omejenih podatkov za izbiro oglasov: oglasi, ki se vam prikazujejo v tej storitvi, lahko temeljijo na omejenih podatkih, kot so spletna stran ali aplikacija, ki jo trenutno uporabljate, vaša približna lokacija, vrsta naprave ali vsebine, s katerimi ste bili v interakciji (npr. za omejevanje pogostosti prikazovanja oglasov).
Šifra oglasa: 13717422
-
- Površina
- 1.000,00 m²
-
- Vrsta posesti
- Zazidljiva
Osnovne informacije
- Vrsta ponudbe
- Prodam
- Lokacija
- Savinjska, Celje, Center
- Vrsta posesti
- Zazidljiva
- Namembnost
- stanovanjsko
- Površina
- 1.000,00 m²
- Vrsta cene
- Skupna cena
Opis oglasa
UGODNO PRODAMO ZAZIDLJIVO GRADBENO PARCELO 1000m2, 2,5km iz centra Celje na mirni in soncni lokaciji, z dobrimi sosedi:)
S pogledom na Jozefov hrib, oddaljenost cca. 700m, lepimi sprehodi do Celjskega gradu! Dostop z Javorjeve ulice, Celje!
Blizina avtobusa, trgovine in samega mesta s solami in vsemi ostali potrebnimi ustanovami!
Parcela k.o.1082 Teharje 981/4, od tega zazidljivi del 719m2, ostalo so zelene povrsine, da bo komunalni prispevek manjsi!
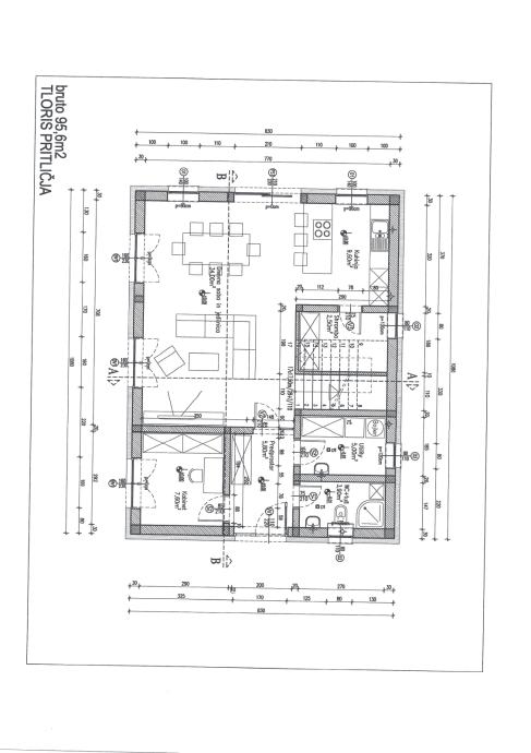
Ze placani nacrti za postavitev stanovanjskega objekta! V PRILOGI TUDI SLIKE MOZNE HISE IN POSTAVITEV TLORISA PRILICJA IN 1.NADSTOPJA 191m2, uporabnih povrsin 141m2:) Pripravljeni vsi papirji za vlogo za gradnjo in placilo kumunalnega prispevka!:)
OPPN objavljen v Uradnem listu st.87, stran 8458 11.10.2024
Ogled mozen na lokaciji!
Samo resni:)
Hvala/LP/Evgen Kores
041324322
S pogledom na Jozefov hrib, oddaljenost cca. 700m, lepimi sprehodi do Celjskega gradu! Dostop z Javorjeve ulice, Celje!
Blizina avtobusa, trgovine in samega mesta s solami in vsemi ostali potrebnimi ustanovami!
Parcela k.o.1082 Teharje 981/4, od tega zazidljivi del 719m2, ostalo so zelene povrsine, da bo komunalni prispevek manjsi!
Ze placani nacrti za postavitev stanovanjskega objekta! V PRILOGI TUDI SLIKE MOZNE HISE IN POSTAVITEV TLORISA PRILICJA IN 1.NADSTOPJA 191m2, uporabnih povrsin 141m2:) Pripravljeni vsi papirji za vlogo za gradnjo in placilo kumunalnega prispevka!:)
OPPN objavljen v Uradnem listu st.87, stran 8458 11.10.2024
Ogled mozen na lokaciji!
Samo resni:)
Hvala/LP/Evgen Kores
041324322
Zemljevid
Dodatne informacije
Komunalni priključki
Dovoljenja
ek1
Vsi oglasi tega oglaševalca
Uporabnik je telefonsko številko preveril v državi Slovenija
Uporabnik ni trgovec in zanj ne veljajo določbe EU o varstvu potrošnikov.
- Naslov: Cvetlicna 3, 3000 Celje, Savinjska, Slovenija
-
- Oglas je objavljen
- 03.04.2026. ob 09:52
- Do poteka še
- Oglas je prikazan
- 2896 -krat
ek1
Vsi oglasi tega oglaševalca
Uporabnik je telefonsko številko preveril v državi Slovenija
Uporabnik ni trgovec in zanj ne veljajo določbe EU o varstvu potrošnikov.
- Naslov: Cvetlicna 3, 3000 Celje, Savinjska, Slovenija
-












