Gorski Kotar, Brod Moravice - EDINSTVENA NALOŽBA – GOZDARSKA HIŠA S PR
- Cena
- 80.000 €
Šifra oglasa: 14173187
-
- Površina
- 2.180,00 m²
-
- Vrsta posesti
- Zazidljiva
Osnovne informacije
- Vrsta ponudbe
- Prodam
- Lokacija
- Izven Slovenije - Hrvaška, Primorsko-goranska, Brod Moravice
- Vrsta posesti
- Zazidljiva
- Površina
- 2.180,00 m²
- Vrsta cene
- Skupna cena
- Interna številka oglasa
- 2485
Opis oglasa
EDINSTVENA NALOŽBENA PRILOŽNOST – GOZDARSKA HIŠA S PROJEKTOM IN GRADBENO DOVOLJENJE
Na osamljenem območju, obdano z neokrnjeno naravo blizu Brod Moravic, se nahaja izjemna nepremičnina – gozdno zemljišče velikosti 2.180 m² s konceptualnim načrtom, glavnim projektom in pridobljenim gradbenim dovoljenjem za gradnjo gozdarske hiše.
To ni običajna nepremičnina – gre za projekt, zasnovan za strokovnjake v gozdarski panogi ali vlagatelje, ki prepoznajo potencial razvoja v tem specializiranem sektorju.
PODROBNOSTI PROJEKTA:
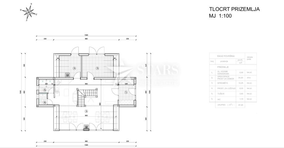
Skupna bruto tlorisna površina: 110 m²
Etažnost: Pritličje + mansarda
Največja dovoljena zazidana površina: 400 m²
Tip gradnje: A-frame lesena konstrukcija, popolnoma usklajena z naravnim okoljem
RAZPOREDITEV:
✔ Pritličje – funkcionalni prostori za gozdarske delavce, vključno z garderobo, sanitarnimi prostori s prhami, manjšo kuhinjo in jedilnico, kotlovnico in skladiščem.
✔ Mansarda – tri spalnice in kopalnica, idealne za začasno nastanitev osebja ali gostov.
INFRASTRUKTURA IN MOŽNOSTI:
Parcela je očiščena in pripravljena za gradnjo, z dostopno cesto in čudovitim pogledom na gozdno pokrajino.
Samostojna infrastruktura: predvidena oskrba z vodo preko cisterne s hidrofornim sistemom, greznica za odvodnjavanje ter možnost plinskega rezervoarja ali električnega agregata.
Možnost priključitve na električno omrežje – električni priključek je oddaljen le 50 metrov.
Nepremičnina se prodaja kot del podjetja, registriranega za gozdarsko dejavnost.
GLAVNE PREDNOSTI:
✅ Kupec ne plača davka na promet nepremičnin, saj je nepremičnina vključena v sistem DDV.
✅ Vključeno gradbeno dovoljenje in glavni projekt – ni dodatnih upravnih ovir pred začetkom gradnje.
✅ Odlična priložnost za gozdarske strokovnjake ali vlagatelje, ki želijo razviti specializirano nastanitev v srcu narave.
Ta nepremičnina ni za vsakogar – je pa popolna za tiste, ki razumejo njeno pravo vrednost.
Za dodatne informacije in dogovor o ogledu nas kontaktirajte.
ID KOD AGENCIJE: 2485
Eni Kesić
Prodajni predstavnik
Mob: +385 99 302 5012
Tel: +385 51 302 501
E-mail: eni.kesic@starsrealestate.hr
https://starsrealestate.hr
Na osamljenem območju, obdano z neokrnjeno naravo blizu Brod Moravic, se nahaja izjemna nepremičnina – gozdno zemljišče velikosti 2.180 m² s konceptualnim načrtom, glavnim projektom in pridobljenim gradbenim dovoljenjem za gradnjo gozdarske hiše.
To ni običajna nepremičnina – gre za projekt, zasnovan za strokovnjake v gozdarski panogi ali vlagatelje, ki prepoznajo potencial razvoja v tem specializiranem sektorju.
PODROBNOSTI PROJEKTA:
Skupna bruto tlorisna površina: 110 m²
Etažnost: Pritličje + mansarda
Največja dovoljena zazidana površina: 400 m²
Tip gradnje: A-frame lesena konstrukcija, popolnoma usklajena z naravnim okoljem
RAZPOREDITEV:
✔ Pritličje – funkcionalni prostori za gozdarske delavce, vključno z garderobo, sanitarnimi prostori s prhami, manjšo kuhinjo in jedilnico, kotlovnico in skladiščem.
✔ Mansarda – tri spalnice in kopalnica, idealne za začasno nastanitev osebja ali gostov.
INFRASTRUKTURA IN MOŽNOSTI:
Parcela je očiščena in pripravljena za gradnjo, z dostopno cesto in čudovitim pogledom na gozdno pokrajino.
Samostojna infrastruktura: predvidena oskrba z vodo preko cisterne s hidrofornim sistemom, greznica za odvodnjavanje ter možnost plinskega rezervoarja ali električnega agregata.
Možnost priključitve na električno omrežje – električni priključek je oddaljen le 50 metrov.
Nepremičnina se prodaja kot del podjetja, registriranega za gozdarsko dejavnost.
GLAVNE PREDNOSTI:
✅ Kupec ne plača davka na promet nepremičnin, saj je nepremičnina vključena v sistem DDV.
✅ Vključeno gradbeno dovoljenje in glavni projekt – ni dodatnih upravnih ovir pred začetkom gradnje.
✅ Odlična priložnost za gozdarske strokovnjake ali vlagatelje, ki želijo razviti specializirano nastanitev v srcu narave.
Ta nepremičnina ni za vsakogar – je pa popolna za tiste, ki razumejo njeno pravo vrednost.
Za dodatne informacije in dogovor o ogledu nas kontaktirajte.
ID KOD AGENCIJE: 2485
Eni Kesić
Prodajni predstavnik
Mob: +385 99 302 5012
Tel: +385 51 302 501
E-mail: eni.kesic@starsrealestate.hr
https://starsrealestate.hr
Spletna povezava
Zemljevid
Stars Real Estate
Vsi oglasi te trgovine
Uporabnik je telefonsko številko preveril v državi Hrvaška
- Naslov: Ciottina 8c, 51000 Rijeka, Hrvaška, Hrvaška
-
- Oglas je objavljen
- 12.12.2025. ob 08:09
- Do poteka še
- do prodaje
- Oglas je prikazan
- 2299 -krat
Stars Real Estate
Vsi oglasi te trgovine
Uporabnik je telefonsko številko preveril v državi Hrvaška
- Naslov: Ciottina 8c, 51000 Rijeka, Hrvaška, Hrvaška
-








