-
- Bivalna površina
- 194,50 m²
-
- Število sob
- 5
-
- Leto izgradnje
- 1998
Osnovne informacije
- Vrsta ponudbe
- Prodam
- Lokacija
- Pomurska, Apače, Žiberci
- Število sob
- 5
- Število nadstropij
- Enonadstropna
- Vrsta hiše
- Samostojna
- Bivalna površina
- 194,50 m²
- Neto površina
- 126,60 m²
- Površina parcele
- 1.197,00 m²
- Leto izgradnje
- 1998
- Opremljenost in stanje
- Popolnoma opremljeno
- Balkon / terasa / atrij
- Balkon, Terasa
- Zunanje površine in oprema
- Vrt/dvorišče, Lopa za shranjevanje
- Vrsta cene
- Skupna cena
- Interna številka oglasa
- HP13461225864
Opis oglasa
Samostojna hiša, Pomurska, Apače, zgrajeno l. 1998, P+1, neto tlorisna površina 194,50 m2, od tega bivalni prostor 126,60 m2, klet 16,70 m2, terasa in balkon v skupni površini 20,00 m2, garažni parkirni prostor v velikosti 31,20 m2, pripadajoče zemljišče v velikosti 1197,00, dodatna garaža v velikosti 33,00 m2. Cena: 219.000 EUR.
Posredujemo pri prodaji odlično vzdrževane samostojne družinske hiše, ki se nahaja v mirnem naselju pred Apačami. Lokacija je izjemno privlačna zaradi hitre povezave do sosednje Avstrije, v bližini je vsa potrebna infrastruktura.
Hiša se ponaša s prostornim in funkcionalnim tlorisom, dobro razporeditvijo prostorov ter kakovostnimi vgrajenimi materiali.
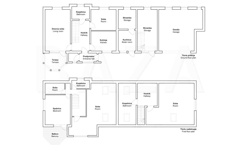
Bivalni prostor v pritličju obsega hodnik s stopniščem, kopalnico, kuhinjo z jedilnico, prostorno dnevno sobo, ki vodi na pokrito teraso ter dve sobi. V nadstropju je dodatna kopalnica, dodatni dve večji sobi ter shramba.
Iz zunanje strani objekta je ločen vhod v dodatne prostore – v pritličju se nahajata kurilnica in shramba/delavnica, nad njima pa odprt, delno izdelan prostor, ki nudi možnost preureditve v samostojno stanovanjsko enoto ali dodate funkcionalne površine, kot je npr. atelje, pisarna, telovadnica in podobno.
Na parceli se dodatno nahaja manjša garaža, ki nudi dodatno pokrito parkirišče in prostor za shranjevanje.
Hiša je klasične opečne gradnje, grajena kvalitetno in izjemno lepo vzdrževana. Novejša PVC troslojna okna so bila nameščena v letu 2020.
Ogrevanje je urejeno s centralno kurjavo – v hiši so nameščeni radiatorji, stanovanje pa je opremljeno tudi z dvema klimatskima napravama - hlajenjem, kar zagotavlja prijetno bivalno klimo skozi vse leto.
Prodaja se z vso razpoložljivo opremo, ki je lepo vzdrževana in ohranjena.
Dovolj velika, ravna in sončna parcela je izjemno lepo urejena, nudi oblico miru in zasebnosti, na njej se nahaja krasen vrt, za košnjo pa poskrbi robotska kosilnica.
Hiša predstavlja idealno priložnost za družino, ki si želi dom v mirnem in urejenem okolju blizu narave, hkrati pa le nekaj minut od ključne infrastrukture.
POGOJ PRODAJE: Pogoj lastnika nepremičnine je, da kupec v primeru realizacije prodaje/nakupa nepremičnine, povrne prodajalcu strošek agencijske provizije v višini 2 % od pogodbeno dogovorjene prodajne vrednosti nepremičnine + DDV.
V primeru zanimanja nas kontaktirajte; Agentka Barbara Pečenik, Tel: 00386-40-626-220, E-mail: bpecenik@bazarealestate.com.
Lepo vabljeni k ogledu.
Posredujemo pri prodaji odlično vzdrževane samostojne družinske hiše, ki se nahaja v mirnem naselju pred Apačami. Lokacija je izjemno privlačna zaradi hitre povezave do sosednje Avstrije, v bližini je vsa potrebna infrastruktura.
Hiša se ponaša s prostornim in funkcionalnim tlorisom, dobro razporeditvijo prostorov ter kakovostnimi vgrajenimi materiali.
Bivalni prostor v pritličju obsega hodnik s stopniščem, kopalnico, kuhinjo z jedilnico, prostorno dnevno sobo, ki vodi na pokrito teraso ter dve sobi. V nadstropju je dodatna kopalnica, dodatni dve večji sobi ter shramba.
Iz zunanje strani objekta je ločen vhod v dodatne prostore – v pritličju se nahajata kurilnica in shramba/delavnica, nad njima pa odprt, delno izdelan prostor, ki nudi možnost preureditve v samostojno stanovanjsko enoto ali dodate funkcionalne površine, kot je npr. atelje, pisarna, telovadnica in podobno.
Na parceli se dodatno nahaja manjša garaža, ki nudi dodatno pokrito parkirišče in prostor za shranjevanje.
Hiša je klasične opečne gradnje, grajena kvalitetno in izjemno lepo vzdrževana. Novejša PVC troslojna okna so bila nameščena v letu 2020.
Ogrevanje je urejeno s centralno kurjavo – v hiši so nameščeni radiatorji, stanovanje pa je opremljeno tudi z dvema klimatskima napravama - hlajenjem, kar zagotavlja prijetno bivalno klimo skozi vse leto.
Prodaja se z vso razpoložljivo opremo, ki je lepo vzdrževana in ohranjena.
Dovolj velika, ravna in sončna parcela je izjemno lepo urejena, nudi oblico miru in zasebnosti, na njej se nahaja krasen vrt, za košnjo pa poskrbi robotska kosilnica.
Hiša predstavlja idealno priložnost za družino, ki si želi dom v mirnem in urejenem okolju blizu narave, hkrati pa le nekaj minut od ključne infrastrukture.
POGOJ PRODAJE: Pogoj lastnika nepremičnine je, da kupec v primeru realizacije prodaje/nakupa nepremičnine, povrne prodajalcu strošek agencijske provizije v višini 2 % od pogodbeno dogovorjene prodajne vrednosti nepremičnine + DDV.
V primeru zanimanja nas kontaktirajte; Agentka Barbara Pečenik, Tel: 00386-40-626-220, E-mail: bpecenik@bazarealestate.com.
Lepo vabljeni k ogledu.
Spletna povezava
Zemljevid
Dodatne informacije
Ogrevanje
Podatki o objektu
Možnosti parkiranja
Lega stanovanja
Kopalnica
BAZA
Vsi oglasi te trgovine
Uporabnik je telefonsko številko preveril v državi Slovenija
- Naslov: Miklošičeva 30, Osrednjeslovenska, Slovenija
- URL: https://www.bazarealestate.com/
-
- Oglas je objavljen
- 10.12.2025. ob 14:13
- Do poteka še
- do prodaje
- Oglas je prikazan
- 1174 -krat
BAZA
Vsi oglasi te trgovine
Uporabnik je telefonsko številko preveril v državi Slovenija
- Naslov: Miklošičeva 30, Osrednjeslovenska, Slovenija
- URL: https://www.bazarealestate.com/
-



















