Ta oglas ni aktiven.
Prebrskaj podobne oglase.
-
- Bivalna površina
- 159,00 m²
-
- Število sob
- 4
-
- Leto izgradnje
- 2024
Osnovne informacije
- Vrsta ponudbe
- Prodam
- Lokacija
- Osrednjeslovenska, Vrhnika, Bevke
- Število sob
- 4
- Število nadstropij
- Enonadstropna
- Vrsta hiše (gradnja)
- Zidana hiša (beton, opeka)
- Vrsta hiše
- Dvostanovanjska
- Bivalna površina
- 159,00 m²
- Neto površina
- 148,64 m²
- Površina parcele
- 326,00 m²
- Leto izgradnje
- 2024
- Število parkirnih mest
- 2
- Balkon / terasa / atrij
- Terasa
- Zunanje površine in oprema
- Vrt/dvorišče, Vrtna uta
- Vrsta cene
- Skupna cena
- Interna številka oglasa
- HP13461225622
Opis oglasa
Enota B v dvostanovanjski hiši, Ljubljana – Bevke, novogradnja, pričetek gradnje 2024, 3. PGF, skupna površina 159 m2, bivalni prostor 148,64 m2, dodatna površina v velikosti 40 m2 v mansardi. Enoti pripada zemljišče v velikosti 326m2, skupna dovozna pot 85 m2, ter dve parkirni mesti. Predviden zaključek gradnje pomlad 2025. Cena: 364.000 EUR z vključenim 9,5% DDV.
V mirnem naselju Bevke, le 6 minut od novega avtocestnega priključka Ljubljana Dragomer, prodajamo enoto v dvostanovanjski hiši. Naselje Bevke, ki se nahaja v neposredni bližini Ljubljane, je priljubljeno zaradi svoje mirne in zelene okolice, hkrati pa omogoča hitro in enostavno dostopnost do celotne infrastrukture.
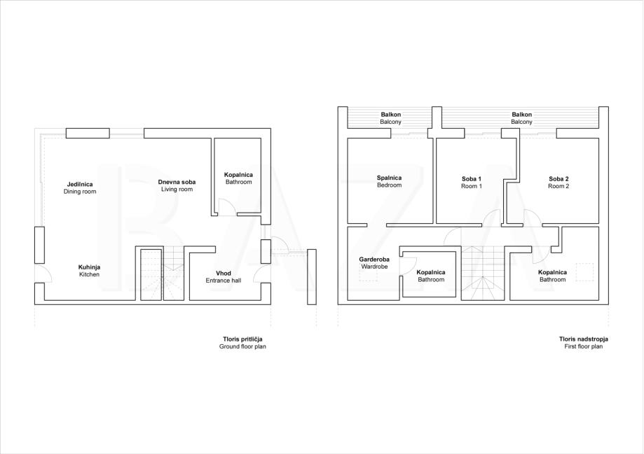
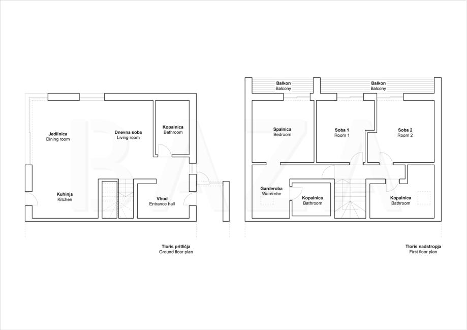
Tlorisna zasnova obsega tri etaže (P+1+M). Bivalna površina pritličja in nadstropja obsega neto velikost 148,64 m2. V mansardi je predviden dodatni prostor v velikosti 40 m2 katerega lahko prilagodite svojim potrebam. V pritličju se nahaja predprostor, garderoba, ločene sanitarije, tehnični prostor, shramba pod stopnicami, dnevno bivalni prostor s kuhinjo in jedilnico ter izhodom na pokrito teraso. V nadstropju je hodnik, garderoba, spalnica, dve kopalnici ter dve sobi. Tloris nudi funkcionalno razporeditev z veliko naravne svetlobe v vseh prostorih, saj je enota orientirana na jugo-vzhod, ter severo-zahod. Hiša se nahaja na v slepi ulici v naselju individualnih hiš.
Objekt je betonsko opečnate gradnje in je zgrajen iz kakovostnih materialov.
Vgrajena so visoko kvalitetna troslojna PVC okna z zunanjimi žaluzijami na električni pogon in predpriprava za komarnike, debelina izolacije sten je 20 cm, ogrevanje je predvideno s toplotno črpalko voda-zrak ter s talnim gretjem. Predvidena je tudi predpriprava za sončno elektrarno, električno polnilnico, kamin (dimnik), ter prezračevalni sistem.
Hiša bo imela vse priključke (voda, elektrika, priklop na čistilno napravo, optika).
Enota je zgrajena do III. Podaljšane gradbene faze, z urejeno okolico, pokrito teraso in vrtno lopo z nadstreškom. Ob dogovoru možna izvedba do IV. gradbene faze oz. na ključ. Predviden rok primopredaje pomlad 2025.
Cena že vključuje 9,5% DDV.
POGOJ PRODAJE: Pogoj lastnika nepremičnine je, da kupec v primeru realizacije prodaje/nakupa nepremičnine, povrne prodajalcu strošek agencijske provizije v višini 2 % od pogodbeno dogovorjene prodajne vrednosti nepremičnine + DDV.
V primeru zanimanja, nas kontaktirajte; Agent Andrej Štebal, Tel: 00386-40-626-212, E-mail: astebal@bazarealestate.com .
Lepo vabljeni k ogledu.
V mirnem naselju Bevke, le 6 minut od novega avtocestnega priključka Ljubljana Dragomer, prodajamo enoto v dvostanovanjski hiši. Naselje Bevke, ki se nahaja v neposredni bližini Ljubljane, je priljubljeno zaradi svoje mirne in zelene okolice, hkrati pa omogoča hitro in enostavno dostopnost do celotne infrastrukture.
Tlorisna zasnova obsega tri etaže (P+1+M). Bivalna površina pritličja in nadstropja obsega neto velikost 148,64 m2. V mansardi je predviden dodatni prostor v velikosti 40 m2 katerega lahko prilagodite svojim potrebam. V pritličju se nahaja predprostor, garderoba, ločene sanitarije, tehnični prostor, shramba pod stopnicami, dnevno bivalni prostor s kuhinjo in jedilnico ter izhodom na pokrito teraso. V nadstropju je hodnik, garderoba, spalnica, dve kopalnici ter dve sobi. Tloris nudi funkcionalno razporeditev z veliko naravne svetlobe v vseh prostorih, saj je enota orientirana na jugo-vzhod, ter severo-zahod. Hiša se nahaja na v slepi ulici v naselju individualnih hiš.
Objekt je betonsko opečnate gradnje in je zgrajen iz kakovostnih materialov.
Vgrajena so visoko kvalitetna troslojna PVC okna z zunanjimi žaluzijami na električni pogon in predpriprava za komarnike, debelina izolacije sten je 20 cm, ogrevanje je predvideno s toplotno črpalko voda-zrak ter s talnim gretjem. Predvidena je tudi predpriprava za sončno elektrarno, električno polnilnico, kamin (dimnik), ter prezračevalni sistem.
Hiša bo imela vse priključke (voda, elektrika, priklop na čistilno napravo, optika).
Enota je zgrajena do III. Podaljšane gradbene faze, z urejeno okolico, pokrito teraso in vrtno lopo z nadstreškom. Ob dogovoru možna izvedba do IV. gradbene faze oz. na ključ. Predviden rok primopredaje pomlad 2025.
Cena že vključuje 9,5% DDV.
POGOJ PRODAJE: Pogoj lastnika nepremičnine je, da kupec v primeru realizacije prodaje/nakupa nepremičnine, povrne prodajalcu strošek agencijske provizije v višini 2 % od pogodbeno dogovorjene prodajne vrednosti nepremičnine + DDV.
V primeru zanimanja, nas kontaktirajte; Agent Andrej Štebal, Tel: 00386-40-626-212, E-mail: astebal@bazarealestate.com .
Lepo vabljeni k ogledu.
Spletna povezava
Zemljevid
Dodatne informacije
Ogrevanje
Stanje objekta
Podatki o objektu
Funkcionalnost in lastnosti
Lega stanovanja
Kopalnica
- Oglas je objavljen
- 08.01.2025. ob 08:29
- Do poteka še
- oglas je potekel
- Oglas je prikazan
- 786 -krat



















