Ta oglas ni aktiven.
Prebrskaj podobne oglase.
-
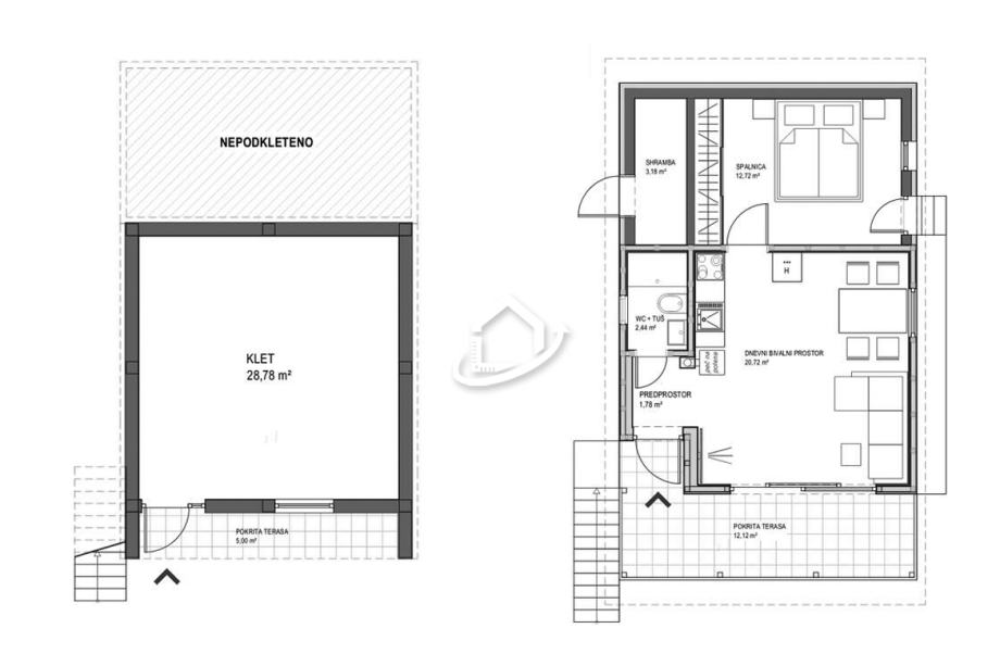
- Bivalna površina
- 81,50 m²
-
- Leto izgradnje
- 1983
Osnovne informacije
- Vrsta ponudbe
- Prodam
- Lokacija
- Podravska, Ptuj, Kicar
- Vrsta hiše
- Samostojna
- Bivalna površina
- 81,50 m²
- Površina parcele
- 703,00 m²
- Leto izgradnje
- 1983
- Leto zadnje prenove
- 2008
- Balkon / terasa / atrij
- Balkon, Terasa
- Zunanje površine in oprema
- Vrt/dvorišče
- Energetski razred
- EI v izdelavi
- Vrsta cene
- Skupna cena
Opis oglasa
Več informacij in ogledi: 040742863 ali simona@idejum.si
Na čudoviti lokaciji le kakšnih 5 minut iz Ptuja, v primestnem naselju Kicar se nahaja manjša a zelo praktična hiša . Če kolebate med stanovanji, a si želite lastno hiško z parcelo, je ta rešitev za vas. Hiša je dovolj prostorna, da nadomesti velikost stanovanj, a imate zraven še parcelo, živite skoraj v mestu in imate čudovit razgled! Hiša vam ponuja dovolj prostora za življenje v naravi. Pridite na ogled in si naredite svojo vizijo!
Na čudoviti lokaciji le kakšnih 5 minut iz Ptuja, v primestnem naselju Kicar se nahaja manjša a zelo praktična hiša . Če kolebate med stanovanji, a si želite lastno hiško z parcelo, je ta rešitev za vas. Hiša je dovolj prostorna, da nadomesti velikost stanovanj, a imate zraven še parcelo, živite skoraj v mestu in imate čudovit razgled! Hiša vam ponuja dovolj prostora za življenje v naravi. Pridite na ogled in si naredite svojo vizijo!
Zemljevid
Dodatne informacije
Ogrevanje
Stanje objekta
Lega stanovanja
- Oglas je objavljen
- 05.08.2025. ob 10:12
- Do poteka še
- oglas je potekel
- Oglas je prikazan
- 28136 -krat












