Lokacija hiše: Luče, 239.62 m2 (prodaja)
- Cena
- 395.000 €
-
OglasOglaševalec OTP banka d.d.
Zakaj vidim ta oglas?
Uporaba omejenih podatkov za izbiro oglasov: oglasi, ki se vam prikazujejo v tej storitvi, lahko temeljijo na omejenih podatkih, kot so spletna stran ali aplikacija, ki jo trenutno uporabljate, vaša približna lokacija, vrsta naprave ali vsebine, s katerimi ste bili v interakciji (npr. za omejevanje pogostosti prikazovanja oglasov).
Šifra oglasa: 15276219
-
- Bivalna površina
- 350,00 m²
-
- Leto izgradnje
- 2025
Osnovne informacije
- Vrsta ponudbe
- Prodam
- Lokacija
- Savinjska, Luče, Luče
- Število nadstropij
- Enonadstropna
- Vrsta hiše (gradnja)
- Zidana hiša (beton, opeka)
- Vrsta hiše
- Samostojna
- Bivalna površina
- 350,00 m²
- Neto površina
- 239,62 m²
- Površina parcele
- 3.735,00 m²
- Leto izgradnje
- 2025
- Leto zadnje prenove
- 2025
- Balkon / terasa / atrij
- Balkon
- Zunanje površine in oprema
- Vrt/dvorišče
- Energetski razred
- E (105 - 150 kWh/m²a)
- Vrsta cene
- Skupna cena
Opis oglasa
Na prelepi razgledni legi Konjskega vrha, sredi neokrnjene narave in popolnega miru, je naprodaj edinstvena gorska posest s skupno površino 3.365 m² zemljišča . Do posesti vodi asfaltirana cesta, sončna lega pa omogoča odprte poglede na mogočno Raduho (2062 m), planoto Javorje, Lanež, Veliki in Mali Travnik ter širne pašnike Savinjskih Alp. Lokacija je izjemna tako za zasebno bivanje kot razvoj vrhunskega butičnega turizma.
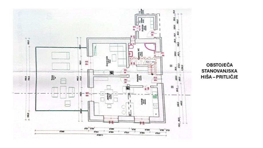
OBSTOJEČA STANOVANJSKA HIŠA (1960) – 239,62 m² urejenih prostorov
(klet + pritličje + mansarda)
Hiša je dobro vzdrževana, posodobljena in takoj vseljiva. Skozi leta je bila deležna več pomembnih prenov, ki zagotavljajo udobje in dolgoročno stabilnost.
V kleti (71,04 m²) se nahajata dve shrambi, od katerih je ena pripravljena za priklop toplotne črpalke, kar omogoča možnost ogrevanja tudi sosednje apartmajske hiše. Poleg shramb je v kleti urejena tudi prostorna garaža za dva avtomobila, dograjena leta 2024 z ustrezno dokumentacijo.
V pritličju (105,25 m²) se nahaja prijeten predprostor s kaminom na drva (2023), popolnoma prenovljena kopalnica iz leta 2015 (tuš, kopalniški blok, WC, pralni stroj, bojler), svetla kuhinja z jedilnico (kuhinja je opremljena z dodanim štedilnikom na drva), dnevna soba (na tleh je laminat iz leta 2015) in spalnica (na tleh je topli pod). Iz pritličja vodijo notranje stopnice v mansardo. Na južni strani se odpira prostorna terasa velikosti cca. 40 m², ki je bila prizidana leta 2024 in ponuja nepozaben pogled na Raduho. Zaradi trdne konstrukcije omogoča tudi ureditev zimskega vrta, ki je v zimskih mesecih še posebej privlačen za idilično opazovanje snežne pokrajine.
Mansarda (63,33 m²) nudi dve večji sobi, ki predstavljata idealno možnost preureditve v manjši apartma ali dodatno bivalno enoto, saj je v projektu že idejno predvidena ureditev treh sob in dodatne kopalnice, kar ustvarja veliko dodatne bivalne površine ali ločeno enoto.
Hiša se ponaša tudi z več pomembnimi tehničnimi nadgradnjami:
• nova PVC Mikova trislojna okna (2024),
• RÖFIX fasadni sistem z 16 cm grafitnim stiroporjem in silikonskim zaključnim slojem,
• streha iz leta 2013 z zračnim mostom, paropropustno folijo in opečno kritino,
• novi kamin (2023).
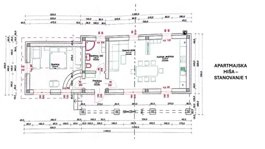
APARTMAJSKA HIŠA (3. gradbena faza) – 116,71 m²
(pritličje + mansarda)
Druga stavba na posesti predstavlja izjemno turistično priložnost. Zasnova objekta omogoča ureditev dveh ločenih apartmajev, vsak primeren za 4–6 oseb. Predvidena je vgradnja talnega gretja ter možnost postavitve kamina, kar daje objektu karakter sodobnega gorskega chaleta. Stavba ponuja idealno izhodišče za ureditev butičnega apartmajskega turizma, celoleten oddih ali kombinacijo oddajanja in lastne rabe.
MOŽNOST GLAMPINGA - LESENIH BRUNARIC
Na posesti je dovolj ravnega terena za postavitev dveh glamping hišk ali dveh lesenih brunaric, kar dodatno razširi turistično ponudbo in dvigne donosnost. Glamping je eden najhitreje rastočih segmentov slovenskega turizma, z visoko zasedenostjo skozi celo sezono.
INFRASTRUKTURA IN KLJUČNE PREDNOSTI
Posest ima popolno infrastrukturo, ki je v gorskem svetu izjemna redkost. Ključna prednost je lasten izvir pitne vode, ki zagotavlja samooskrbo, visoko kakovost vode in popolno neodvisnost od javnih vodnih omrežij. Poleg tega so na voljo čistilna naprava, javna elektrika, urejen odvoz smeti ter asfaltiran dostop.
Umeščenost posesti v naravo, daleč od urbanega hrupa, omogoča popoln odklop in intimen stik z okoljem, hkrati pa predstavlja odlično izhodišče za vsakodnevne pohode, gorsko kolesarjenje in raziskovanje lokalne dediščine.
IZJEMNA LOKACIJA – MED NAJLEPŠIMI NARAVNIMI ZNAMENITOSTMI
V bližini se nizajo nekatere najlepše točke slovenskih Alp, kar dodatno dviguje vrednost posesti in privlačnost za turiste:
• Snežna jama – ena najvišje ležečih jam v Evropi s kapniki
• Koča na Loki – popolnoma obnovljena, odlična kulinarika
• Planote Javorje, Vodole in Arta
• Veliki Travnik z razglednim stolpom in planinsko kočo
• Lanež, Komen, Smrekovec
• Golte – smučišče z gondolo in številnimi poletnimi aktivnostmi
• Menina planina
• Velika planina (UNESCO)
• Robanov kot, Dleskovškova planota, Solčava, Matkov kot
• Logarska dolina z Okrešljem
Regija je med najbolj obiskanimi naravnimi območji v Sloveniji in privablja turiste iz vse Evrope.
TURISTIČNI POTENCIAL – IDEALNA INVESTICIJA
Posest zaradi svoje lege, infrastrukture in zgradb predstavlja izjemno priložnost za razvoj turizma. Omogoča:
• apartmajski turizem z dvema predvidenima enotama in dodatno enoto ali dvema v obstoječi stanovanjski hiši,
• ureditev glampinga z dvema hiškama,
• razvoj butičnega gorskega retreat centra,
• wellness v naravi (jacuzzi, savna, razgledna terasa),
• kombinacijo zasebnega bivanja in oddajanja.
Območje omogoča celoleten turizem:
• Pozimi posest zaživi v povezavi s smučiščem Golte, ki je le kratek dostop stran in ponuja urejene smučarske proge, nočno smuko, šolo smučanja ter številne zimske aktivnosti. Obiskovalci lahko svoj dan zaključijo v toplem objemu kamina, ali pa se prepustijo užitkom v popolni tišini zasnežene pokrajine, kar ustvarja idilično vzdušje za počitniško bivanje.
• Poleti se posest spremeni v idealno izhodišče za avanture v naravi. Od tu se odpirajo poti proti Raduhi, Travniku, Snežni jami in številnim planotam, ki vabijo k pohodništvu, trail teku, gorskemu kolesarjenju, raziskovanju pašnikov in doživetjem pastirskega življenja. Bivanje tukaj omogoča stik z naravo v njenem najbolj živem in sproščujočem ritmu.
• Jesen prinaša čudovite barvne prehode in izjemne priložnosti za fotografske ter kulinarične oddihe. Številni okoliški gozdovi nudijo bogate darove – borovnice, brusnice, gobe – ki jih je mogoče vključiti v kulinarična doživetja. Barvita pokrajina in meglice v dolinah pa ustvarjajo popolne razmere za fotografske ture in opazovanje divjih živali.
• Spomladi posest postane naravni wellness prostor, kjer se obiskovalci lahko umaknejo od vsakdana in uživajo v miru, prebujajočih se gozdovih, svežem zraku in sončnih razgledih. Postavitev savne, jacuzzija ali meditacijskega kotička bi spomladanski obisk še dodatno obogatila, kar posest uvršča med privlačne točke za sprostitvene in regeneracijske retreat programe
Gre za redko ponujeno posest, ki združuje urejeni stanovanjski objekt, naravni vir pitne vode, apartmajsko hišo z visokim potencialom in možnost glampinga na eni najlepših razglednih točk v Sloveniji. Nepremičnina je primerna za tiste, ki iščejo mirno gorsko življenje, investicijo v turizem ali razvoj butičnega gorskega kompleksa.
Za dodatne informacije o posesti, podrobnejše materiale ali dogovor za osebni ogled ste vabljeni, da pokličete na telefonsko številko 041 741 602 (Aljaž Nerad). Z veseljem vam bo predstavil vse prednosti in možnosti, ki jih ponuja ta edinstvena gorska nepremičnina.
OBSTOJEČA STANOVANJSKA HIŠA (1960) – 239,62 m² urejenih prostorov
(klet + pritličje + mansarda)
Hiša je dobro vzdrževana, posodobljena in takoj vseljiva. Skozi leta je bila deležna več pomembnih prenov, ki zagotavljajo udobje in dolgoročno stabilnost.
V kleti (71,04 m²) se nahajata dve shrambi, od katerih je ena pripravljena za priklop toplotne črpalke, kar omogoča možnost ogrevanja tudi sosednje apartmajske hiše. Poleg shramb je v kleti urejena tudi prostorna garaža za dva avtomobila, dograjena leta 2024 z ustrezno dokumentacijo.
V pritličju (105,25 m²) se nahaja prijeten predprostor s kaminom na drva (2023), popolnoma prenovljena kopalnica iz leta 2015 (tuš, kopalniški blok, WC, pralni stroj, bojler), svetla kuhinja z jedilnico (kuhinja je opremljena z dodanim štedilnikom na drva), dnevna soba (na tleh je laminat iz leta 2015) in spalnica (na tleh je topli pod). Iz pritličja vodijo notranje stopnice v mansardo. Na južni strani se odpira prostorna terasa velikosti cca. 40 m², ki je bila prizidana leta 2024 in ponuja nepozaben pogled na Raduho. Zaradi trdne konstrukcije omogoča tudi ureditev zimskega vrta, ki je v zimskih mesecih še posebej privlačen za idilično opazovanje snežne pokrajine.
Mansarda (63,33 m²) nudi dve večji sobi, ki predstavljata idealno možnost preureditve v manjši apartma ali dodatno bivalno enoto, saj je v projektu že idejno predvidena ureditev treh sob in dodatne kopalnice, kar ustvarja veliko dodatne bivalne površine ali ločeno enoto.
Hiša se ponaša tudi z več pomembnimi tehničnimi nadgradnjami:
• nova PVC Mikova trislojna okna (2024),
• RÖFIX fasadni sistem z 16 cm grafitnim stiroporjem in silikonskim zaključnim slojem,
• streha iz leta 2013 z zračnim mostom, paropropustno folijo in opečno kritino,
• novi kamin (2023).
APARTMAJSKA HIŠA (3. gradbena faza) – 116,71 m²
(pritličje + mansarda)
Druga stavba na posesti predstavlja izjemno turistično priložnost. Zasnova objekta omogoča ureditev dveh ločenih apartmajev, vsak primeren za 4–6 oseb. Predvidena je vgradnja talnega gretja ter možnost postavitve kamina, kar daje objektu karakter sodobnega gorskega chaleta. Stavba ponuja idealno izhodišče za ureditev butičnega apartmajskega turizma, celoleten oddih ali kombinacijo oddajanja in lastne rabe.
MOŽNOST GLAMPINGA - LESENIH BRUNARIC
Na posesti je dovolj ravnega terena za postavitev dveh glamping hišk ali dveh lesenih brunaric, kar dodatno razširi turistično ponudbo in dvigne donosnost. Glamping je eden najhitreje rastočih segmentov slovenskega turizma, z visoko zasedenostjo skozi celo sezono.
INFRASTRUKTURA IN KLJUČNE PREDNOSTI
Posest ima popolno infrastrukturo, ki je v gorskem svetu izjemna redkost. Ključna prednost je lasten izvir pitne vode, ki zagotavlja samooskrbo, visoko kakovost vode in popolno neodvisnost od javnih vodnih omrežij. Poleg tega so na voljo čistilna naprava, javna elektrika, urejen odvoz smeti ter asfaltiran dostop.
Umeščenost posesti v naravo, daleč od urbanega hrupa, omogoča popoln odklop in intimen stik z okoljem, hkrati pa predstavlja odlično izhodišče za vsakodnevne pohode, gorsko kolesarjenje in raziskovanje lokalne dediščine.
IZJEMNA LOKACIJA – MED NAJLEPŠIMI NARAVNIMI ZNAMENITOSTMI
V bližini se nizajo nekatere najlepše točke slovenskih Alp, kar dodatno dviguje vrednost posesti in privlačnost za turiste:
• Snežna jama – ena najvišje ležečih jam v Evropi s kapniki
• Koča na Loki – popolnoma obnovljena, odlična kulinarika
• Planote Javorje, Vodole in Arta
• Veliki Travnik z razglednim stolpom in planinsko kočo
• Lanež, Komen, Smrekovec
• Golte – smučišče z gondolo in številnimi poletnimi aktivnostmi
• Menina planina
• Velika planina (UNESCO)
• Robanov kot, Dleskovškova planota, Solčava, Matkov kot
• Logarska dolina z Okrešljem
Regija je med najbolj obiskanimi naravnimi območji v Sloveniji in privablja turiste iz vse Evrope.
TURISTIČNI POTENCIAL – IDEALNA INVESTICIJA
Posest zaradi svoje lege, infrastrukture in zgradb predstavlja izjemno priložnost za razvoj turizma. Omogoča:
• apartmajski turizem z dvema predvidenima enotama in dodatno enoto ali dvema v obstoječi stanovanjski hiši,
• ureditev glampinga z dvema hiškama,
• razvoj butičnega gorskega retreat centra,
• wellness v naravi (jacuzzi, savna, razgledna terasa),
• kombinacijo zasebnega bivanja in oddajanja.
Območje omogoča celoleten turizem:
• Pozimi posest zaživi v povezavi s smučiščem Golte, ki je le kratek dostop stran in ponuja urejene smučarske proge, nočno smuko, šolo smučanja ter številne zimske aktivnosti. Obiskovalci lahko svoj dan zaključijo v toplem objemu kamina, ali pa se prepustijo užitkom v popolni tišini zasnežene pokrajine, kar ustvarja idilično vzdušje za počitniško bivanje.
• Poleti se posest spremeni v idealno izhodišče za avanture v naravi. Od tu se odpirajo poti proti Raduhi, Travniku, Snežni jami in številnim planotam, ki vabijo k pohodništvu, trail teku, gorskemu kolesarjenju, raziskovanju pašnikov in doživetjem pastirskega življenja. Bivanje tukaj omogoča stik z naravo v njenem najbolj živem in sproščujočem ritmu.
• Jesen prinaša čudovite barvne prehode in izjemne priložnosti za fotografske ter kulinarične oddihe. Številni okoliški gozdovi nudijo bogate darove – borovnice, brusnice, gobe – ki jih je mogoče vključiti v kulinarična doživetja. Barvita pokrajina in meglice v dolinah pa ustvarjajo popolne razmere za fotografske ture in opazovanje divjih živali.
• Spomladi posest postane naravni wellness prostor, kjer se obiskovalci lahko umaknejo od vsakdana in uživajo v miru, prebujajočih se gozdovih, svežem zraku in sončnih razgledih. Postavitev savne, jacuzzija ali meditacijskega kotička bi spomladanski obisk še dodatno obogatila, kar posest uvršča med privlačne točke za sprostitvene in regeneracijske retreat programe
Gre za redko ponujeno posest, ki združuje urejeni stanovanjski objekt, naravni vir pitne vode, apartmajsko hišo z visokim potencialom in možnost glampinga na eni najlepših razglednih točk v Sloveniji. Nepremičnina je primerna za tiste, ki iščejo mirno gorsko življenje, investicijo v turizem ali razvoj butičnega gorskega kompleksa.
Za dodatne informacije o posesti, podrobnejše materiale ali dogovor za osebni ogled ste vabljeni, da pokličete na telefonsko številko 041 741 602 (Aljaž Nerad). Z veseljem vam bo predstavil vse prednosti in možnosti, ki jih ponuja ta edinstvena gorska nepremičnina.
Zemljevid
Dodatne informacije
Ogrevanje
Stanje objekta
Okolica
Možnosti parkiranja
Funkcionalnost in lastnosti
Lega stanovanja
AŽ&MB NERAD d.o.o.
Vsi oglasi te trgovine
Uporabnik je telefonsko številko preveril v državi Slovenija
- Naslov: PODVRH 106G, 3314 BRASLOVČE, Savinjska, Slovenija
- URL: http://www.agenti-nep.si
-
- Oglas je objavljen
- 15.04.2026. ob 12:40
- Do poteka še
- do prodaje
- Oglas je prikazan
- 881 -krat
AŽ&MB NERAD d.o.o.
Vsi oglasi te trgovine
Uporabnik je telefonsko številko preveril v državi Slovenija
- Naslov: PODVRH 106G, 3314 BRASLOVČE, Savinjska, Slovenija
- URL: http://www.agenti-nep.si
-



















