Lokacija poslovnega prostora: Nova Gorica, 475,87 m2 (prodaja)
- Cena
- 951.740 €
Šifra oglasa: 13459769
-
- Površina
- 475,87 m²
-
- Namembnost
- Prostor za storitve
Osnovne informacije
- Vrsta ponudbe
- Prodam
- Lokacija
- Goriška, Nova Gorica, Pristava
- Namembnost poslovnega prostora
- Prostor za storitve
- Položaj poslovnega prostora
- Enota v poslovni stavbi
- Površina
- 475,87 m²
- Nadstropje
- Pritličje
- Dvigalo
- Da
- Leto izgradnje
- 2023
- Novogradnja
- Da
- Vrsta cene
- Skupna cena
- Interna številka oglasa
- PPP13461225528
Opis oglasa
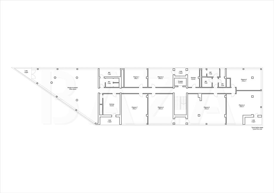
Poslovni prostor, Primorska – Nova Gorica (Rožna Dolina), novogradnja, 3./3. nad., zgrajeno l. 2023, 3. PGF, neto uporabna površina 475,87 m2, dvigalo, parkirišča za stranke. Cena: 951.740 EUR + DDV.
OGLASU JE PRILOŽENA VIZUALIZACIJA POTENCIALNE UREDITVE NOTRANJIH PROSTOROV.
Posredujemo pri prodaji poslovnega prostora, ki se nahaja v 3. nadstropju novega poslovnega objekta v Rožni Dolini pri Novi Gorici. Lokacija ponuja vso potrebno infrastrukturo; trgovine, avtobusno postajališče, avtocestni priključek, gostinski lokali itd. Objekt je v neposredni bližini meje z Italijo, od središča Nove Gorice je oddaljen 4 km.
Stavba ima 4 etaže, orientirana je na sever in jug. Funkcionalen tloris omogoča svetlo in prijetno delovno okolje. Prostori imajo možnost pridobitve uporabnega dovoljenja za različne dejavnosti. Lastnik bo sodeloval pri spremembi uporabnega dovoljenja. Pred objektom in dodatno v bližini objekta se nahaja več lastniških parkirišč, primernih za lastnike in stranke. V stavbi bo nameščeno dvigalo.
Prostori so primerni za storitveno, pisarniško ali sorodno dejavnost.
POGOJ PRODAJE: Pogoj lastnika nepremičnine je, da kupec v primeru realizacije prodaje/nakupa nepremičnine, povrne prodajalcu strošek agencijske provizije v višini 2 % od pogodbeno dogovorjene prodajne vrednosti nepremičnine + DDV.
V primeru zanimanja, nas kontaktirajte: Katja Šafar, Tel: 00386-40-626-299, E-mail: ksafar@bazarealestate.com.
Vljudno vabljeni k ogledu.
OGLASU JE PRILOŽENA VIZUALIZACIJA POTENCIALNE UREDITVE NOTRANJIH PROSTOROV.
Posredujemo pri prodaji poslovnega prostora, ki se nahaja v 3. nadstropju novega poslovnega objekta v Rožni Dolini pri Novi Gorici. Lokacija ponuja vso potrebno infrastrukturo; trgovine, avtobusno postajališče, avtocestni priključek, gostinski lokali itd. Objekt je v neposredni bližini meje z Italijo, od središča Nove Gorice je oddaljen 4 km.
Stavba ima 4 etaže, orientirana je na sever in jug. Funkcionalen tloris omogoča svetlo in prijetno delovno okolje. Prostori imajo možnost pridobitve uporabnega dovoljenja za različne dejavnosti. Lastnik bo sodeloval pri spremembi uporabnega dovoljenja. Pred objektom in dodatno v bližini objekta se nahaja več lastniških parkirišč, primernih za lastnike in stranke. V stavbi bo nameščeno dvigalo.
Prostori so primerni za storitveno, pisarniško ali sorodno dejavnost.
POGOJ PRODAJE: Pogoj lastnika nepremičnine je, da kupec v primeru realizacije prodaje/nakupa nepremičnine, povrne prodajalcu strošek agencijske provizije v višini 2 % od pogodbeno dogovorjene prodajne vrednosti nepremičnine + DDV.
V primeru zanimanja, nas kontaktirajte: Katja Šafar, Tel: 00386-40-626-299, E-mail: ksafar@bazarealestate.com.
Vljudno vabljeni k ogledu.
Spletna povezava
Zemljevid
Dodatne informacije
Komunalni priključki
Parkirno mesto
BAZA
Vsi oglasi te trgovine
Uporabnik je telefonsko številko preveril v državi Slovenija
- Naslov: Miklošičeva 30, Osrednjeslovenska, Slovenija
- URL: https://www.bazarealestate.com/
-
- Oglas je objavljen
- 18.11.2024. ob 17:35
- Do poteka še
- do prodaje
- Oglas je prikazan
- 217 -krat
BAZA
Vsi oglasi te trgovine
Uporabnik je telefonsko številko preveril v državi Slovenija
- Naslov: Miklošičeva 30, Osrednjeslovenska, Slovenija
- URL: https://www.bazarealestate.com/
-


















