-
- Površina
- 287,50 m²
-
- Namembnost
- Kombiniran prostor
Osnovne informacije
- Vrsta ponudbe
- Oddam
- Lokacija
- Podravska, Ptuj, Ptuj
- Namembnost poslovnega prostora
- Kombiniran prostor
- Položaj poslovnega prostora
- Enota v poslovni stavbi
- Površina
- 287,50 m²
- Število prostorov
- 7
- Nadstropje
- 2
- Dvigalo
- Da
- Leto izgradnje
- 1980
- Leto zadnje prenove
- 2010
- Interna številka oglasa
- PPO925
Opis oglasa
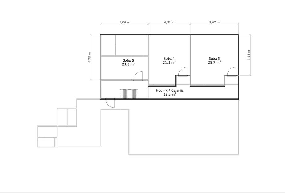
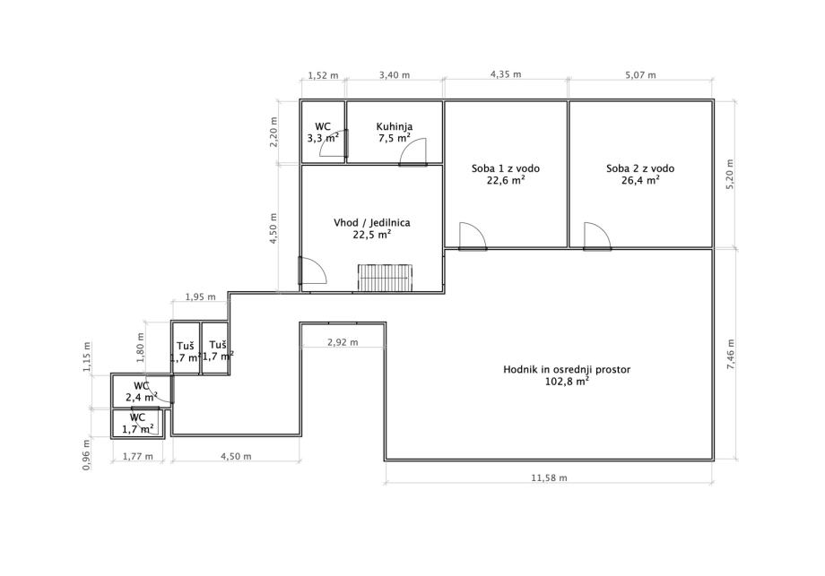
Ptuj, Čučkova ulica (Mlekarna): Oddamo poslovne prostore v centru mesta Ptuj z urejenim parkiriščem za stranke pred stavbo. Prostor je razdeljen v velik osrednji prostor s 5 ločenimi sobami, čajno kuhinjo z jedilnico, toaleto in dvema tušema (tloris med slikami). Gre za poslovni prostor v objektu znanem po imenu "Mlekarna". V stavbi obratuje že več podjetij, fitnes center in gostinski lokal. Stroški se obračunavajo po porabi, zaželjen je dolgoročni najem.
Obnovljeno: 2006 (fasada, streha) in 2010 (talne obloge, inštalacije,...)
Velikost: 192,6 m² + 94,9 m² (galerija, višina = 2,0 m)
Najemnina: 2.875,00 € + DDV
Varščina: 8.625,00 €
Stroški (po porabi): vodovod, elektrika, smeti, plin (lastna peč), NUSZ, upravnik
Ogrevanje: mestni plin + možnost izvedbe klime (po dogovoru z lastnikom)
Trajanje najema: po dogovoru, zaželjen dolgoročni najem
Nadstropje: drugo
Optika: da
Dvigalo: da
Oprema: poslovni prostor se oddaja neopremljen
Parkirišče: Skupno pred stavbo med 7. in 22. uro. Po dogovoru mogoč tudi 24 urni dostop do parkirišča.
Dodatno: po dogovoru z lastniki mogoča tudi namestitev naziva podjetja ob vhodu v objekt
Pogoj najema je plačilo dela stroška za posredovanje in sestavo najemne pogodbe v višini 1 mesečne najemnine.
Obnovljeno: 2006 (fasada, streha) in 2010 (talne obloge, inštalacije,...)
Velikost: 192,6 m² + 94,9 m² (galerija, višina = 2,0 m)
Najemnina: 2.875,00 € + DDV
Varščina: 8.625,00 €
Stroški (po porabi): vodovod, elektrika, smeti, plin (lastna peč), NUSZ, upravnik
Ogrevanje: mestni plin + možnost izvedbe klime (po dogovoru z lastnikom)
Trajanje najema: po dogovoru, zaželjen dolgoročni najem
Nadstropje: drugo
Optika: da
Dvigalo: da
Oprema: poslovni prostor se oddaja neopremljen
Parkirišče: Skupno pred stavbo med 7. in 22. uro. Po dogovoru mogoč tudi 24 urni dostop do parkirišča.
Dodatno: po dogovoru z lastniki mogoča tudi namestitev naziva podjetja ob vhodu v objekt
Pogoj najema je plačilo dela stroška za posredovanje in sestavo najemne pogodbe v višini 1 mesečne najemnine.
Zemljevid
Dodatne informacije
Ogrevanje
Stroški
Telekomunikacijski priključki
Dovoljenja
Komunalni priključki
Parkirno mesto
LA REAL d.o.o.
Vsi oglasi te trgovine
Uporabnik je telefonsko številko preveril v državi Slovenija
- Naslov: Podravska, Slovenija
- URL: https://www.lareal.si
-
- Oglas je objavljen
- 21.11.2025. ob 19:35
- Do poteka še
- do oddaje
- Oglas je prikazan
- 264 -krat
LA REAL d.o.o.
Vsi oglasi te trgovine
Uporabnik je telefonsko številko preveril v državi Slovenija
- Naslov: Podravska, Slovenija
- URL: https://www.lareal.si
-



















