-
- Površina
- 366,90 m²
-
- Namembnost
- Poslovni objekt
Osnovne informacije
- Vrsta ponudbe
- Oddam
- Lokacija
- Podravska, Ptuj, Ptuj
- Namembnost poslovnega prostora
- Poslovni objekt
- Položaj poslovnega prostora
- Ulični lokal
- Površina
- 366,90 m²
- Število prostorov
- 5
- Nadstropje
- Pritličje
- Dvigalo
- Da
- Leto izgradnje
- 1980
- Leto zadnje prenove
- 2006
- Na voljo od
- 01.09.2025
- Interna številka oglasa
- PPO926
Opis oglasa
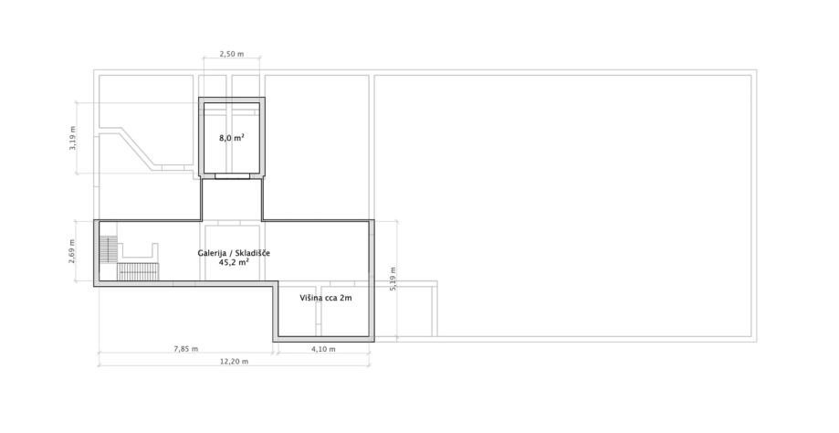
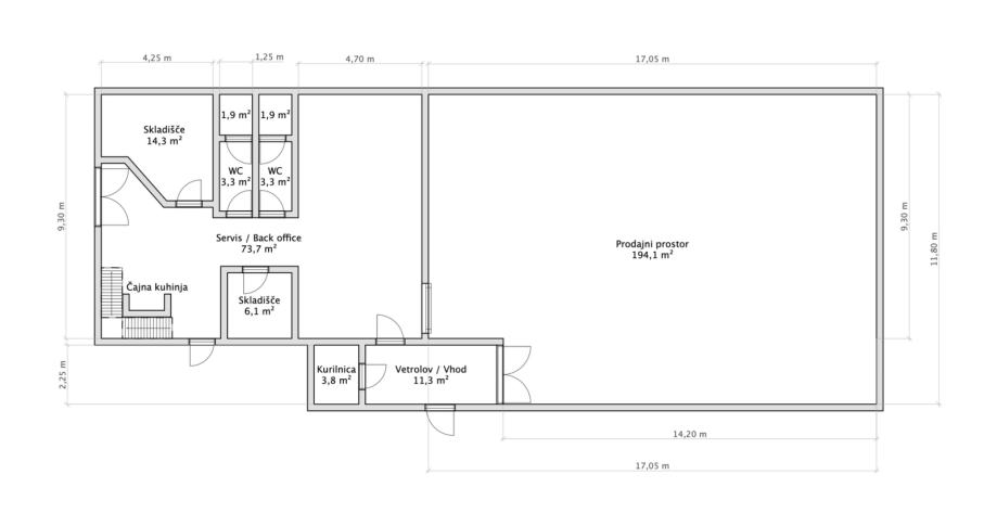
Ptuj, Čučkova ulica (Mlekarna): Oddamo klimatizirane poslovne prostore v centru mesta Ptuj z urejenim parkiriščem za stranke pred stavbo. Prostor je razdeljen v velik razstavni / prodajni prostor, ter večji podporni / skladiščni del s čajno kuhinjo, toaletami in veliko skladiščnega prostora (tloris med slikami). Gre za ulični lokal v objektu znanem po imenu "Mlekarna". V stavbi obratuje že več podjetij, fitnes center in gostinski lokal. Stroški se obračunavajo po porabi, zaželjen je dolgoročni najem.
Obnovljeno: 2006 (fasada, streha, inštalacije, talne obloge,...)
Velikost: 313,7 m² + 53,2 m² (galerija, višina = 2,0 m)
Najemnina: 3.669,00 € + DDV
Varščina: 11.000,00 €
Stroški (po porabi): vodovod, elektrika, smeti, plin (lastna peč), NUSZ, upravnik
Ogrevanje: lastna plinska peč (mestni plin) in klima
Trajanje najema: po dogovoru, zaželjen dolgoročni najem
Nadstropje: Pritličje, ulični lokal.
Optika: da
Dvigalo: da
Oprema: poslovni prostor se oddaja neopremljen
Parkirišče: Skupno pred stavbo med 7. in 22. uro. Po dogovoru mogoč tudi 24 urni dostop do parkirišča.
Dodatno: po dogovoru z lastniki mogoča tudi namestitev naziva podjetja ob vhodu v objekt
Pogoj najema je plačilo dela stroška za posredovanje in sestavo najemne pogodbe v višini 1 mesečne najemnine.
Obnovljeno: 2006 (fasada, streha, inštalacije, talne obloge,...)
Velikost: 313,7 m² + 53,2 m² (galerija, višina = 2,0 m)
Najemnina: 3.669,00 € + DDV
Varščina: 11.000,00 €
Stroški (po porabi): vodovod, elektrika, smeti, plin (lastna peč), NUSZ, upravnik
Ogrevanje: lastna plinska peč (mestni plin) in klima
Trajanje najema: po dogovoru, zaželjen dolgoročni najem
Nadstropje: Pritličje, ulični lokal.
Optika: da
Dvigalo: da
Oprema: poslovni prostor se oddaja neopremljen
Parkirišče: Skupno pred stavbo med 7. in 22. uro. Po dogovoru mogoč tudi 24 urni dostop do parkirišča.
Dodatno: po dogovoru z lastniki mogoča tudi namestitev naziva podjetja ob vhodu v objekt
Pogoj najema je plačilo dela stroška za posredovanje in sestavo najemne pogodbe v višini 1 mesečne najemnine.
Zemljevid
Dodatne informacije
Ogrevanje
Stroški
Telekomunikacijski priključki
Dovoljenja
Komunalni priključki
Parkirno mesto
LA REAL d.o.o.
Vsi oglasi te trgovine
Uporabnik je telefonsko številko preveril v državi Slovenija
- Naslov: Podravska, Slovenija
- URL: https://www.lareal.si
-
- Oglas je objavljen
- 21.11.2025. ob 19:33
- Do poteka še
- do oddaje
- Oglas je prikazan
- 287 -krat
LA REAL d.o.o.
Vsi oglasi te trgovine
Uporabnik je telefonsko številko preveril v državi Slovenija
- Naslov: Podravska, Slovenija
- URL: https://www.lareal.si
-



















