-
- Površina
- 470,00 m²
-
- Namembnost
- Pisarna
Osnovne informacije
- Vrsta ponudbe
- Oddam
- Lokacija
- Podravska, Maribor, Tezno
- Namembnost poslovnega prostora
- Pisarna
- Položaj poslovnega prostora
- Enota v poslovni stavbi
- Površina
- 470,00 m²
- Leto izgradnje
- 2007
- Energetski razred
- D (60 - 105 kWh/m2a)
- Interna številka oglasa
- P-040-24
Opis oglasa
IZJEMNA LOKACIJA - PISARNE - ODDAJA
Na odlični lokaciji v bližini avtoceste so oddaja poslovni prostor, sklop pisarn v dveh etažah, v novejši poslovni stavbi.
Dodaten opis: sklop pisarn v dveh etažah; površina: 470 m²; leto izgradnje: 2007; lega: 1. in 2. nadstropje; posebnost: lokacija
Lokacija: Maribor, Tezno, Ptujska cesta, do avtocestnega priključka cca 1 km
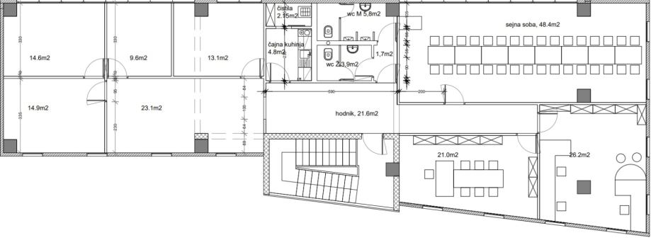
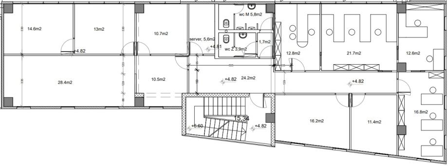
Razporeditev: tlorisa priložena; 1. NADSTROPJE: pisarne, hodnik, tehnični prostor in sanitarije; 2. NADSTROPJE: pisarne, hodnik, sejna soba, čajna kuhinja, tehnični prostor in sanitarije;
Na voljo smo vam za POMOČ/SVETOVANJE PRI PRODAJI vaše nepremičnine. Zakaj izbrati nas? Ker so naša odlika več kot 15 let izkušenj, visok iztržek ob prodaji nepremičnine, dobri nepremičninski posredniki z licencami, hitra realizacija posla, strokovnost, zaupanje, prilagodljivost, odzivnost in osebnostni pristop.
Našo celotno ponudbo nepremičnin si lahko ogledate na www.zoro.si
Na odlični lokaciji v bližini avtoceste so oddaja poslovni prostor, sklop pisarn v dveh etažah, v novejši poslovni stavbi.
Dodaten opis: sklop pisarn v dveh etažah; površina: 470 m²; leto izgradnje: 2007; lega: 1. in 2. nadstropje; posebnost: lokacija
Lokacija: Maribor, Tezno, Ptujska cesta, do avtocestnega priključka cca 1 km
Razporeditev: tlorisa priložena; 1. NADSTROPJE: pisarne, hodnik, tehnični prostor in sanitarije; 2. NADSTROPJE: pisarne, hodnik, sejna soba, čajna kuhinja, tehnični prostor in sanitarije;
Na voljo smo vam za POMOČ/SVETOVANJE PRI PRODAJI vaše nepremičnine. Zakaj izbrati nas? Ker so naša odlika več kot 15 let izkušenj, visok iztržek ob prodaji nepremičnine, dobri nepremičninski posredniki z licencami, hitra realizacija posla, strokovnost, zaupanje, prilagodljivost, odzivnost in osebnostni pristop.
Našo celotno ponudbo nepremičnin si lahko ogledate na www.zoro.si
Spletna povezava
Zemljevid
Dodatne informacije
Stroški
ZORO d.o.o.
Vsi oglasi te trgovine
Uporabnik je telefonsko številko preveril v državi Slovenija
- Naslov: Trg svobode 25, 2310 Slovenska Bistrica, Podravska, Slovenija
- URL: http://www.zoro.si
- E-pošta: info@zoro.si
-
- Oglas je objavljen
- 05.09.2024. ob 15:13
- Do poteka še
- do oddaje
- Oglas je prikazan
- 453 -krat
ZORO d.o.o.
Vsi oglasi te trgovine
Uporabnik je telefonsko številko preveril v državi Slovenija
- Naslov: Trg svobode 25, 2310 Slovenska Bistrica, Podravska, Slovenija
- URL: http://www.zoro.si
- E-pošta: info@zoro.si
-




