-
- Število sob
- 4
-
- Leto izgradnje
- 2025
Osnovne informacije
- Vrsta ponudbe
- Prodam
- Lokacija
- Goriška, Nova Gorica, Nova Gorica
- Število sob
- 4
- Število nadstropij
- Pritlična
- Vrsta hiše
- Samostojna
- Leto izgradnje
- 2025
- Vrsta cene
- Skupna cena
- Interna številka oglasa
- 490371004-125
Opis oglasa
Na prodaj: Moderna hiša za udobno in zdravo bivanje na odlični lokaciji v Novi Gorici 🌿
Na voljo je unikatna pritlična stanovanjska hiša, ki združuje toplino naravnega materiala s sodobno arhitekturo. Hiša je optimalno projektirana in zasnovana z mislijo na funkcionalnost, energetsko učinkovitost in udobje bivanja.
Navdušuje z izjemnim izkoristkom prostora
✅ Les kot osnovni gradbeni material zagotavlja prijetno mikroklimo, uravnava vlago in ustvarja zdravo bivalno okolje.
✅ Uporabljene so najsodobnejše tehnologije gradnje in opreme, ki zagotavljajo visoko energetsko učinkovitost in nizke obratovalne stroške.
✅ Hiša je kompaktna, a prostorna primerna za pare ali družine
Naravna estetika, trajnost, tehnološka dovršenost in potresna odpornost vse to je združeno v oazi sredi mesta. 🌲
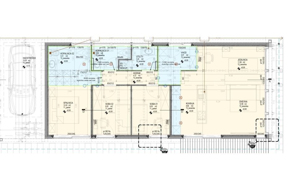
4 sobno stanovanje v enostanovanjski hiši zajema dnevni prostor s kuhinjo in jedilnico, dve otroški sobi, spalnico, dve kopalnici in pralnico. Ob hiši je nadstrešek za avto, iz dnevnega prostora pa je izhod na leseno teraso.
Površine so naslednje:
-Parcela 392m2
-Bivalni prostor 80m2
-Pralnica 3m2
-Nadstrešek za avto 19m2
-Lesena terasa 13m2
Hiša je klimatizirana, prezračevana z napravo z rekuperacijo toplote, ogrevanje je talno. Vgrajene so garderobne omare v hodniku in spalnici, kopalnici sta dokončno opremljeni.
Na voljo je unikatna pritlična stanovanjska hiša, ki združuje toplino naravnega materiala s sodobno arhitekturo. Hiša je optimalno projektirana in zasnovana z mislijo na funkcionalnost, energetsko učinkovitost in udobje bivanja.
Navdušuje z izjemnim izkoristkom prostora
✅ Les kot osnovni gradbeni material zagotavlja prijetno mikroklimo, uravnava vlago in ustvarja zdravo bivalno okolje.
✅ Uporabljene so najsodobnejše tehnologije gradnje in opreme, ki zagotavljajo visoko energetsko učinkovitost in nizke obratovalne stroške.
✅ Hiša je kompaktna, a prostorna primerna za pare ali družine
Naravna estetika, trajnost, tehnološka dovršenost in potresna odpornost vse to je združeno v oazi sredi mesta. 🌲
4 sobno stanovanje v enostanovanjski hiši zajema dnevni prostor s kuhinjo in jedilnico, dve otroški sobi, spalnico, dve kopalnici in pralnico. Ob hiši je nadstrešek za avto, iz dnevnega prostora pa je izhod na leseno teraso.
Površine so naslednje:
-Parcela 392m2
-Bivalni prostor 80m2
-Pralnica 3m2
-Nadstrešek za avto 19m2
-Lesena terasa 13m2
Hiša je klimatizirana, prezračevana z napravo z rekuperacijo toplote, ogrevanje je talno. Vgrajene so garderobne omare v hodniku in spalnici, kopalnici sta dokončno opremljeni.
Spletna povezava
Zemljevid
Dodatne informacije
Stanje objekta
Podatki o objektu
Okolica
Možnosti parkiranja
Funkcionalnost in lastnosti
Kopalnica
RE/MAX Nova Gorica
Vsi oglasi te trgovine
Uporabnik je telefonsko številko preveril v državi Slovenija
- Naslov: Goriška, Slovenija
- E-pošta: novagorica@re-max.si
-
- Oglas je objavljen
- 20.09.2025. ob 00:23
- Do poteka še
- do prodaje
- Oglas je prikazan
- 637 -krat
RE/MAX Nova Gorica
Vsi oglasi te trgovine
Uporabnik je telefonsko številko preveril v državi Slovenija
- Naslov: Goriška, Slovenija
- E-pošta: novagorica@re-max.si
-














