Opatija - Edinstvena priložnost za investitorje v centru Opatije s čud (prodaja)
- Cena
- 1.800.000 €
Šifra oglasa: 13840756
-
- Bivalna površina
- 561,31 m²
-
- Število sob
- 9
-
- Leto izgradnje
- 1980
Osnovne informacije
- Vrsta ponudbe
- Prodam
- Lokacija
- Izven Slovenije - Hrvaška, Primorsko-goranska, Opatija
- Število sob
- 9
- Število nadstropij
- Večnadstropna
- Vrsta hiše
- Samostojna
- Bivalna površina
- 561,31 m²
- Površina parcele
- 691,00 m²
- Leto izgradnje
- 1980
- Leto zadnje prenove
- 2022
- Število parkirnih mest
- 4
- Balkon / terasa / atrij
- Terasa
- Vrsta cene
- Skupna cena
- Interna številka oglasa
- 101-036
Opis oglasa
Nepremičninska agencija Kaiser Immobilien iz Opatije iz svojega širokega portfelja predstavlja zelo elegantno vilo iz osemdesetih let prejšnjega stoletja na izjemno atraktivni in mirni lokaciji v neposredni bližini centra Opatije in obale, le 250 metrov naravnost od morja.
Vila je zgrajena na pobočju in je na severovzhodni in severozahodni strani obdana z zelenjem.
Skoraj vsi deli nepremičnine ponujajo res fenomenalen panoramski pogled na morje, terase in balkoni pa se raztezajo praktično v vse smeri.
Poleg celotnega Kvarnerskega zaliva bodo novi lastniki imeli na dlani tudi zgodovinsko središče Opatije z glavno plažo Slatina ali Reka.
Zaradi velikih steklenih površin in skoraj popolne orientacije so skoraj vsi prostori polni dnevne svetlobe in sonca skozi ves dan.
Celotna vila se razprostira na skupno 6 nivojih.
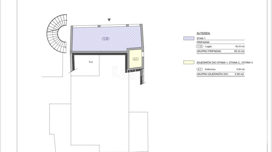
Najnižji nivo je namenjen garažam - trenutno je samo ena, a je prostora še za vsaj dve. Dodatna parkirna mesta se nahajajo pred garažo.
Drugi nivo je sestavljen iz velike lože 40 m2 in velike terase spredaj – ki se nahaja nad garažo.
Ložo bi lahko na primer ogradili s steklenimi stenami in jo spremenili v zimski vrt ali ločeno garsonjero.
Na celotni terasi pred ložo je idealen prostor za bodoči veliki bazen (vizualizacija v prilogi).
V tem nivoju se nahaja tudi kurilnica in drugi prostori, ki se lahko uporabljajo za tehnične inštalacije vile ali za razširitev površine lože.
Po spiralnih stopnicah se povzpnemo v tretji nivo vile - v pritličje, kjer se nahaja prvi od skupno 3 apartmajev.
Neto bivalna površina stanovanja v pritličju je 100,82 m2, pripada pa mu še 123,53 m2 terase.
Fantastičen pogled na morje je na voljo že s prejšnje lože, vendar je z vsako naslednjo etažo pogled vedno boljši.
Stanovanje ni dokončano in njegova trenutna razporeditev, ki se v tej fazi seveda lahko popolnoma spremeni, obsega kuhinjo z jedilnico in dnevno sobo, veliko predsobo, kopalnico in spalnico. Tu so tudi že omenjene pokrite in nepokrite terase in na tem nivoju je predviden tudi prostor za strojnico.
Skupna površina tega nadstropja je 242,79 m2.
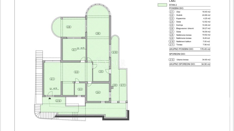
Še eno zunanje stopnišče nas vodi v četrti nivo - 1. nadstropje, kjer se nahaja veliko stanovanje z 2 spalnicama in 2 kopalnicama.
To stanovanje je bolj ali manj dokončano, popolnoma prazno in nikoli uporabljeno.
Stanovanje obsega predsobo, hodnik, dnevno sobo odprtega tipa s kuhinjo in jedilnico, dve spalnici, dve kopalnici, dve pokriti terasi, pokrit balkon in eno nepokrito teraso.
Skupna površina stanovanja brez zunanjih delov je 126,55 m2, terase in balkoni dodajo še 78,80 m2.
Skupna površina nepremičnine je 205,35 m2, neto površina z upoštevanjem ustreznih koeficientov pa 155,34 m2.
V stanovanju so izvedene priprave za vgradnjo klime, ogrevanje je centralno na kurilno olje, v kopalnicah pa je vgrajeno električno talno ogrevanje.
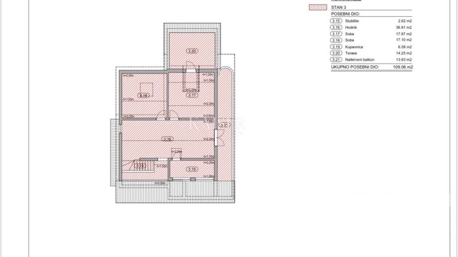
V 5. in 6. nadstropju se nahaja tretje stanovanje, ki je dvoetažno in obsega 2. nadstropje in mansardo.
Stanovanje je zelo funkcionalno razporejeno in spodnji del obsega predsobo, hodnik, dve spalnici, dnevno sobo odprtega tipa s kuhinjo in jedilnico, kopalnico, prostor pod stopnicami, pokrit balkon, pokrit vhod in tri nepokrite terase.
Notranje stopnišče nas vodi v mansardo z velikim predprostorom, ki se lahko preuredi v še eno dnevno sobo, dvema spalnicama, kopalnico, teraso in nadkrito
balkon.
Skupna površina stanovanja brez zunanjih delov je 179,36 m2, terase in balkoni dodajo še 101,78 m2.
Pripada tudi pomožni del, ki obsega zunanje stopnišče v 2. nadstropju s površino 13,31 m2.
Skupna površina tega stanovanja je 294,45 m2, neto površina z upoštevanjem ustreznih koeficientov je 221,72 m2.
Stanovanje je opremljeno s klimo, ogrevanje je centralno na kurilno olje, v kopalnicah je talno električno gretje.
Stanovanje se prodaja v celoti opremljeno (spodnji del stanovanja).
Celotna vila v trenutni konfiguraciji ponuja 406,73 m2 neto bivalne površine in 356,75 m2 teras in balkonov.
Vključno z garažo in več parkirnimi mesti je skupno na voljo 800,98 m2 s pripadajočimi količniki 561,31 m2 neto.
Vendar te številke ne vključujejo terase pred ložo ali katerega od zunanjih stopnic.
Vila se prodaja tudi po posameznih apartmajih, a je nedvomno najbolj obetavna za resnejšega investitorja, ki bi jo prevzel kot celoto in z razmeroma nezahtevno posodobitvijo sprostil njen ogromen potencial, ki je v veliki uporabni površini, izjemno atraktivna lokacija in res fenomenalni razgledi.
Obala in plaža: 650 m / 9 minut hoje
Restavracija: 900 m / 13 minut hoje
Center Opatije: 1,2 km / 15 minut hoje
Center Reke: 12 km / 20 minut
Letališče Rijeka: 35 km / 30 minut
Letališče Pula: 95 km / 60 minut
Zagreb, Ljubljana: 120 km
Budimpešta, Dunaj, München: 500 km
Agencijska provizija za kupca znaša 3% + DDV.
Provizija zajema vse storitve v zvezi z nakupom in se plača samo v primeru nakupa nepremičnine, ob sklenitvi prvega pravnega posla.
Kupnina nepremičnine: 1.800.000,00 EUR
Provizija (3,75%): 67.500,00 EUR
Celotna naložba: 1.867.500,00 EUR
Za podrobnejše informacije se obrnite na:
Jirka Nerad
Telefon: +385 911 632 884
Elektronski naslov: jirka@kaiser-immobilien.hr
Hvala!
ID KOD AGENCIJE: 101-036
Jirka Nerad
Agent s licencom u posredovanju u prometu nekretnina
Mob: +385911632884, +385995677888
E-mail: jirka@kaiser-immobilien.hr
www.kaiser-immobilien.hr
Vila je zgrajena na pobočju in je na severovzhodni in severozahodni strani obdana z zelenjem.
Skoraj vsi deli nepremičnine ponujajo res fenomenalen panoramski pogled na morje, terase in balkoni pa se raztezajo praktično v vse smeri.
Poleg celotnega Kvarnerskega zaliva bodo novi lastniki imeli na dlani tudi zgodovinsko središče Opatije z glavno plažo Slatina ali Reka.
Zaradi velikih steklenih površin in skoraj popolne orientacije so skoraj vsi prostori polni dnevne svetlobe in sonca skozi ves dan.
Celotna vila se razprostira na skupno 6 nivojih.
Najnižji nivo je namenjen garažam - trenutno je samo ena, a je prostora še za vsaj dve. Dodatna parkirna mesta se nahajajo pred garažo.
Drugi nivo je sestavljen iz velike lože 40 m2 in velike terase spredaj – ki se nahaja nad garažo.
Ložo bi lahko na primer ogradili s steklenimi stenami in jo spremenili v zimski vrt ali ločeno garsonjero.
Na celotni terasi pred ložo je idealen prostor za bodoči veliki bazen (vizualizacija v prilogi).
V tem nivoju se nahaja tudi kurilnica in drugi prostori, ki se lahko uporabljajo za tehnične inštalacije vile ali za razširitev površine lože.
Po spiralnih stopnicah se povzpnemo v tretji nivo vile - v pritličje, kjer se nahaja prvi od skupno 3 apartmajev.
Neto bivalna površina stanovanja v pritličju je 100,82 m2, pripada pa mu še 123,53 m2 terase.
Fantastičen pogled na morje je na voljo že s prejšnje lože, vendar je z vsako naslednjo etažo pogled vedno boljši.
Stanovanje ni dokončano in njegova trenutna razporeditev, ki se v tej fazi seveda lahko popolnoma spremeni, obsega kuhinjo z jedilnico in dnevno sobo, veliko predsobo, kopalnico in spalnico. Tu so tudi že omenjene pokrite in nepokrite terase in na tem nivoju je predviden tudi prostor za strojnico.
Skupna površina tega nadstropja je 242,79 m2.
Še eno zunanje stopnišče nas vodi v četrti nivo - 1. nadstropje, kjer se nahaja veliko stanovanje z 2 spalnicama in 2 kopalnicama.
To stanovanje je bolj ali manj dokončano, popolnoma prazno in nikoli uporabljeno.
Stanovanje obsega predsobo, hodnik, dnevno sobo odprtega tipa s kuhinjo in jedilnico, dve spalnici, dve kopalnici, dve pokriti terasi, pokrit balkon in eno nepokrito teraso.
Skupna površina stanovanja brez zunanjih delov je 126,55 m2, terase in balkoni dodajo še 78,80 m2.
Skupna površina nepremičnine je 205,35 m2, neto površina z upoštevanjem ustreznih koeficientov pa 155,34 m2.
V stanovanju so izvedene priprave za vgradnjo klime, ogrevanje je centralno na kurilno olje, v kopalnicah pa je vgrajeno električno talno ogrevanje.
V 5. in 6. nadstropju se nahaja tretje stanovanje, ki je dvoetažno in obsega 2. nadstropje in mansardo.
Stanovanje je zelo funkcionalno razporejeno in spodnji del obsega predsobo, hodnik, dve spalnici, dnevno sobo odprtega tipa s kuhinjo in jedilnico, kopalnico, prostor pod stopnicami, pokrit balkon, pokrit vhod in tri nepokrite terase.
Notranje stopnišče nas vodi v mansardo z velikim predprostorom, ki se lahko preuredi v še eno dnevno sobo, dvema spalnicama, kopalnico, teraso in nadkrito
balkon.
Skupna površina stanovanja brez zunanjih delov je 179,36 m2, terase in balkoni dodajo še 101,78 m2.
Pripada tudi pomožni del, ki obsega zunanje stopnišče v 2. nadstropju s površino 13,31 m2.
Skupna površina tega stanovanja je 294,45 m2, neto površina z upoštevanjem ustreznih koeficientov je 221,72 m2.
Stanovanje je opremljeno s klimo, ogrevanje je centralno na kurilno olje, v kopalnicah je talno električno gretje.
Stanovanje se prodaja v celoti opremljeno (spodnji del stanovanja).
Celotna vila v trenutni konfiguraciji ponuja 406,73 m2 neto bivalne površine in 356,75 m2 teras in balkonov.
Vključno z garažo in več parkirnimi mesti je skupno na voljo 800,98 m2 s pripadajočimi količniki 561,31 m2 neto.
Vendar te številke ne vključujejo terase pred ložo ali katerega od zunanjih stopnic.
Vila se prodaja tudi po posameznih apartmajih, a je nedvomno najbolj obetavna za resnejšega investitorja, ki bi jo prevzel kot celoto in z razmeroma nezahtevno posodobitvijo sprostil njen ogromen potencial, ki je v veliki uporabni površini, izjemno atraktivna lokacija in res fenomenalni razgledi.
Obala in plaža: 650 m / 9 minut hoje
Restavracija: 900 m / 13 minut hoje
Center Opatije: 1,2 km / 15 minut hoje
Center Reke: 12 km / 20 minut
Letališče Rijeka: 35 km / 30 minut
Letališče Pula: 95 km / 60 minut
Zagreb, Ljubljana: 120 km
Budimpešta, Dunaj, München: 500 km
Agencijska provizija za kupca znaša 3% + DDV.
Provizija zajema vse storitve v zvezi z nakupom in se plača samo v primeru nakupa nepremičnine, ob sklenitvi prvega pravnega posla.
Kupnina nepremičnine: 1.800.000,00 EUR
Provizija (3,75%): 67.500,00 EUR
Celotna naložba: 1.867.500,00 EUR
Za podrobnejše informacije se obrnite na:
Jirka Nerad
Telefon: +385 911 632 884
Elektronski naslov: jirka@kaiser-immobilien.hr
Hvala!
ID KOD AGENCIJE: 101-036
Jirka Nerad
Agent s licencom u posredovanju u prometu nekretnina
Mob: +385911632884, +385995677888
E-mail: jirka@kaiser-immobilien.hr
www.kaiser-immobilien.hr
Spletna povezava
Zemljevid
Dodatne informacije
Ogrevanje
Podatki o objektu
Možnosti parkiranja
Kaiser-Immobilien d.o.o.
Vsi oglasi te trgovine
Uporabnik je telefonsko številko preveril v državi Hrvaška
- Naslov: Maršala Tita 97, 51410 Opatija, Hrvaška, Hrvaška
- URL: https://kaiser-immobilien.hr/
-
- Oglas je objavljen
- 16.01.2025. ob 02:29
- Do poteka še
- do prodaje
- Oglas je prikazan
- 120 -krat
Kaiser-Immobilien d.o.o.
Vsi oglasi te trgovine
Uporabnik je telefonsko številko preveril v državi Hrvaška
- Naslov: Maršala Tita 97, 51410 Opatija, Hrvaška, Hrvaška
- URL: https://kaiser-immobilien.hr/
-



















