Prodaja, Hiša, Dvojček, Ljubljana okolica, Komenda, Moste (prodaja)
- Cena
- 449.000 €
Šifra oglasa: 15209897
-
- Bivalna površina
- 169,70 m²
-
- Leto izgradnje
- 2009
Osnovne informacije
- Vrsta ponudbe
- Prodam
- Lokacija
- Osrednjeslovenska, Komenda, Moste
- Vrsta hiše
- Dvojček
- Bivalna površina
- 169,70 m²
- Neto površina
- 129,00 m²
- Površina parcele
- 219,00 m²
- Leto izgradnje
- 2009
- Opremljenost in stanje
- Delno opremljeno
- Število parkirnih mest
- 3
- Balkon / terasa / atrij
- Balkon, Terasa, Atrij
- Zunanje površine in oprema
- Vrt/dvorišče
- Vrsta cene
- Skupna cena
- Interna številka oglasa
- PH2628AS
Opis oglasa
Dodaten opis nepremičnine:
Prodamo enoto dvojčka 169,7m2 bruto površine z vrtom v naselju Moste pri Komendi, ki se nahaja na odlični mirni lokaciji v bližini vse infrastrukture. Objekt je kvalitetne klasične gradnje, pripada mu 219 m2 zemljišča. Enota je etažnosti P+1+M, razdeljena na pritlični bivalni del z izhodom na vrt, spalni del v nadstropju z 2 balkonoma ter svetlo urejeno mansardo. Vsako nadstropje ima svojo klimatsko napravo, v pritličju in kopalnici, v nadstropju je talno gretje. Možno je parkirati 2 vozili pod nadstreškom in 1 pred vhodom.
OSNOVNE ZNAČILNOSTI
3 parkirna mesta pred hišo (2 pod nadstreškom)
2 kopalnici
4 spalnice
urejena mansarda (trenutno v uporabi kot pisarna)
vrt z lopo za shranjevanje
2x balkon
RAZPOREDITEV SOB
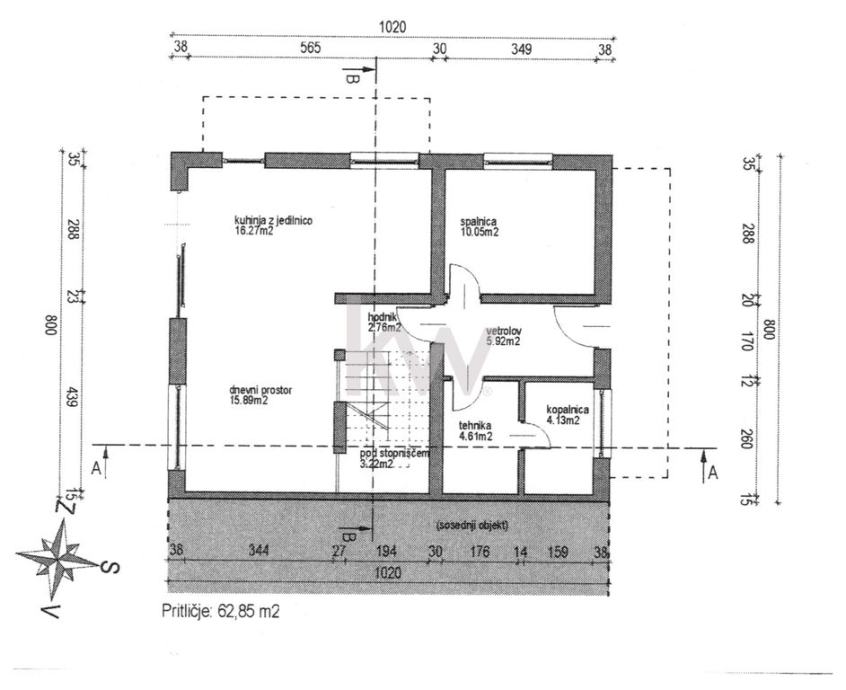
PRITLIČJE:
Hodnik
Kopalnica z WC-jem
Tehnični prostor
Soba
Stopnišče
Dnevno bivalni prostor s kuhinjo in jedilnico z izhodom na vrt
NADSTROPJE:
3 spalnici
Kopalnica z WC-jem
Stopnišče
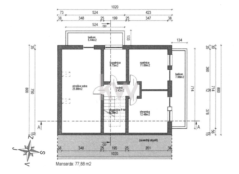
MANSARDA:
Odprt prostor trenutno zasnovan kot pisarna
POVRŠINA
Skupne površine: 169 m2
Bivalne površine: 129 m2
Površina zemljišča: 219 m2
OPREMA
Stanovanje se prodaja opremljeno oz. po dogovoru
Klima: 3x (v vsakem nadstropju)
PRIKLJUČKI
Voda
Elektrika
Kanalizacija
Ogrevanje: plin
LOKACIJA IN INFRASTRUKTURA
Objekt se nahaja v mirnem in urejenem naselju Moste pri Komendi. V bližini se nahaja vsa potrebna infrastruktura za udobno in sproščeno bivanje. V okolici je veliko zelenih površin, ki omogočajo preživljanje prostega časa v naravi. Zagotovljen je hiter dostop do avtoceste in letališča Brnik.
Prodamo enoto dvojčka 169,7m2 bruto površine z vrtom v naselju Moste pri Komendi, ki se nahaja na odlični mirni lokaciji v bližini vse infrastrukture. Objekt je kvalitetne klasične gradnje, pripada mu 219 m2 zemljišča. Enota je etažnosti P+1+M, razdeljena na pritlični bivalni del z izhodom na vrt, spalni del v nadstropju z 2 balkonoma ter svetlo urejeno mansardo. Vsako nadstropje ima svojo klimatsko napravo, v pritličju in kopalnici, v nadstropju je talno gretje. Možno je parkirati 2 vozili pod nadstreškom in 1 pred vhodom.
OSNOVNE ZNAČILNOSTI
3 parkirna mesta pred hišo (2 pod nadstreškom)
2 kopalnici
4 spalnice
urejena mansarda (trenutno v uporabi kot pisarna)
vrt z lopo za shranjevanje
2x balkon
RAZPOREDITEV SOB
PRITLIČJE:
Hodnik
Kopalnica z WC-jem
Tehnični prostor
Soba
Stopnišče
Dnevno bivalni prostor s kuhinjo in jedilnico z izhodom na vrt
NADSTROPJE:
3 spalnici
Kopalnica z WC-jem
Stopnišče
MANSARDA:
Odprt prostor trenutno zasnovan kot pisarna
POVRŠINA
Skupne površine: 169 m2
Bivalne površine: 129 m2
Površina zemljišča: 219 m2
OPREMA
Stanovanje se prodaja opremljeno oz. po dogovoru
Klima: 3x (v vsakem nadstropju)
PRIKLJUČKI
Voda
Elektrika
Kanalizacija
Ogrevanje: plin
LOKACIJA IN INFRASTRUKTURA
Objekt se nahaja v mirnem in urejenem naselju Moste pri Komendi. V bližini se nahaja vsa potrebna infrastruktura za udobno in sproščeno bivanje. V okolici je veliko zelenih površin, ki omogočajo preživljanje prostega časa v naravi. Zagotovljen je hiter dostop do avtoceste in letališča Brnik.
Zemljevid
Dodatne informacije
Ogrevanje
Podatki o objektu
Možnosti parkiranja
KW Slovenia
Vsi oglasi te trgovine
Uporabnik je telefonsko številko preveril v državi Slovenija
- Naslov: Partizanska cesta 26, 2000 Maribor, Podravska, Slovenija
- URL: https://www.kwslovenia.com/
- E-pošta: omnis@kwslovenia.com
-
- Oglas je objavljen
- 25.11.2025. ob 14:01
- Do poteka še
- do prodaje
- Oglas je prikazan
- 238 -krat
KW Slovenia
Vsi oglasi te trgovine
Uporabnik je telefonsko številko preveril v državi Slovenija
- Naslov: Partizanska cesta 26, 2000 Maribor, Podravska, Slovenija
- URL: https://www.kwslovenia.com/
- E-pošta: omnis@kwslovenia.com
-














