Ta oglas ni aktiven.
Prebrskaj podobne oglase.
prodaja, hiša samostojna, Podravska Lenart Lenart v Slov. Goricah (prodaja)
- Cena
- 232.000 €
Šifra oglasa: 4886710
-
- Bivalna površina
- 146,00 m²
-
- Število sob
- 3
-
- Leto izgradnje
- 2020
Osnovne informacije
- Vrsta ponudbe
- Prodam
- Lokacija
- Podravska, Lenart v Slovenskih goricah, Lenart v Slovenskih goricah
- Število sob
- 3
- Vrsta hiše (gradnja)
- Zidana hiša (beton, opeka)
- Vrsta hiše
- Samostojna
- Bivalna površina
- 146,00 m²
- Neto površina
- 146,00 m²
- Površina parcele
- 1.181,00 m²
- Leto izgradnje
- 2020
- Število parkirnih mest
- 1
- Vrsta cene
- Skupna cena
- Interna številka oglasa
- PH4646029MR
Opis oglasa
Pozdravljeni,
si predstavljate in želite bivanja v moderni energetsko varčni samostojni hiši v mirnem in naravnem okolju ter hkrati v neposredni bližini potrebne infrastrukture?
KJE: Lenart, ob vsej potrebni infrastrukturi ter ob uvozi na avtocesto.
OBJEKTIVNI PODATKI: Hiše se gradijo za znane kupce. V naselju je dokončanih že 40 vseljenih hiš.
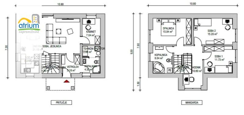
Pritličje bo zajemalo: vetrolov v izmeri 5,18m2, kopalnico v izmeri 4,35m2, tehnični prostor 2,86m2, kabinet 7,04m2, dnevno sobo z jedilnico 31,18m2 ter kuhinjo velikosti 5,52m2, shrambo 4,83m2 in stopnišče, ki vodi v mansardo, skupaj velikost pritličja je 60,93m2.
Mansarda bo obsegala: hodnik 10,60m2, stopnišče 4,73m2, kopalnico 8,04m2, spalnico 15,04m2, soba 15,20m2, soba 11,73m2. Mansarda je v velikosti 65,34m2.
Skupna izmera obeh etaž je 126,27m2 neto uporabne površine. Iz dnevne sobe izhod na betonirano teraso v izmeri cca.20m2, ki bo obložena s keramiko.
TEHNIČNI PODATKI:
Talna plošča bo izvedena v skladu s projektom. Hiša bo zidana iz opeke Poroterm (30cm) etažnosti P+M.
Notranje stene:
-nosilne stene opeka Poroterm (25cm)
-predelne stene opeka Poroterm (11,5cm)
-izvedba strojnega gips ometa debeline cca.1,5cm.
Sestava zunanje stene:
- fasadna po sistemu Baumit PRO EPS (stiropor 15cm)
- finalni sloj Baumit PRO (barva po želji kupca).
Napušč:
-Kovinska podkonstrukcija
-Stirodur plošče 20mm
-Baumit zaključni sloj (barva po izbiri kupca).
Streha:
-opeka Creaton Rapido
-strešna konstrukcija bo smrekov les
-toplotna izolacija 30cm TERVOL
-dvokapnica
-kleparski izdelki barvna pločevina
-snegobrani
-izvedba strelovoda.
Estrih:
-pritličje 15cm toplotna izolacija, 2cm sistemska plošča in 6cm betonski estrih z mikroarmaturo
-mansarda 6cm toplotna izolacija, 2cm sistemska plošča in 6cm betonski estrih z mikroarmaturo
Okna - vrata:
-okna PVC Plinie (troslojna zasteklitev-6 komorni profil)
-lamelne zunanje žaluzije (sive barve)
-vhodna vrata PVC Plinie (bela)
-notranja vrata CPL LESNA SLOVENJ GRADEC
-zunanje in notranje okenske police iz naravnega kamna.
Elektroinštalacije:
-komplet z stikali in vtičnicami v beli barvi
-v elektro omarici na parceli bo izvedeno in priključeno elektro odjemno mesto.
Strojne inštalacije:
-komplet odtoki, vodovod
-ogrevanje toplotna črpalka (zrak-voda) znamke DAIKIN (Altherma, 6KW) vključno z bojlerjem (180l)
-talno gretje
-izvedba inštalacij za vodo na zunanjem delu hiše
-izvedba inštalacij za osvetlitev vhoda z vtičnico.
Opremljenost kopalnice:
-vgrajen podometni wc splakovalnik Geberit (2 kom)
-cevni kopalniški radiator (1kom).
Talne in stenske obloge:
-izvedba keramike I.razred (20 €/m2)
-izvedba gotovega parketa, I.razred, po izbiri naročnika (30 €/m2).
Zunanje talne obloge:
-izvedba keramike na terasi(sive barve)
-izvedba pločnika okrog hiše (širine 60cm).
Slikopleskarska dela:
- 2x kitanje
- 2x pleskanje bela barva.
Ureditev okolice:
-poravnana parcela
-nasutje za parkirni prostor v velikosti 20m2
V ceno je vključeno komunalno opremljeno zemljišče v skupni izmeri 1.181 m2 s projektno dokumentacijo ter energetsko varčno samostojna hiša.
Hiša se bo gradila na prečudoviti ravni in sončni lokaciji v čisto novem naselju novih hiš v centru Lenarta.
POMAGAMO VAM UREDITI UGODNO FINANCIRANJE.
Lep pozdrav Marina.
si predstavljate in želite bivanja v moderni energetsko varčni samostojni hiši v mirnem in naravnem okolju ter hkrati v neposredni bližini potrebne infrastrukture?
KJE: Lenart, ob vsej potrebni infrastrukturi ter ob uvozi na avtocesto.
OBJEKTIVNI PODATKI: Hiše se gradijo za znane kupce. V naselju je dokončanih že 40 vseljenih hiš.
Pritličje bo zajemalo: vetrolov v izmeri 5,18m2, kopalnico v izmeri 4,35m2, tehnični prostor 2,86m2, kabinet 7,04m2, dnevno sobo z jedilnico 31,18m2 ter kuhinjo velikosti 5,52m2, shrambo 4,83m2 in stopnišče, ki vodi v mansardo, skupaj velikost pritličja je 60,93m2.
Mansarda bo obsegala: hodnik 10,60m2, stopnišče 4,73m2, kopalnico 8,04m2, spalnico 15,04m2, soba 15,20m2, soba 11,73m2. Mansarda je v velikosti 65,34m2.
Skupna izmera obeh etaž je 126,27m2 neto uporabne površine. Iz dnevne sobe izhod na betonirano teraso v izmeri cca.20m2, ki bo obložena s keramiko.
TEHNIČNI PODATKI:
Talna plošča bo izvedena v skladu s projektom. Hiša bo zidana iz opeke Poroterm (30cm) etažnosti P+M.
Notranje stene:
-nosilne stene opeka Poroterm (25cm)
-predelne stene opeka Poroterm (11,5cm)
-izvedba strojnega gips ometa debeline cca.1,5cm.
Sestava zunanje stene:
- fasadna po sistemu Baumit PRO EPS (stiropor 15cm)
- finalni sloj Baumit PRO (barva po želji kupca).
Napušč:
-Kovinska podkonstrukcija
-Stirodur plošče 20mm
-Baumit zaključni sloj (barva po izbiri kupca).
Streha:
-opeka Creaton Rapido
-strešna konstrukcija bo smrekov les
-toplotna izolacija 30cm TERVOL
-dvokapnica
-kleparski izdelki barvna pločevina
-snegobrani
-izvedba strelovoda.
Estrih:
-pritličje 15cm toplotna izolacija, 2cm sistemska plošča in 6cm betonski estrih z mikroarmaturo
-mansarda 6cm toplotna izolacija, 2cm sistemska plošča in 6cm betonski estrih z mikroarmaturo
Okna - vrata:
-okna PVC Plinie (troslojna zasteklitev-6 komorni profil)
-lamelne zunanje žaluzije (sive barve)
-vhodna vrata PVC Plinie (bela)
-notranja vrata CPL LESNA SLOVENJ GRADEC
-zunanje in notranje okenske police iz naravnega kamna.
Elektroinštalacije:
-komplet z stikali in vtičnicami v beli barvi
-v elektro omarici na parceli bo izvedeno in priključeno elektro odjemno mesto.
Strojne inštalacije:
-komplet odtoki, vodovod
-ogrevanje toplotna črpalka (zrak-voda) znamke DAIKIN (Altherma, 6KW) vključno z bojlerjem (180l)
-talno gretje
-izvedba inštalacij za vodo na zunanjem delu hiše
-izvedba inštalacij za osvetlitev vhoda z vtičnico.
Opremljenost kopalnice:
-vgrajen podometni wc splakovalnik Geberit (2 kom)
-cevni kopalniški radiator (1kom).
Talne in stenske obloge:
-izvedba keramike I.razred (20 €/m2)
-izvedba gotovega parketa, I.razred, po izbiri naročnika (30 €/m2).
Zunanje talne obloge:
-izvedba keramike na terasi(sive barve)
-izvedba pločnika okrog hiše (širine 60cm).
Slikopleskarska dela:
- 2x kitanje
- 2x pleskanje bela barva.
Ureditev okolice:
-poravnana parcela
-nasutje za parkirni prostor v velikosti 20m2
V ceno je vključeno komunalno opremljeno zemljišče v skupni izmeri 1.181 m2 s projektno dokumentacijo ter energetsko varčno samostojna hiša.
Hiša se bo gradila na prečudoviti ravni in sončni lokaciji v čisto novem naselju novih hiš v centru Lenarta.
POMAGAMO VAM UREDITI UGODNO FINANCIRANJE.
Lep pozdrav Marina.
Spletna povezava
Dodatne informacije
Kopalnica
- Oglas je objavljen
- 27.10.2020. ob 00:13
- Do poteka še
- oglas je potekel
- Oglas je prikazan
- 486 -krat






