Ta oglas ni aktiven.
Prebrskaj podobne oglase.
-
- Število sob
- 5
-
- Leto izgradnje
- 1981
Osnovne informacije
- Vrsta ponudbe
- Prodam
- Lokacija
- Osrednjeslovenska, Trzin, Trzin
- Število sob
- 5
- Število nadstropij
- Pritlična
- Vrsta hiše
- Samostojna
- Leto izgradnje
- 1981
- Zunanje površine in oprema
- Vrt/dvorišče
- Energetski razred
- E (105 - 150 kWh/m²a)
- Vrsta cene
- Skupna cena
- Interna številka oglasa
- 490391001-78
Opis oglasa
Posredujemo pri prodaji enostanovanjske hiše v Trzinu, ki je bila zgrajena leta 1981, ki stoji na 536 m2 velikem zemljišču. Po podatkih GURS-a ima objekt 154,6 m2 skupne površine.
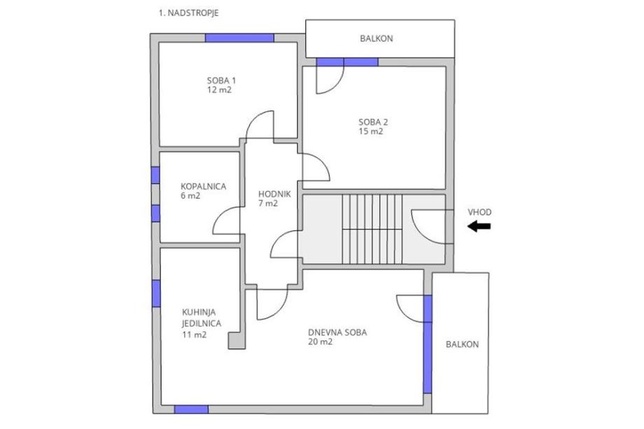
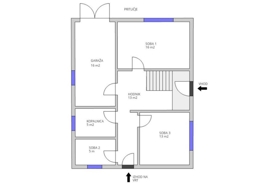
Objekt obsega dve etaži:
PRITLIČJE: garaža, kurilnica, kopalnica, ter dve sobi,
1. NADSTROPJE: kuhinja z jedilnico, dnevna soba z balkonom, kopalnica ter dve sobi od tega ena z balkonom.
Objekt se ogreva na plin.
Natančnejša mikrolokacija je znotraj mirnega naselja v Trzinu. V bližini je Ljubljanska cesta od koder so postajališča za avtobus in vlak. Znotraj naselja se nahajajo trgovina, vrtec in osnovna šola.
Za več informacij in dogovor za ogled sem vam na voljo!
Objekt obsega dve etaži:
PRITLIČJE: garaža, kurilnica, kopalnica, ter dve sobi,
1. NADSTROPJE: kuhinja z jedilnico, dnevna soba z balkonom, kopalnica ter dve sobi od tega ena z balkonom.
Objekt se ogreva na plin.
Natančnejša mikrolokacija je znotraj mirnega naselja v Trzinu. V bližini je Ljubljanska cesta od koder so postajališča za avtobus in vlak. Znotraj naselja se nahajajo trgovina, vrtec in osnovna šola.
Za več informacij in dogovor za ogled sem vam na voljo!
Spletna povezava
Zemljevid
Dodatne informacije
Okolica
Možnosti parkiranja
- Oglas je objavljen
- 07.05.2024. ob 00:14
- Do poteka še
- oglas je potekel
- Oglas je prikazan
- 15214 -krat

















