-
- Površina
- 500,00 m²
-
- Vrsta posesti
- Zazidljiva
Osnovne informacije
- Vrsta ponudbe
- Prodam
- Lokacija
- Izven Slovenije - Hrvaška, Istrska, Labin
- Vrsta posesti
- Zazidljiva
- Površina
- 500,00 m²
- Vrsta cene
- Skupna cena
- Interna številka oglasa
- 112-108
Opis oglasa
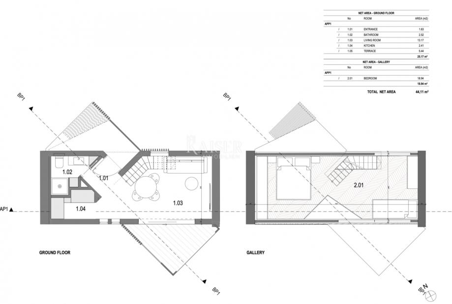
Kaiser Immobilien predstavlja čudovito zazidljivo parcelo z idejnim projektom in pogledom na morje. Zemljišče se nahaja na mirni lokaciji nedaleč od mesta Labin. Labin je znan po svoji bogati zgodovini, kulturnih znamenitostih in bližini prelepih istrskih plaž. Ker je zemljišče v bližini morja, omogoča enostaven dostop do plaž in možnost uživanja v morskih aktivnostih. Mirna soseska dodatno prispeva h kvaliteti življenja na tem zemljišču. Pomirjujoče okolje vam omogoča sprostitev in uživanje v zasebnosti, medtem ko je bližina mesta Labin primerna za dostop do vseh potrebnih dobrin. Zemljišče obsega 500 m2 in je pretežno ravno. S terena je pogled na morje. Na tem zemljišču je na podlagi idejne zasnove predviden objekt s tremi stanovanji in bazenom, razporejen v pritličju in nadstropju. Apartmaji imajo skupno kvadraturo 45 m2 in imajo lastno teraso. Vsako stanovanje bi imelo svoje parkirno mesto. Bazen je namenjen skupni uporabi.
ID KOD AGENCIJE: 112-108
Ana Beović
Agent s licencom u posredovanju u prometu nekretnina
Mob: +385916183332, +385995677888
E-mail: ana@kaiser-immobilien.hr
www.kaiser-immobilien.hr
ID KOD AGENCIJE: 112-108
Ana Beović
Agent s licencom u posredovanju u prometu nekretnina
Mob: +385916183332, +385995677888
E-mail: ana@kaiser-immobilien.hr
www.kaiser-immobilien.hr
Spletna povezava
Zemljevid
Kaiser-Immobilien d.o.o.
Vsi oglasi te trgovine
Uporabnik je telefonsko številko preveril v državi Hrvaška
- Naslov: Maršala Tita 97, 51410 Opatija, Hrvaška, Hrvaška
- URL: https://kaiser-immobilien.hr/
-
- Oglas je objavljen
- 24.05.2024. ob 00:24
- Do poteka še
- do prodaje
- Oglas je prikazan
- 144 -krat
Kaiser-Immobilien d.o.o.
Vsi oglasi te trgovine
Uporabnik je telefonsko številko preveril v državi Hrvaška
- Naslov: Maršala Tita 97, 51410 Opatija, Hrvaška, Hrvaška
- URL: https://kaiser-immobilien.hr/
-







