Ta oglas ni aktiven.
Prebrskaj podobne oglase.
-
- Bivalna površina
- 230,33 m²
-
- Leto izgradnje
- 2025
Osnovne informacije
- Vrsta ponudbe
- Prodam
- Lokacija
- Podravska, Rače, Fram
- Vrsta hiše
- Samostojna
- Bivalna površina
- 230,33 m²
- Površina parcele
- 615,00 m²
- Leto izgradnje
- 2025
- Vrsta cene
- Skupna cena
- Interna številka oglasa
- 109223-049
Opis oglasa
Posredujemo pri prodaji Enostanovanjske hiše v Framu pri Mariboru, ki je idealna izbira za tiste, ki želijo združiti prednosti mirnega življenja v naravi z bližino mestnega utripa.
Fram pri Mariboru je priljubljeno naselje, ki združuje prednosti mirnega podeželskega življenja in bližine urbanega okolja. Je le približno 15 minut vožnje oddaljen od Maribora, kar omogoča hiter dostop do mestne infrastrukture in ostalih storitev. Velika prednost je pa tudi hiter izvoz na avtocesto.
Obdan je z naravo, kjer lahko uživate v miru, svežem zraku in čudovitih razgledih. V bližini se nahajajo gozdovi, vinogradi in pohodniške poti, idealne za rekreacijo in sprostitev.
Manjše naselje omogoča bolj osebne stike in prijazno sosedsko vzdušje. Družinam prijazno okolje pa ponuja dostop do lokalne šole in vrtca.
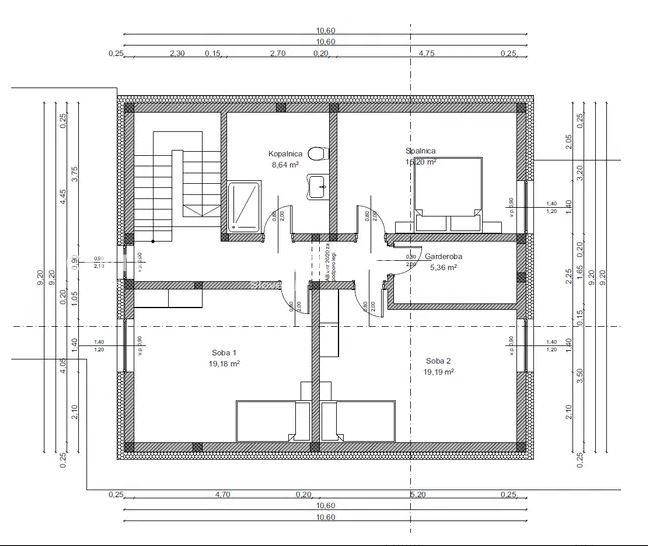
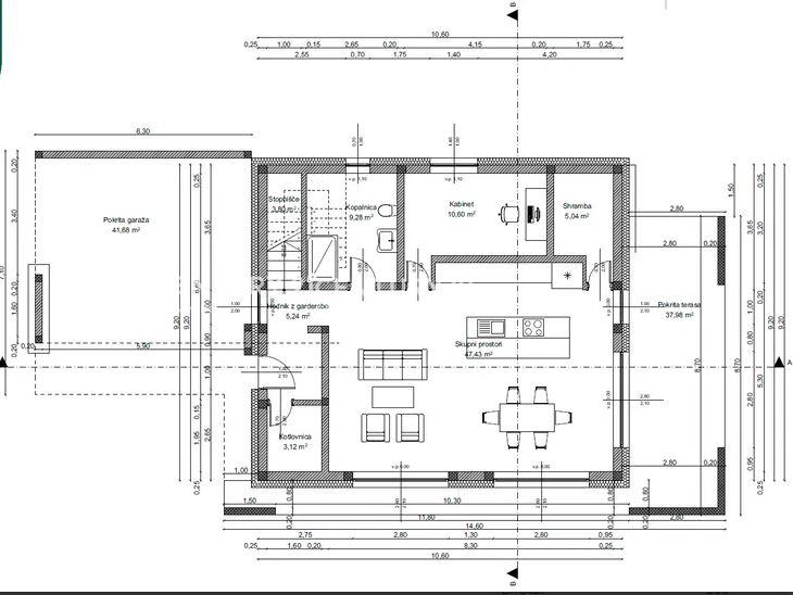
RAZPOREDITEV PROSTOROV
Hiša bo modernega videza in z zelo funkcionalno razporeditvijo prostorov.
Pritličje: hodnik z garderobo, tehnični prostor, kabinet, kopalnica, shramba, dnevno bivalni prostor z izhodom na pokrito zunanjo teraso.
Nadstropje: manjši hodnik, kopalnica, 3 sobe in dodatna soba (garderoba ali shramba).
ARHITEKTURNA ZASNOVA
Hiša bo klasične opečne gradnje, z armiranobetonsko ploščo debeline 25 cm, opečnim zidakom debeline 30 cm in s toplotno izolacijsko fasado debeline 20 cm. Notranje predelne stene bodo v suho-montažni izvedbi.
Streha: dvokapnica z opečno kritino, v antracit barvi, v naklonu 35° nad stanovanjskim objektom in ravno streho nad pokrito teraso in garažo z lopo.
Vhodna vrata: s 3 – točkovno zaporo iz nerjavečega jekla v antracit barvi.
Notranja vrata: standardne višine 200 cm, gladka, bele barve, dobavitelja LIP Bled.
PVC okna:s troslojno zasteklitvijo in protivlomnim zapahom. Barva oken je zunaj črna; znotraj bela.
Senčila: na zunanji strani z elektro pogonom.
Keramika: v kopalnici, wc-ju (do 150 cm), tehničnem prostoru in na hodniku (samo talna).
Parket: v dnevnem prostoru in sobah - gotov hrastov parket, primeren za talno ogrevanje in vključuje standardne hrastove zaključne vogalne letve.
Slikopleskarska dela:vse stene zaključene v beli barvi.
Ogrevanje: urejeno s toplotno črpalko zrak-voda znamke Daikin, ki bo zagotavljala talno gretje ter ogrevanje sanitarne vode.
Centralna rekuperacija: predpriprava -za optimalno prezračevanje in energetsko učinkovitost.
Parkirna površina: predvidena je pod pokrito nadstrešnico, ki bo omogočala parkiranje dveh avtomobilov.
Zunanjost: urejena zazelenitev, tlakovani dovoz, terasa in rob okoli hiše.
Do hiše bo speljana urejena asfaltna cesta. Urejeni bodo vsi priključki na vodovodno, električno, telefonsko, internetno, kanalizacijsko omrežje.
Izvedba hiše DO IV. GRADBENE FAZE – vključuje vse zaključene gradbene in obrtniške faze, tako zunaj kot znotraj objekta (položeni estrihi, postavljene predelne stene, pobarvane stene in stropovi, zaključene vse inštalacije, urejena okolica). Ne vključuje pa vgradnje keramike, parketa in notranjih vrat, barvanja sten ter toplotne črpalke in rekuperatorja.
Cena hiše do IV.gradbene faze: 309.000,00 EUR (vključen DDV)
Prve hiše bodo vseljive konec leta 2025.
Za ogled in ostale informacije me pokličite. Z veseljem vam predstavim vaš novi dom.
Če pa razmišljate o prodaji svoje stare nepremičnine, vam priporočam, da mi zaupate tudi ta pomemben korak in me angažirate pri njeni prodaji!
SLIKE NA STRANI SO SIMBOLIČNE!
Fram pri Mariboru je priljubljeno naselje, ki združuje prednosti mirnega podeželskega življenja in bližine urbanega okolja. Je le približno 15 minut vožnje oddaljen od Maribora, kar omogoča hiter dostop do mestne infrastrukture in ostalih storitev. Velika prednost je pa tudi hiter izvoz na avtocesto.
Obdan je z naravo, kjer lahko uživate v miru, svežem zraku in čudovitih razgledih. V bližini se nahajajo gozdovi, vinogradi in pohodniške poti, idealne za rekreacijo in sprostitev.
Manjše naselje omogoča bolj osebne stike in prijazno sosedsko vzdušje. Družinam prijazno okolje pa ponuja dostop do lokalne šole in vrtca.
RAZPOREDITEV PROSTOROV
Hiša bo modernega videza in z zelo funkcionalno razporeditvijo prostorov.
Pritličje: hodnik z garderobo, tehnični prostor, kabinet, kopalnica, shramba, dnevno bivalni prostor z izhodom na pokrito zunanjo teraso.
Nadstropje: manjši hodnik, kopalnica, 3 sobe in dodatna soba (garderoba ali shramba).
ARHITEKTURNA ZASNOVA
Hiša bo klasične opečne gradnje, z armiranobetonsko ploščo debeline 25 cm, opečnim zidakom debeline 30 cm in s toplotno izolacijsko fasado debeline 20 cm. Notranje predelne stene bodo v suho-montažni izvedbi.
Streha: dvokapnica z opečno kritino, v antracit barvi, v naklonu 35° nad stanovanjskim objektom in ravno streho nad pokrito teraso in garažo z lopo.
Vhodna vrata: s 3 – točkovno zaporo iz nerjavečega jekla v antracit barvi.
Notranja vrata: standardne višine 200 cm, gladka, bele barve, dobavitelja LIP Bled.
PVC okna:s troslojno zasteklitvijo in protivlomnim zapahom. Barva oken je zunaj črna; znotraj bela.
Senčila: na zunanji strani z elektro pogonom.
Keramika: v kopalnici, wc-ju (do 150 cm), tehničnem prostoru in na hodniku (samo talna).
Parket: v dnevnem prostoru in sobah - gotov hrastov parket, primeren za talno ogrevanje in vključuje standardne hrastove zaključne vogalne letve.
Slikopleskarska dela:vse stene zaključene v beli barvi.
Ogrevanje: urejeno s toplotno črpalko zrak-voda znamke Daikin, ki bo zagotavljala talno gretje ter ogrevanje sanitarne vode.
Centralna rekuperacija: predpriprava -za optimalno prezračevanje in energetsko učinkovitost.
Parkirna površina: predvidena je pod pokrito nadstrešnico, ki bo omogočala parkiranje dveh avtomobilov.
Zunanjost: urejena zazelenitev, tlakovani dovoz, terasa in rob okoli hiše.
Do hiše bo speljana urejena asfaltna cesta. Urejeni bodo vsi priključki na vodovodno, električno, telefonsko, internetno, kanalizacijsko omrežje.
Izvedba hiše DO IV. GRADBENE FAZE – vključuje vse zaključene gradbene in obrtniške faze, tako zunaj kot znotraj objekta (položeni estrihi, postavljene predelne stene, pobarvane stene in stropovi, zaključene vse inštalacije, urejena okolica). Ne vključuje pa vgradnje keramike, parketa in notranjih vrat, barvanja sten ter toplotne črpalke in rekuperatorja.
Cena hiše do IV.gradbene faze: 309.000,00 EUR (vključen DDV)
Prve hiše bodo vseljive konec leta 2025.
Za ogled in ostale informacije me pokličite. Z veseljem vam predstavim vaš novi dom.
Če pa razmišljate o prodaji svoje stare nepremičnine, vam priporočam, da mi zaupate tudi ta pomemben korak in me angažirate pri njeni prodaji!
SLIKE NA STRANI SO SIMBOLIČNE!
Zemljevid
Dodatne informacije
Stanje objekta
- Oglas je objavljen
- 04.07.2025. ob 09:50
- Do poteka še
- oglas je potekel
- Oglas je prikazan
- 697 -krat








