-
- Površina
- 678,00 m²
-
- Vrsta posesti
- Zazidljiva
Osnovne informacije
- Vrsta ponudbe
- Prodam
- Lokacija
- Izven Slovenije - Hrvaška, Primorsko-goranska, Crikvenica
- Vrsta posesti
- Zazidljiva
- Površina
- 678,00 m²
- Vrsta cene
- Skupna cena
- Interna številka oglasa
- 970-Z2872
Opis oglasa
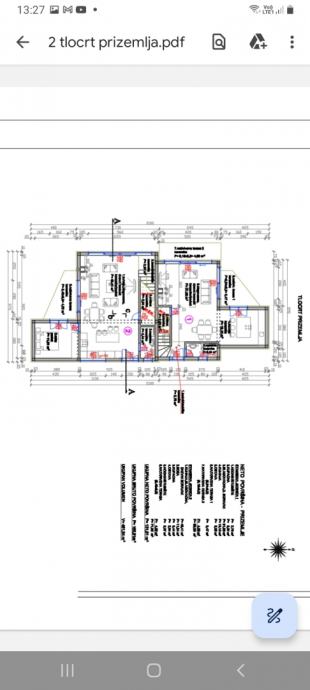
Posredujemo pri prodaji gradbenega zemljišča v velikosti 678 m2, s projektom vile s tlorisno površino 131 m2 z dvema stanovanjskima enotama. Stanovanjske enote so dvonadstropne (v pritličju dnevna soba, kuhinja, kopalnica, 1 spalnica, v prvem nadstropju pa 3 spalnice, hodnik, shramba, 3 kopalnice), vsaka ima svoj bazen. Vila bo imela tudi 3 garaže. Pravnomočno gradbeno dovoljenje velja do 30.05.2025.
Parcela se nahaja približno 700 m od morja in centra Selca in ponuja panoramski pogled na morje.
ID KOD AGENCIJE: 970-Z2872
Jasna Lončarić Kereša
Licencirani agent
Mob: +385924460144
Tel: +385 51 277 401
E-mail: jasna@opatijanekretnine.info
www.opatijanekretnine.hr
Parcela se nahaja približno 700 m od morja in centra Selca in ponuja panoramski pogled na morje.
ID KOD AGENCIJE: 970-Z2872
Jasna Lončarić Kereša
Licencirani agent
Mob: +385924460144
Tel: +385 51 277 401
E-mail: jasna@opatijanekretnine.info
www.opatijanekretnine.hr
Spletna povezava
Zemljevid
Opatija nekretnine
Vsi oglasi te trgovine
Uporabnik je telefonsko številko preveril v državi Hrvaška
- Naslov: 51410 Opatija, Hrvaška, Hrvaška
- URL: https://www.opatijanekretnine.hr/
- E-pošta: info@opatijanekretnine.info
-
- Oglas je objavljen
- 22.11.2025. ob 08:55
- Do poteka še
- do prodaje
- Oglas je prikazan
- 267 -krat
Opatija nekretnine
Vsi oglasi te trgovine
Uporabnik je telefonsko številko preveril v državi Hrvaška
- Naslov: 51410 Opatija, Hrvaška, Hrvaška
- URL: https://www.opatijanekretnine.hr/
- E-pošta: info@opatijanekretnine.info
-





