Zadar, Vir - Hiša z bazenom v gradnji (prodaja)
- Cena
- 257.000 €
-
Želite na boljše? Preverite stanovanjski kredit OTP banke.OglasOglaševalec OTP banka d.d.
Zakaj vidim ta oglas?
Uporaba omejenih podatkov za izbiro oglasov: oglasi, ki se vam prikazujejo v tej storitvi, lahko temeljijo na omejenih podatkih, kot so spletna stran ali aplikacija, ki jo trenutno uporabljate, vaša približna lokacija, vrsta naprave ali vsebine, s katerimi ste bili v interakciji (npr. za omejevanje pogostosti prikazovanja oglasov).
Šifra oglasa: 14715527
-
- Bivalna površina
- 85,00 m²
-
- Število sob
- 3
-
- Leto izgradnje
- 2025
Osnovne informacije
- Vrsta ponudbe
- Prodam
- Lokacija
- Izven Slovenije - Hrvaška, Zadarska, Vir
- Število sob
- 3
- Število nadstropij
- Pritlična
- Vrsta hiše
- Samostojna
- Bivalna površina
- 85,00 m²
- Leto izgradnje
- 2025
- Število parkirnih mest
- 2
- Vrsta cene
- Skupna cena
- Interna številka oglasa
- 138-42
Opis oglasa
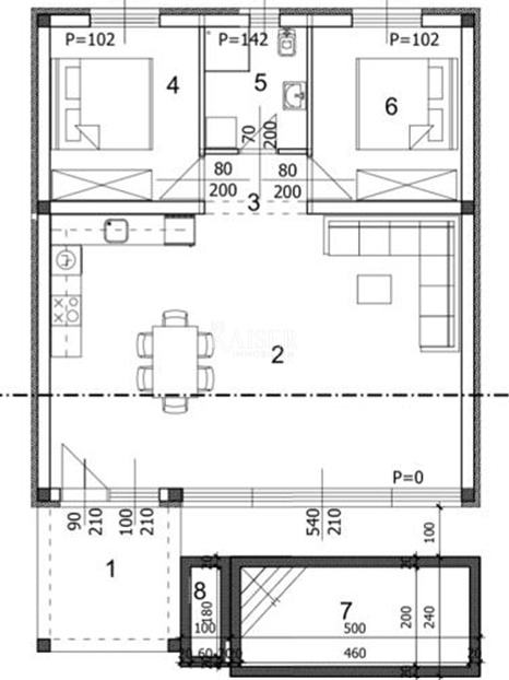
Naprodaj je hiša v gradnji na otoku Viru, s predvidenim datumom dokončanja 1. junija 2026. Ta moderna enonadstropna hiša velikosti 85 m² se nahaja v mirnem delu otoka na parceli velikosti 392 m², 1,4 km od morja in plaže. Hiša bo imela zasebni bazen, kar še dodatno izboljša kakovost bivanja in poveča njeno privlačnost za turistični najem. Razporeditev prostorov vključuje dve spalnici, prostorno dnevno sobo z jedilnico in kuhinjo odprtega tipa ter kopalnico z WC-jem. Hiša je zgrajena iz kakovostnih materialov: odlična toplotna izolacija, PVC stavbno pohištvo z roletami, moderne keramične ploščice in sanitarna oprema ter sodobni zaključni detajli. Zunanjost bo zasnovana v sodobnem mediteranskem slogu s čistimi linijami in svetlo fasado. Na dvorišču bo bazen in prostor za sončenje, idealen za uživanje poleti. Nepremičnina je idealna za družinsko življenje, počitnice ali kot odlična naložba za turistični najem, glede na priljubljenost Vira med domačimi in tujimi gosti. Otok Vir je ena najbolj zaželenih turističnih destinacij na Jadranu. S celino je povezan z mostom, ki omogoča dostop skozi vse leto. Otok ponuja več kot 30 kilometrov razčlenjene obale, številne prodnate in peščene plaže, kolesarske steze, restavracije, trgovine in zabaviščne objekte. Čisto morje, naravno okolje in blago sredozemsko podnebje z velikim številom sončnih dni naredijo Vir idealno destinacijo za bivanje ali investiranje. Cena hiše je trenutno nižja, ker je nepremičnina v gradnji. Z nakupom v tej fazi je možno sodelovati tudi pri izbiri zaključnih materialov. Akontacija znaša 10 % ali po dogovoru, z možnostjo dogovora o dinamiki plačila. Agencijska provizija za kupca znaša 3 % + DDV in se plača v primeru nakupa nepremičnine, ob sklenitvi prvega pravnega dejanja. Za več informacij in za dogovor o ogledu nas kontaktirajte z zaupanjem. Tel: +385915404646 E-pošta: vedran@kaiser-immobilien.hr
ID KOD AGENCIJE: 138-42
Vedran Vilović
Agent posredovanja u prometu nekretnina
Mob: +385997031459, +385995677888
E-mail: vedran@kaiser-immobilien.hr
www.kaiser-immobilien.hr
ID KOD AGENCIJE: 138-42
Vedran Vilović
Agent posredovanja u prometu nekretnina
Mob: +385997031459, +385995677888
E-mail: vedran@kaiser-immobilien.hr
www.kaiser-immobilien.hr
Spletna povezava
Zemljevid
Dodatne informacije
Ogrevanje
Podatki o objektu
Kaiser-Immobilien d.o.o.
Vsi oglasi te trgovine
Uporabnik je telefonsko številko preveril v državi Hrvaška
- Naslov: Maršala Tita 97, 51410 Opatija, Hrvaška, Hrvaška
- URL: https://kaiser-immobilien.hr/
-
- Oglas je objavljen
- 16.09.2025. ob 12:46
- Do poteka še
- do prodaje
- Oglas je prikazan
- 403 -krat
Kaiser-Immobilien d.o.o.
Vsi oglasi te trgovine
Uporabnik je telefonsko številko preveril v državi Hrvaška
- Naslov: Maršala Tita 97, 51410 Opatija, Hrvaška, Hrvaška
- URL: https://kaiser-immobilien.hr/
-








