ZADAR, ZATON - Čudovita vila s pogledom na morje (prodaja)
- Cena
- 990.000 €
-
Želite na boljše? Preverite stanovanjski kredit OTP banke.OglasOglaševalec OTP banka d.d.
Zakaj vidim ta oglas?
Uporaba omejenih podatkov za izbiro oglasov: oglasi, ki se vam prikazujejo v tej storitvi, lahko temeljijo na omejenih podatkih, kot so spletna stran ali aplikacija, ki jo trenutno uporabljate, vaša približna lokacija, vrsta naprave ali vsebine, s katerimi ste bili v interakciji (npr. za omejevanje pogostosti prikazovanja oglasov).
Šifra oglasa: 10865778
-
- Bivalna površina
- 300,00 m²
-
- Število sob
- 9
-
- Leto izgradnje
- 2014
Osnovne informacije
- Vrsta ponudbe
- Prodam
- Lokacija
- Izven Slovenije - Hrvaška, Zadarska, Nin
- Število sob
- 9
- Število nadstropij
- Enonadstropna
- Vrsta hiše
- Samostojna
- Bivalna površina
- 300,00 m²
- Površina parcele
- 798,00 m²
- Leto izgradnje
- 2014
- Leto zadnje prenove
- 2022
- Število parkirnih mest
- 4
- Balkon / terasa / atrij
- Balkon
- Energetski razred
- B (26 do 50 kWh/m²a) - HR
- Vrsta cene
- Skupna cena
- Interna številka oglasa
- 17590
Opis oglasa
ZADAR, ZATON - Čudovita vila s pogledom na morje
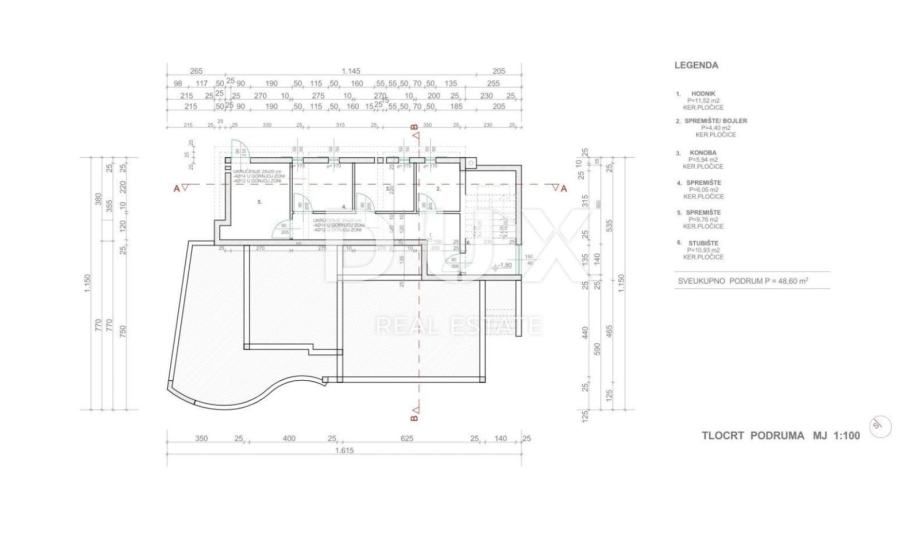
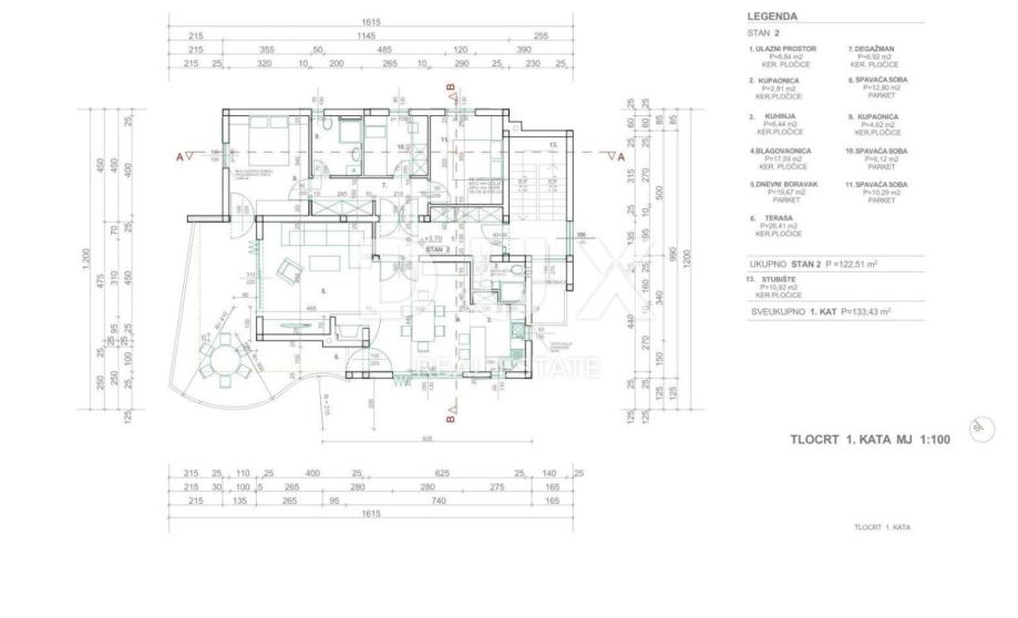
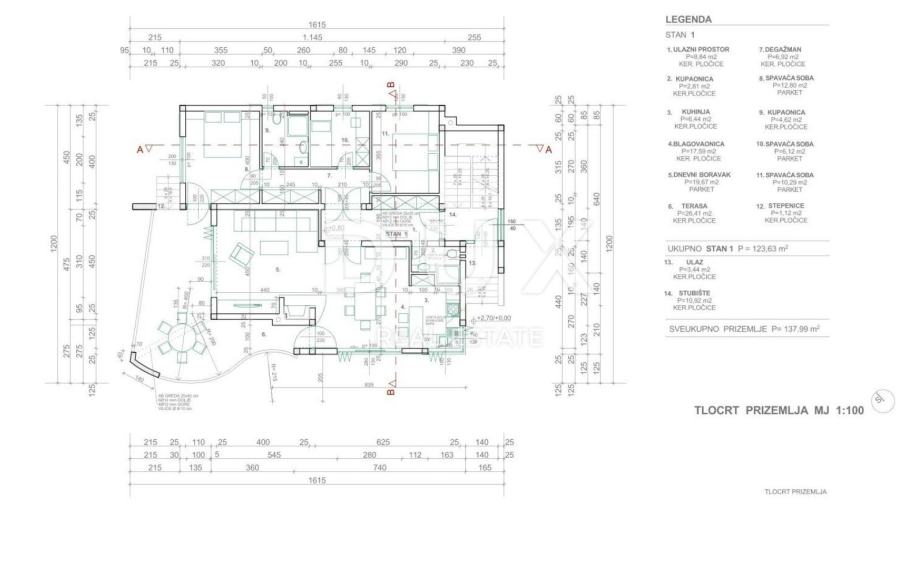
Prodamo čudovito luksuzno vilo z ogrevanim bazenom v Zatonu pri Zadru. Vila z dobro urejeno turistično dejavnostjo ima skupno bivalno površino 300 m2 in je zgrajena na zemljišču velikosti 798 m2. V pritličju se nahajajo prostorna dnevna soba, jedilnica in moderna kuhinja, tri spalnice in dve kopalnici. V prvem nadstropju je dnevna soba in igralnica, tri spalnice in dve kopalnici. Vsi prostori so klimatizirani, vila pa ima tudi solarno ogrevanje sanitarne vode ter fotovoltaiko za proizvodnjo električne energije. V kleti hiše je še ena kopalnica, pralnica in kurilnica. Na popolnoma ograjenem dvorišču vile se nahaja velik ogrevan bazen, obdan z zelenjem, otroško igrišče in žar. Na voljo je zasebno parkirišče s štirimi parkirnimi mesti. Vila je od morja in prve plaže oddaljena 120 m.Mesto Zaton je izjemno priljubljena turistična destinacija, glede na lepe plaže na tem območju in bližino urbanega centra Zadra, ki je oddaljen le 15 km. Tik ob Zatonu se nahaja zgodovinsko mesto Nin, znano po številnih zanimivih zgodovinskih in kulturnih spomenikih, ki segajo v prazgodovino. Tam si lahko ogledate na primer ostanke rimskega foruma, v Ninu pa so našli tudi ostanke srednjeveških in starohrvaških vojnih in trgovskih ladij, imenovanih kondure. V Ninu je tudi najdaljša peščena plaža na Hrvaškem Kraljičina plaža. V Ninski laguni je tudi nahajališče z zdravilnim blatom Peloid, katerega blagodejne lastnosti so bile znane že v rimskih časih.
Cenjene stranke, agencijska provizija se obračunava v skladu s Splošnimi pogoji poslovanja www.dux-nekretnine.hr/opci-uvjeti-poslovanja
ID KOD AGENCIJE: 17590
DUX Nekretnine
Mob: +385 91 480 8808
Tel: +385 51 518 174
E-mail: info@dux-nekretnine.hr
www.dux-nekretnine.hr
Prodamo čudovito luksuzno vilo z ogrevanim bazenom v Zatonu pri Zadru. Vila z dobro urejeno turistično dejavnostjo ima skupno bivalno površino 300 m2 in je zgrajena na zemljišču velikosti 798 m2. V pritličju se nahajajo prostorna dnevna soba, jedilnica in moderna kuhinja, tri spalnice in dve kopalnici. V prvem nadstropju je dnevna soba in igralnica, tri spalnice in dve kopalnici. Vsi prostori so klimatizirani, vila pa ima tudi solarno ogrevanje sanitarne vode ter fotovoltaiko za proizvodnjo električne energije. V kleti hiše je še ena kopalnica, pralnica in kurilnica. Na popolnoma ograjenem dvorišču vile se nahaja velik ogrevan bazen, obdan z zelenjem, otroško igrišče in žar. Na voljo je zasebno parkirišče s štirimi parkirnimi mesti. Vila je od morja in prve plaže oddaljena 120 m.Mesto Zaton je izjemno priljubljena turistična destinacija, glede na lepe plaže na tem območju in bližino urbanega centra Zadra, ki je oddaljen le 15 km. Tik ob Zatonu se nahaja zgodovinsko mesto Nin, znano po številnih zanimivih zgodovinskih in kulturnih spomenikih, ki segajo v prazgodovino. Tam si lahko ogledate na primer ostanke rimskega foruma, v Ninu pa so našli tudi ostanke srednjeveških in starohrvaških vojnih in trgovskih ladij, imenovanih kondure. V Ninu je tudi najdaljša peščena plaža na Hrvaškem Kraljičina plaža. V Ninski laguni je tudi nahajališče z zdravilnim blatom Peloid, katerega blagodejne lastnosti so bile znane že v rimskih časih.
Cenjene stranke, agencijska provizija se obračunava v skladu s Splošnimi pogoji poslovanja www.dux-nekretnine.hr/opci-uvjeti-poslovanja
ID KOD AGENCIJE: 17590
DUX Nekretnine
Mob: +385 91 480 8808
Tel: +385 51 518 174
E-mail: info@dux-nekretnine.hr
www.dux-nekretnine.hr
Spletna povezava
Zemljevid
Dodatne informacije
Ogrevanje
Podatki o objektu
Dux nekretnine
Vsi oglasi te trgovine
Uporabnik je telefonsko številko preveril v državi Hrvaška
- Naslov: Tizianova 8, 51000 Rijeka, Hrvaška, Hrvaška
- URL: https://www.dux-nekretnine.hr/
-
- Oglas je objavljen
- 26.02.2026. ob 08:11
- Do poteka še
- do prodaje
- Oglas je prikazan
- 705 -krat
Dux nekretnine
Vsi oglasi te trgovine
Uporabnik je telefonsko številko preveril v državi Hrvaška
- Naslov: Tizianova 8, 51000 Rijeka, Hrvaška, Hrvaška
- URL: https://www.dux-nekretnine.hr/
-



















