Zemljišče Buzet, 16.943m2
- Cena
- 760.000 €
-
Želite na boljše? Preverite stanovanjski kredit OTP banke.OglasOglaševalec OTP banka d.d.
Zakaj vidim ta oglas?
Uporaba omejenih podatkov za izbiro oglasov: oglasi, ki se vam prikazujejo v tej storitvi, lahko temeljijo na omejenih podatkih, kot so spletna stran ali aplikacija, ki jo trenutno uporabljate, vaša približna lokacija, vrsta naprave ali vsebine, s katerimi ste bili v interakciji (npr. za omejevanje pogostosti prikazovanja oglasov).
Šifra oglasa: 13747717
-
- Površina
- 16.943,00 m²
-
- Vrsta posesti
- Zazidljiva
Osnovne informacije
- Vrsta ponudbe
- Prodam
- Lokacija
- Izven Slovenije - Hrvaška, Istrska, Buzet
- Vrsta posesti
- Zazidljiva
- Površina
- 16.943,00 m²
- Vrsta cene
- Skupna cena
- Interna številka oglasa
- IS1509964
Opis oglasa
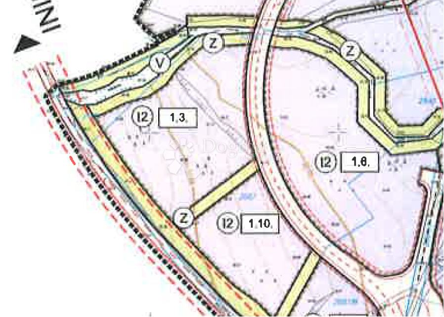
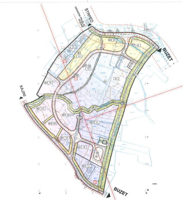
BUZET Naprodaj je veliko zazidljivo zemljišče za komercialne namene, s skupno površino 16.943 m2. Zemljišče ima dostop z asfaltne ceste in je na odlični legi za gradnjo poslovne stavbe. Nahaja se znotraj območja z oznako G - poslovne stavbe pretežno za obrtne namene I2 ali industrijsko proizvodne namene ter ustrezne podporne in poslovne namene, znotraj platojev z oznakami 1.3, 1.6 in 1.10, del njegove površine pa se nahaja na območju infrastrukturnih objektov - zbirne ceste S1. Na območjih z oznako G, platojih z oznakami 1.3, 1.6 in 1.10, se lahko gradi samostojna stavba ali sklop stavb poslovnih stavb pretežno za obrtne namene I2 ali industrijsko proizvodne namene ter ustrezne podporne in poslovne namene. Koeficient razvitosti posamezne gradbene parcele je najmanj kig=0,1 in največ kig=0,4. Koeficient izkoriščenosti je najmanj kis=0,1 in največ 0,92. Najvišja dovoljena višina stavb je 9,0 m. Nadstreški so največje dovoljene višine 5,0 m. Največje dovoljeno število nadstropij stavbe je 2 nadstropji z možnostjo gradnje 3 nadstropij na napovedani 1/3 pozidane površine stavbe (projekcije tlorisa stavbe). * V coni že obratujeta dva industrijska objekta (platoja 1.1 in 1.2), na platoju 1.4 pa je v gradnji industrijski objekt (proizvodnja pohištva). * Glavna dostopna cesta od rotorja (obvoznice) do južne strani cone je v gradnji in bo končana 15.03.2024. * Infrastruktura (dostopne ceste, elektrika, vodovod in kanalizacija) je izvedena in se nahaja v neposredni bližini predmetnih parcel, kar minimizira čas in naložbe, potrebne za začetek dejavnosti na parceli. OPOMBA - platoji 1.3, 1.6 in 1.10 ne predstavljajo končne oblike parcel, prav tako ni obvezna vrisana cesta. To je le predlagani osnutek, ki se spreminja glede na dejanske potrebe uporabnikov cone.
ID KOD AGENCIJE: IS1509964
Igor Ostojić
Asistent u posredovanju
Mob: 091/732-5577
Tel: 052 645 444
E-mail: igor.ostojic@dogma-nekretnine.com
www.dogma-istra.com
ID KOD AGENCIJE: IS1509964
Igor Ostojić
Asistent u posredovanju
Mob: 091/732-5577
Tel: 052 645 444
E-mail: igor.ostojic@dogma-nekretnine.com
www.dogma-istra.com
Spletna povezava
Zemljevid
Dogma nekretnine
Vsi oglasi te trgovine
Uporabnik je telefonsko številko preveril v državi Hrvaška
- Naslov: Hrvaška, Hrvaška
- E-pošta: info@dogma-nekretnine.com
-
- Oglas je objavljen
- 03.04.2026. ob 12:07
- Do poteka še
- do prodaje
- Oglas je prikazan
- 281 -krat
Dogma nekretnine
Vsi oglasi te trgovine
Uporabnik je telefonsko številko preveril v državi Hrvaška
- Naslov: Hrvaška, Hrvaška
- E-pošta: info@dogma-nekretnine.com
-






