-
- Površina
- 809,00 m²
-
- Vrsta posesti
- Zazidljiva
Osnovne informacije
- Vrsta ponudbe
- Prodam
- Lokacija
- Izven Slovenije - Hrvaška, Primorsko-goranska, Kostrena
- Vrsta posesti
- Zazidljiva
- Površina
- 809,00 m²
- Vrsta cene
- Skupna cena
- Interna številka oglasa
- 538
Opis oglasa
Prodamo gradbeno zemljišče z gradbenim dovoljenjem na atraktivni lokaciji v Kostreni.
Zemljišče ima 809 m2.
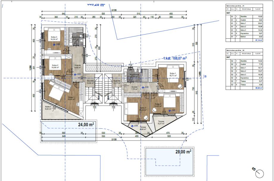
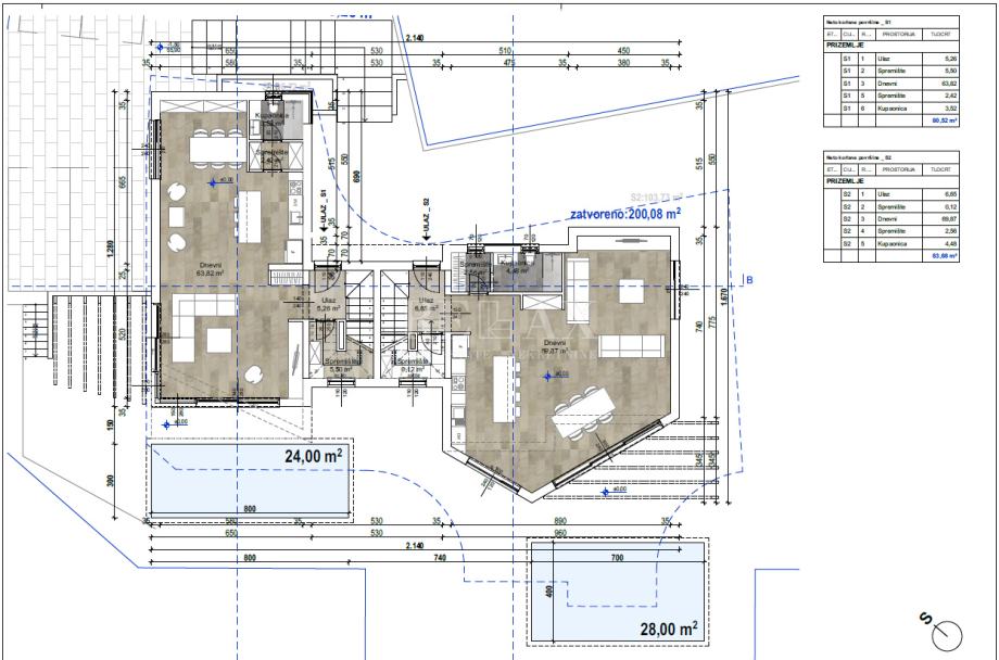
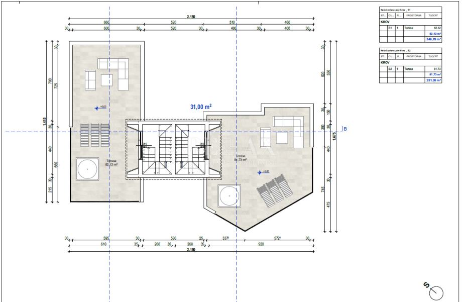
Za projekt je bilo izdano gradbeno dovoljenje, po katerem je bila predvidena gradnja dvojčka, vsaka hiša je bila predvidena kot eno stanovanje.
Vizualizacija in tlorisi prikazani na slikah.
Vsaka hiša ima pogled na morje.
Podrobnosti iz projekta za gradbeno dovoljenje:
- zazidana površina je tlorisno 202 m2
- dve etaži (pritličje + nadstropje)
- višina 7,80 m do zgornjega roba stropne konstrukcije zadnje etaže
- ozelenjeno 324/809 m2 = 40% parcele
Teren je oddaljen le 600 m peš po ravni poti do čudovite promenade in morja.
ID KOD AGENCIJE: 538
Filip Blažević, prof.
Agent s licencom
Mob: +385 99 883 3132
Tel: +385 51 333 888
E-mail: f.blazevic@relax-nekretnine.com
https://relax-nekretnine.com/
Zemljišče ima 809 m2.
Za projekt je bilo izdano gradbeno dovoljenje, po katerem je bila predvidena gradnja dvojčka, vsaka hiša je bila predvidena kot eno stanovanje.
Vizualizacija in tlorisi prikazani na slikah.
Vsaka hiša ima pogled na morje.
Podrobnosti iz projekta za gradbeno dovoljenje:
- zazidana površina je tlorisno 202 m2
- dve etaži (pritličje + nadstropje)
- višina 7,80 m do zgornjega roba stropne konstrukcije zadnje etaže
- ozelenjeno 324/809 m2 = 40% parcele
Teren je oddaljen le 600 m peš po ravni poti do čudovite promenade in morja.
ID KOD AGENCIJE: 538
Filip Blažević, prof.
Agent s licencom
Mob: +385 99 883 3132
Tel: +385 51 333 888
E-mail: f.blazevic@relax-nekretnine.com
https://relax-nekretnine.com/
Spletna povezava
Zemljevid
Dodatne informacije
Komunalni priključki
RELAX Nekretnine
Vsi oglasi te trgovine
Uporabnik je telefonsko številko preveril v državi Hrvaška
- Naslov: Kralja Tomislava 88, 51260 Crikvenica, Hrvaška, Hrvaška
- URL: http://relax-nekretnine.com
-
- Oglas je objavljen
- 21.11.2025. ob 12:09
- Do poteka še
- do prodaje
- Oglas je prikazan
- 685 -krat
RELAX Nekretnine
Vsi oglasi te trgovine
Uporabnik je telefonsko številko preveril v državi Hrvaška
- Naslov: Kralja Tomislava 88, 51260 Crikvenica, Hrvaška, Hrvaška
- URL: http://relax-nekretnine.com
-

















