Bled (prodaja)
- Cena
- 872.000 €
-
Želite na boljše? Preverite stanovanjski kredit OTP banke.OglasOglaševalec OTP banka d.d.
Zakaj vidim ta oglas?
Uporaba omejenih podatkov za izbiro oglasov: oglasi, ki se vam prikazujejo v tej storitvi, lahko temeljijo na omejenih podatkih, kot so spletna stran ali aplikacija, ki jo trenutno uporabljate, vaša približna lokacija, vrsta naprave ali vsebine, s katerimi ste bili v interakciji (npr. za omejevanje pogostosti prikazovanja oglasov).
Šifra oglasa: 15251200
-
- Bivalna površina
- 153,00 m²
-
- Vrsta stanovanja
- 1-sobno
-
- Leto izgradnje
- 2012
Osnovne informacije
- Vrsta ponudbe
- Prodam
- Lokacija
- Gorenjska, Bled, Bled
- Vrsta stanovanja
- 1-sobno
- Bivalna površina
- 153,00 m²
- Leto izgradnje
- 2012
- Leto zadnje prenove
- 2024
- Vrsta cene
- Skupna cena
- Interna številka oglasa
- 101258-098
Opis oglasa
Prodaja nadstandardnega stanovanja s čudovitim razgledom na Blejsko jezero!
Na izjemni lokaciji s čudovitim razgledom na Blejsko jezero se nahaja nadstandardno 4-sobno stanovanje v skupni izmeri 153 m2, razporejen v štirih etažah, s funkcionalnim zemljiščem velikosti 62 m2 in dvema parkirnima mestoma.
Stanovanje je del stanovanjsko-turističnega objekta s tremi enotami, ki so vertikalno razporejene. Glavni vhod v objekt je skupen z ostalima dvema enotama in se nahaja v drugi etaži na zadnji strani stavbe.
V prvi etaži vas pričakuje studio z zakonsko posteljo, ki vključuje sobo z infrardečo savno, moderno kopalnico z veliko tuš kabino, WC-jem in pralnim strojem, utility ter prostorno teraso.
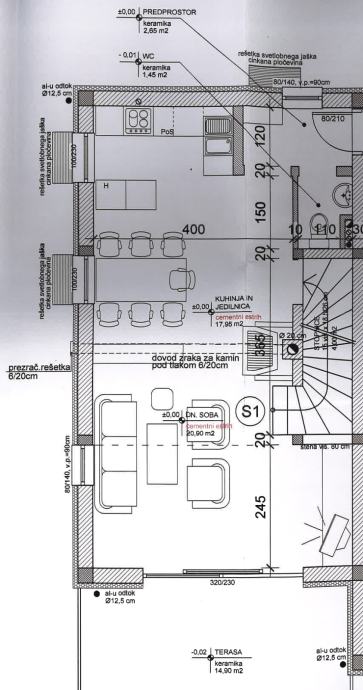
Druga etaža je zasnovana kot velik odprt prostor, ki povezuje kuhinjo, jedilnico in dnevno sobo. Iz dnevne sobe je dostop do terase s prekrasnim razgledom na Blejsko jezero. Kuhinja je popolnoma opremljena z vsemi sodobnimi aparati in velikim kuhinjskim otokom, od koder je dostop do stranske terase. V tej etaži se nahajata tudi ločen WC in vhodni prostor.
V tretji etaži se nahajata dvoposteljna soba in prostorna, svetla spalnica, obe z balkonom. Nad spalnico se v četrti etaži nahaja galerija, ki ponuja prostor za dve ležišči s francoskim balkonom. Tretja etaža obsega tudi kopalnico z WC-jem in hodnik. K stanovanju pripadata tudi skupni hodnik in skupni tehnični prostor.
Odlična razporeditev omogoča enostavno delitev na dve ločeni enoti.
Nepremičnina je opremljena s toplovodnim talnim gretjem na plin. Klimatizirana je s klimatskimi napravami v spalnici, galeriji, dvoposteljni sobi in dnevni sobi, kjer je tudi možnost namestitve kamina. Klimatske naprave zagotavljajo tako hlajenje kot ogrevanje. Okna so lesena, dvoslojna in opremljena z zunanjimi električnimi žaluzijami, medtem ko so strešna okna opremljena z notranjimi pliseji. Vhodna vrata so masivna in protivlomna. Talne obloge so parket in keramične ploščice v kopalnici, WC-ju in vhodnem prostoru.
Stanovanje se prodaja v celoti opremljeno z nadstandardno opremo, kot je razvidno iz priloženih fotografij. Oprema je nova in skrbno izbrana, razen kuhinje in kuhinjskih aparatov, ki so ohranjeni v odličnem stanju. Obe kopalnici in ločen WC so bili letos popolnoma prenovljeni, obnovljen pa je bil tudi parket.
Parkiranje je na voljo pred objektom, kjer ima vsaka enota zagotovljeni dve parkirni mesti.
Stanovanje se trenutno uspešno oddaja za kratkoročne turistične namene, dosega visoko oceno in je kategoriziran s štirimi zvezdicami, kar predstavlja izvrstno investicijsko priložnost. Na voljo je tudi ustaljena storitev celovitega upravljanja, kar olajša postopek oddaje.
Zavidanja vredna lokacija nudi neposredno bližino Blejskega jezera, oddaljenega le 10 minut hoje oziroma 340 metrov zračne razdalje. Blejski grad, center Bleda in kopališča kot so Grajska plaža, Velika Zaka, Mala Zaka, so dostopni s prijetnim sprehodom okoli jezera. Lokacija omogoča hiter dostop do avtocestnega priključka.
Prodajalec kot pogoj za sklenitev kupoprodajne pogodbe izpostavlja, da mora kupec prodajalcu povrniti del stroškov prodaje nepremičnine v višini 2% (+DDV) od pogodbene cene.
Ne zamudite te edinstvene priložnosti za investicijski nakup nepremičnine na eni najboljših lokacij na Bledu.
Lepo vabljeni na ogled!
Na izjemni lokaciji s čudovitim razgledom na Blejsko jezero se nahaja nadstandardno 4-sobno stanovanje v skupni izmeri 153 m2, razporejen v štirih etažah, s funkcionalnim zemljiščem velikosti 62 m2 in dvema parkirnima mestoma.
Stanovanje je del stanovanjsko-turističnega objekta s tremi enotami, ki so vertikalno razporejene. Glavni vhod v objekt je skupen z ostalima dvema enotama in se nahaja v drugi etaži na zadnji strani stavbe.
V prvi etaži vas pričakuje studio z zakonsko posteljo, ki vključuje sobo z infrardečo savno, moderno kopalnico z veliko tuš kabino, WC-jem in pralnim strojem, utility ter prostorno teraso.
Druga etaža je zasnovana kot velik odprt prostor, ki povezuje kuhinjo, jedilnico in dnevno sobo. Iz dnevne sobe je dostop do terase s prekrasnim razgledom na Blejsko jezero. Kuhinja je popolnoma opremljena z vsemi sodobnimi aparati in velikim kuhinjskim otokom, od koder je dostop do stranske terase. V tej etaži se nahajata tudi ločen WC in vhodni prostor.
V tretji etaži se nahajata dvoposteljna soba in prostorna, svetla spalnica, obe z balkonom. Nad spalnico se v četrti etaži nahaja galerija, ki ponuja prostor za dve ležišči s francoskim balkonom. Tretja etaža obsega tudi kopalnico z WC-jem in hodnik. K stanovanju pripadata tudi skupni hodnik in skupni tehnični prostor.
Odlična razporeditev omogoča enostavno delitev na dve ločeni enoti.
Nepremičnina je opremljena s toplovodnim talnim gretjem na plin. Klimatizirana je s klimatskimi napravami v spalnici, galeriji, dvoposteljni sobi in dnevni sobi, kjer je tudi možnost namestitve kamina. Klimatske naprave zagotavljajo tako hlajenje kot ogrevanje. Okna so lesena, dvoslojna in opremljena z zunanjimi električnimi žaluzijami, medtem ko so strešna okna opremljena z notranjimi pliseji. Vhodna vrata so masivna in protivlomna. Talne obloge so parket in keramične ploščice v kopalnici, WC-ju in vhodnem prostoru.
Stanovanje se prodaja v celoti opremljeno z nadstandardno opremo, kot je razvidno iz priloženih fotografij. Oprema je nova in skrbno izbrana, razen kuhinje in kuhinjskih aparatov, ki so ohranjeni v odličnem stanju. Obe kopalnici in ločen WC so bili letos popolnoma prenovljeni, obnovljen pa je bil tudi parket.
Parkiranje je na voljo pred objektom, kjer ima vsaka enota zagotovljeni dve parkirni mesti.
Stanovanje se trenutno uspešno oddaja za kratkoročne turistične namene, dosega visoko oceno in je kategoriziran s štirimi zvezdicami, kar predstavlja izvrstno investicijsko priložnost. Na voljo je tudi ustaljena storitev celovitega upravljanja, kar olajša postopek oddaje.
Zavidanja vredna lokacija nudi neposredno bližino Blejskega jezera, oddaljenega le 10 minut hoje oziroma 340 metrov zračne razdalje. Blejski grad, center Bleda in kopališča kot so Grajska plaža, Velika Zaka, Mala Zaka, so dostopni s prijetnim sprehodom okoli jezera. Lokacija omogoča hiter dostop do avtocestnega priključka.
Prodajalec kot pogoj za sklenitev kupoprodajne pogodbe izpostavlja, da mora kupec prodajalcu povrniti del stroškov prodaje nepremičnine v višini 2% (+DDV) od pogodbene cene.
Ne zamudite te edinstvene priložnosti za investicijski nakup nepremičnine na eni najboljših lokacij na Bledu.
Lepo vabljeni na ogled!
Zemljevid
Dodatne informacije
Stanje objekta
Kopalnica
CENTURY 21 Slovenija
Vsi oglasi te trgovine
Uporabnik je telefonsko številko preveril v državi Slovenija
- Naslov: Cesta 24. junija 25, 1231 LJUBLJANA-ČRNUČE, Osrednjeslovenska, Slovenija
- URL: https://c21.si/
-
- Oglas je objavljen
- 05.12.2025. ob 15:52
- Do poteka še
- do prodaje
- Oglas je prikazan
- 165 -krat
CENTURY 21 Slovenija
Vsi oglasi te trgovine
Uporabnik je telefonsko številko preveril v državi Slovenija
- Naslov: Cesta 24. junija 25, 1231 LJUBLJANA-ČRNUČE, Osrednjeslovenska, Slovenija
- URL: https://c21.si/
-



















