Ta oglas ni aktiven.
Prebrskaj podobne oglase.
-
- Vrsta stanovanja
- 2-sobno
-
- Leto izgradnje
- 1987
Osnovne informacije
- Vrsta ponudbe
- Prodam
- Lokacija
- Obalno-kraška, Koper, Koper
- Skupno število nadstropij v stavbi
- 1
- Vrsta stanovanja
- 2-sobno
- Leto izgradnje
- 1987
- Število parkirnih mest
- 2
- Energetski razred
- C (35 - 60 kWh/m2a)
- Vrsta cene
- Skupna cena
- Interna številka oglasa
- 490111019-149
Opis oglasa
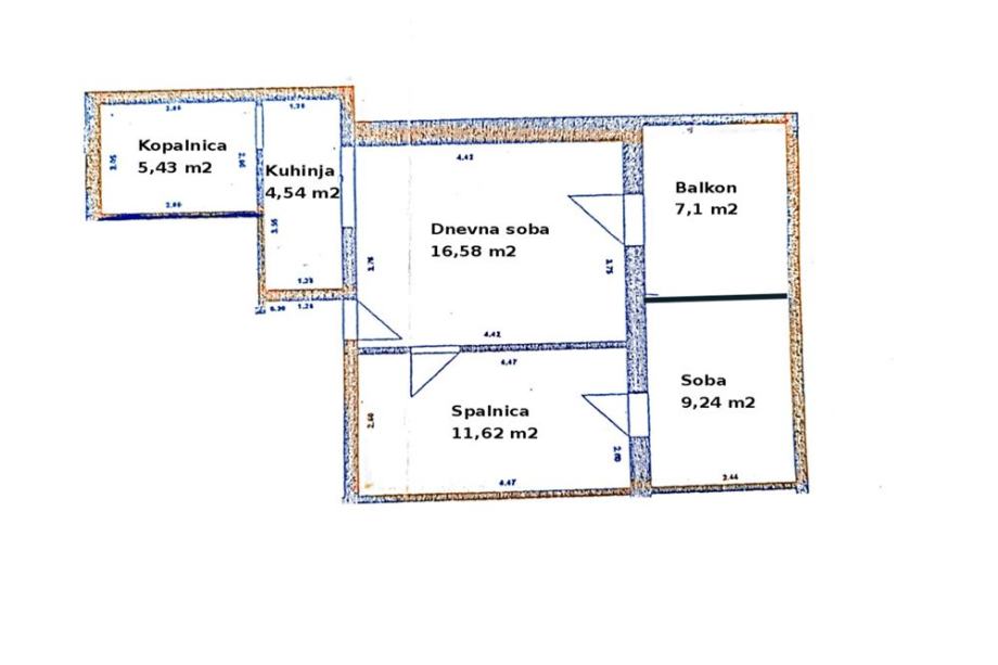
Posredujemo pri prodaji 2,5-sobnega stanovanja na Šmarski cesti v Kopru (Šalara), ki se nahaja v 1. nadstropju večstanovanjske zgradbe, zgrajene leta 1987. Stanovanje je v izmeri 54,5 m2, od tega 7,1 m2 balkona.
PROSTORSKA RAZPOREDITEV:
Dnevna soba, spalnica, soba, kuhinja z jedilnim pultom, kopalnica/WC ter balkon.
OGREVANJE:
Ogrevanje in hlajenje je urejeno z dvema klimatskima napravama.
LEGA:
Stanovanje se nahaja v 1 (prvem) nadstropju večstanovanjske zgradbe in ima pogled v smeri Severa.
PARKIRANJE:
Parkiranje je pred samo zgradbo, kjer vsakemu stanovanju pripadata dve lastniški parkirni mesti.
V BLIŽINI SE NAHAJA:
• lekarna
• avtobusno postajališče
• pošta
• trgovina z živili
• dostop do avtoceste
PROSTORSKA RAZPOREDITEV:
Dnevna soba, spalnica, soba, kuhinja z jedilnim pultom, kopalnica/WC ter balkon.
OGREVANJE:
Ogrevanje in hlajenje je urejeno z dvema klimatskima napravama.
LEGA:
Stanovanje se nahaja v 1 (prvem) nadstropju večstanovanjske zgradbe in ima pogled v smeri Severa.
PARKIRANJE:
Parkiranje je pred samo zgradbo, kjer vsakemu stanovanju pripadata dve lastniški parkirni mesti.
V BLIŽINI SE NAHAJA:
• lekarna
• avtobusno postajališče
• pošta
• trgovina z živili
• dostop do avtoceste
Spletna povezava
Zemljevid
Dodatne informacije
Ogrevanje
Podatki o objektu
Okolica
Funkcionalnost in lastnosti
Lega stanovanja
Kopalnica
- Oglas je objavljen
- 23.07.2024. ob 13:06
- Do poteka še
- oglas je potekel
- Oglas je prikazan
- 5330 -krat











