Lokacija stanovanja: Avstrija, Bad Radkersburg; 55.00 m2 (prodaja)
- Cena
- 132.000 €
Šifra oglasa: 15304362
-
- Bivalna površina
- 55,00 m²
-
- Vrsta stanovanja
- 2-sobno
-
- Leto izgradnje
- 1968
Osnovne informacije
- Vrsta ponudbe
- Prodam
- Lokacija
- Avstrija
- Umeščenost stanovanja
- V večstanovanjski stavbi
- Nadstropje
- 1.
- Skupno število nadstropij v stavbi
- 4
- Vrsta stanovanja
- 2-sobno
- Bivalna površina
- 55,00 m²
- Neto površina
- 66,00 m²
- Leto izgradnje
- 1968
- Opremljenost in stanje
- Neopremljeno
- Število parkirnih mest
- brez pripadajočega parkirišča
- Balkon / terasa / atrij
- Balkon
- Energetski razred
- C (35 - 60 kWh/m2a)
- Vrsta cene
- Skupna cena
Opis oglasa
PRENOVLJENO 60 m² 2-SOBNO LASTNIŠKO STANOVANJE Z BALKONOM V BAD RADKERSBURGU
Prva vselitev po prenovi | Balkon | Takoj na voljo | Idealno za lastnike in investitorje
Sodobno bivanje ali trajnostna naložba:
Naprodaj je kakovostno in celovito prenovljeno 2-sobno lastniško stanovanje na mirni in iskani stanovanjski lokaciji v Bad Radkersburgu (Kodolitschhof). Stanovanje se predstavlja v stanju novogradnje, navdušuje z jasno razporejenim tlorisom ter svetlimi, dobro proporcionalnimi prostori in je takoj vseljivo oziroma primerno za oddajo.
________________________________________
Osnovni podatki
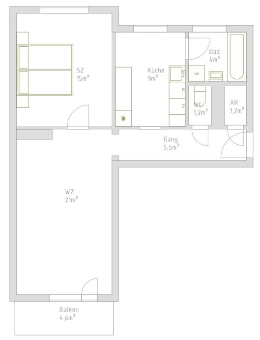
• Bivalna površina: približno 60 m²
o Predprostor: približno 5,5 m²
o Shramba: približno 1,2 m²
o WC: približno 1,2 m²
o Kuhinja: približno 9 m²
o Kopalnica: približno 4 m²
o Dnevna soba: približno 21 m²
o Spalnica: približno 15 m²
• Balkon: približno 4,6 m², zahodna orientacija
• Kletna shramba: približno 6 m² (ni vključena v bivalno površino)
• Nadstropje: 1. nadstropje (brez dvigala)
• Leto gradnje: 1968
• Stanje: prva vselitev po celoviti prenovi
• Ogrevanje: daljinsko ogrevanje – biotoplota Bad Radkersburg (radiatorji)
• Energetska izkaznica: razred C – 57,7 kWh/m²a
________________________________________
Oprema in izvedba
• Nova, sodobna kopalnica s kadjo
• Sodobne talne obloge (ploščice in kakovosten laminat)
• Energetsko učinkovito ogrevanje preko daljinskega sistema
• Celotno stanovanje v neokrnjenem, novem stanju – brez potrebe po dodatnih vlaganjih
Stanovanje je neopremljeno, razen kopalnice.
Vsi priključki za kuhinjo so na novo pripravljeni. Možna razporeditev kuhinje je razvidna s fotografij. Po želji je možno proti doplačilu vgraditi kuhinjo.
________________________________________
Vaše prednosti
• Brez investicij – takoj vseljivo ali primerno za oddajo
• Svetli prostori s prijetnim bivalnim ambientom
• Balkon kot zasebna zunanja površina
• Prilagodljiva zasnova kuhinje po lastnem okusu
• Praktična kletna shramba za dodaten prostor
• Javna parkirna mesta neposredno pred objektom
• Zelo dobra možnost oddajanja (stalni ali turistični najem)
________________________________________
Lokacija – mirna, centralna in vrednostno stabilna
Bad Radkersburg sodi med najbolj priljubljena termalna in zdraviliška mesta na Štajerskem. Stanovanje se nahaja na mirni, a hkrati centralni lokaciji. Trgovine, gostinska ponudba, zdravstvene in prostočasne dejavnosti so lahko dostopne peš ali v neposredni bližini.
• Parktherme Bad Radkersburg: približno 1,5 km
• Glavni trg: približno 5 minut hoje
• Trgovine (Hofer, Billa, Lidl itd.): približno 800 m
• Državna meja s Slovenijo (Gornja Radgona): približno 800 m
Stanovanjski objekt je urejen in ga profesionalno upravlja ÖWG.
________________________________________
Stroški in obratovanje
• Obratovalni stroški: trenutno približno EUR 233,– mesečno
(vključujejo sorazmerni del stroškov ogrevanja; odvisno od porabe)
• Stroški elektrike niso vključeni
• Podroben pregled obratovalnih stroškov je na voljo (glej fotografije)
________________________________________
Povzetek
Sodobno, takoj uporabno lastniško stanovanje brez investicij v uveljavljeni stanovanjski in turistični regiji. Redka kombinacija lokacije, stanja in prilagodljivosti – izjemno privlačna tako za lastnike kot za investitorje.
Ogledi po dogovoru – veselim se vašega povpraševanja.
Prva vselitev po prenovi | Balkon | Takoj na voljo | Idealno za lastnike in investitorje
Sodobno bivanje ali trajnostna naložba:
Naprodaj je kakovostno in celovito prenovljeno 2-sobno lastniško stanovanje na mirni in iskani stanovanjski lokaciji v Bad Radkersburgu (Kodolitschhof). Stanovanje se predstavlja v stanju novogradnje, navdušuje z jasno razporejenim tlorisom ter svetlimi, dobro proporcionalnimi prostori in je takoj vseljivo oziroma primerno za oddajo.
________________________________________
Osnovni podatki
• Bivalna površina: približno 60 m²
o Predprostor: približno 5,5 m²
o Shramba: približno 1,2 m²
o WC: približno 1,2 m²
o Kuhinja: približno 9 m²
o Kopalnica: približno 4 m²
o Dnevna soba: približno 21 m²
o Spalnica: približno 15 m²
• Balkon: približno 4,6 m², zahodna orientacija
• Kletna shramba: približno 6 m² (ni vključena v bivalno površino)
• Nadstropje: 1. nadstropje (brez dvigala)
• Leto gradnje: 1968
• Stanje: prva vselitev po celoviti prenovi
• Ogrevanje: daljinsko ogrevanje – biotoplota Bad Radkersburg (radiatorji)
• Energetska izkaznica: razred C – 57,7 kWh/m²a
________________________________________
Oprema in izvedba
• Nova, sodobna kopalnica s kadjo
• Sodobne talne obloge (ploščice in kakovosten laminat)
• Energetsko učinkovito ogrevanje preko daljinskega sistema
• Celotno stanovanje v neokrnjenem, novem stanju – brez potrebe po dodatnih vlaganjih
Stanovanje je neopremljeno, razen kopalnice.
Vsi priključki za kuhinjo so na novo pripravljeni. Možna razporeditev kuhinje je razvidna s fotografij. Po želji je možno proti doplačilu vgraditi kuhinjo.
________________________________________
Vaše prednosti
• Brez investicij – takoj vseljivo ali primerno za oddajo
• Svetli prostori s prijetnim bivalnim ambientom
• Balkon kot zasebna zunanja površina
• Prilagodljiva zasnova kuhinje po lastnem okusu
• Praktična kletna shramba za dodaten prostor
• Javna parkirna mesta neposredno pred objektom
• Zelo dobra možnost oddajanja (stalni ali turistični najem)
________________________________________
Lokacija – mirna, centralna in vrednostno stabilna
Bad Radkersburg sodi med najbolj priljubljena termalna in zdraviliška mesta na Štajerskem. Stanovanje se nahaja na mirni, a hkrati centralni lokaciji. Trgovine, gostinska ponudba, zdravstvene in prostočasne dejavnosti so lahko dostopne peš ali v neposredni bližini.
• Parktherme Bad Radkersburg: približno 1,5 km
• Glavni trg: približno 5 minut hoje
• Trgovine (Hofer, Billa, Lidl itd.): približno 800 m
• Državna meja s Slovenijo (Gornja Radgona): približno 800 m
Stanovanjski objekt je urejen in ga profesionalno upravlja ÖWG.
________________________________________
Stroški in obratovanje
• Obratovalni stroški: trenutno približno EUR 233,– mesečno
(vključujejo sorazmerni del stroškov ogrevanja; odvisno od porabe)
• Stroški elektrike niso vključeni
• Podroben pregled obratovalnih stroškov je na voljo (glej fotografije)
________________________________________
Povzetek
Sodobno, takoj uporabno lastniško stanovanje brez investicij v uveljavljeni stanovanjski in turistični regiji. Redka kombinacija lokacije, stanja in prilagodljivosti – izjemno privlačna tako za lastnike kot za investitorje.
Ogledi po dogovoru – veselim se vašega povpraševanja.
Zemljevid
Dodatne informacije
Ogrevanje
Stanje objekta
Podatki o objektu
Okolica
Dovoljenja
Možnosti parkiranja
Funkcionalnost in lastnosti
Lega stanovanja
Kopalnica
mcm5e60
Vsi oglasi tega oglaševalca
Uporabnik je telefonsko številko preveril v državi Slovenija
Uporabnik ni trgovec in zanj ne veljajo določbe EU o varstvu potrošnikov.
- Naslov: 2231 Pernica, Podravska, Slovenija
-
- Oglas je objavljen
- 20.12.2025. ob 16:06
- Do poteka še
- Oglas je prikazan
- 76 -krat
mcm5e60
Vsi oglasi tega oglaševalca
Uporabnik je telefonsko številko preveril v državi Slovenija
Uporabnik ni trgovec in zanj ne veljajo določbe EU o varstvu potrošnikov.
- Naslov: 2231 Pernica, Podravska, Slovenija
-



















