Lokacija stanovanja: Lenart v Slovenskih goricah, 100.80 m2 (prodaja)
- Cena
- 248.000 €
-
Želite na boljše? Preverite stanovanjski kredit OTP banke.OglasOglaševalec OTP banka d.d.
Zakaj vidim ta oglas?
Uporaba omejenih podatkov za izbiro oglasov: oglasi, ki se vam prikazujejo v tej storitvi, lahko temeljijo na omejenih podatkih, kot so spletna stran ali aplikacija, ki jo trenutno uporabljate, vaša približna lokacija, vrsta naprave ali vsebine, s katerimi ste bili v interakciji (npr. za omejevanje pogostosti prikazovanja oglasov).
Šifra oglasa: 13381192
-
- Bivalna površina
- 100,80 m²
-
- Vrsta stanovanja
- 4-sobno
-
- Leto izgradnje
- 1960
Osnovne informacije
- Vrsta ponudbe
- Prodam
- Lokacija
- Podravska, Lenart v Slovenskih goricah, Lenart v Slovenskih goricah
- Umeščenost stanovanja
- V večstanovanjski stavbi
- Nadstropje
- Pritličje
- Skupno število nadstropij v stavbi
- 1
- Vrsta stanovanja
- 4-sobno
- Bivalna površina
- 100,80 m²
- Neto površina
- 95,40 m²
- Leto izgradnje
- 1960
- Leto zadnje prenove
- 2024
- Opremljenost in stanje
- Neopremljeno
- Balkon / terasa / atrij
- Balkon
- Vrsta cene
- Skupna cena
- Interna številka oglasa
- PS473MŠ
Opis oglasa
Lenart v Slov. Goricah, center, VILA PEKARNA: oaza udobja, miru in varnosti
Opis lokacije in objekta
Na izjemni lokaciji v centru mesta, kjer si preteklost in sedanjost podajata roko, smo za vas skrbno in kvalitetno popolnoma obnovili ter dogradili meščansko hišo z atraktivno infrastrukturo.
Vila Pekarna se nahaja dobesedno na dosegu vsega potrebnega za kvalitetno življenje: šola, vrtec, zdravstveni dom, UE, trgovine itd. Bližina narave in odličnih rekreacijskih površin, igrišča, tekaških, pohodniških in kolesarskih poti, zeleno okolje s prelepimi jezeri omogočajo čudovito sprostitev. Lokacija omogoča hiter dostop do Maribora (cca 15 min vožnje z avtomobilom) in nekaj več do Murske Sobote.
Enonadstropna vila je namenjena udobnemu in varnemu bivanju stanovalcev ter je opremljena je z dvigalom. V njej je 5 stanovanj z vgrajenimi kvalitetnimi naravnimi materiali, visokimi stropi z meščanskim pridihom, terasami z lepim pogledom, svetlo vhodno avlo v kateri se nahaja predstavitev nekoč zelo uspešne dejavnosti pekarstva v Lenartu, na tej lokaciji.
Celoten kompleks vile je ograjen, osvetljen in varovan z video nadzorom. Vanj se vstopa z daljinskim odpiranjem, notranje dvorišče opremljeno s klopmi omogoča stanovalcem druženje in bivanje na prostem. Parkirišče je varno in urejeno, prav tako izhodi na ulico. Opremljeno je s polnilno postajo za električne avtomobile. Prav tako je stanovalcem na voljo skupna kolesarnica.
Večina stanovanj in infrastruktura omogočajo bivanje tudi invalidnim osebam.
Stanovanje je vseljivo, takoj!!!
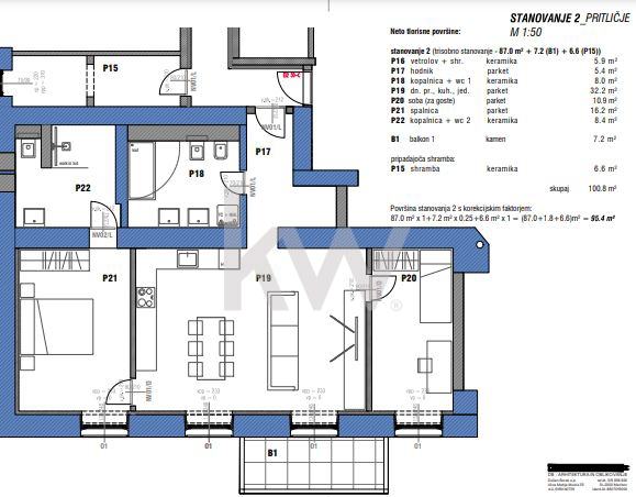
Stanovanje 2. Cena: 248.000,00 EUR. 100,80 m/2
Adaptacija in dozidava: 2024.
Priključki: elektrika, voda, kanalizacija, optika
Ogrevanje: talno ogrevanje, lastna toplotna črpalka
Lega: Z, pogled na staro mestno jedro
Energetska izkaznica: C
Opis stanovanja:
Udobno in svetlo 4 sobno stanovanje z balkonom se nahaja v pritličju vile in nudi pogled na staro mestno jedro. Vključuje hodnik, utiliy, predsobo, kopalnico 1 z banjo, wc, bide in dvema umivalnikoma, kuhinjo z dnevno-bivalnim prostorom, kabinet in spalnico z lastno kopalnico, v kateri je tuš kabina, wc in umivalnik. Stavbno pohištvo je izdelano po meri, okna so lesena, 3 slojni termopan z notranjimi senčili na el. pogon, tla so hrastov parket in kvalitetna keramika. Vhodna vrata so protipožarna in protivlomna. Stanovanje ima pripravljeno inštalacijo za klimatsko napravo, vgrajen je prezračevalni sistem i-Vent in domofon. Pripada mu tudi lastniška garaža, eno lastniško nepokrito parkirno mesto ter shramba.
Za več informacij in ogled stanovanja nas prosim kontaktirajte.
Pomagamo vam urediti financiranje ali vam nudimo pomoč pri prodaji vaše nepremičnine.
lep pozdrav, Marina.
Opis lokacije in objekta
Na izjemni lokaciji v centru mesta, kjer si preteklost in sedanjost podajata roko, smo za vas skrbno in kvalitetno popolnoma obnovili ter dogradili meščansko hišo z atraktivno infrastrukturo.
Vila Pekarna se nahaja dobesedno na dosegu vsega potrebnega za kvalitetno življenje: šola, vrtec, zdravstveni dom, UE, trgovine itd. Bližina narave in odličnih rekreacijskih površin, igrišča, tekaških, pohodniških in kolesarskih poti, zeleno okolje s prelepimi jezeri omogočajo čudovito sprostitev. Lokacija omogoča hiter dostop do Maribora (cca 15 min vožnje z avtomobilom) in nekaj več do Murske Sobote.
Enonadstropna vila je namenjena udobnemu in varnemu bivanju stanovalcev ter je opremljena je z dvigalom. V njej je 5 stanovanj z vgrajenimi kvalitetnimi naravnimi materiali, visokimi stropi z meščanskim pridihom, terasami z lepim pogledom, svetlo vhodno avlo v kateri se nahaja predstavitev nekoč zelo uspešne dejavnosti pekarstva v Lenartu, na tej lokaciji.
Celoten kompleks vile je ograjen, osvetljen in varovan z video nadzorom. Vanj se vstopa z daljinskim odpiranjem, notranje dvorišče opremljeno s klopmi omogoča stanovalcem druženje in bivanje na prostem. Parkirišče je varno in urejeno, prav tako izhodi na ulico. Opremljeno je s polnilno postajo za električne avtomobile. Prav tako je stanovalcem na voljo skupna kolesarnica.
Večina stanovanj in infrastruktura omogočajo bivanje tudi invalidnim osebam.
Stanovanje je vseljivo, takoj!!!
Stanovanje 2. Cena: 248.000,00 EUR. 100,80 m/2
Adaptacija in dozidava: 2024.
Priključki: elektrika, voda, kanalizacija, optika
Ogrevanje: talno ogrevanje, lastna toplotna črpalka
Lega: Z, pogled na staro mestno jedro
Energetska izkaznica: C
Opis stanovanja:
Udobno in svetlo 4 sobno stanovanje z balkonom se nahaja v pritličju vile in nudi pogled na staro mestno jedro. Vključuje hodnik, utiliy, predsobo, kopalnico 1 z banjo, wc, bide in dvema umivalnikoma, kuhinjo z dnevno-bivalnim prostorom, kabinet in spalnico z lastno kopalnico, v kateri je tuš kabina, wc in umivalnik. Stavbno pohištvo je izdelano po meri, okna so lesena, 3 slojni termopan z notranjimi senčili na el. pogon, tla so hrastov parket in kvalitetna keramika. Vhodna vrata so protipožarna in protivlomna. Stanovanje ima pripravljeno inštalacijo za klimatsko napravo, vgrajen je prezračevalni sistem i-Vent in domofon. Pripada mu tudi lastniška garaža, eno lastniško nepokrito parkirno mesto ter shramba.
Za več informacij in ogled stanovanja nas prosim kontaktirajte.
Pomagamo vam urediti financiranje ali vam nudimo pomoč pri prodaji vaše nepremičnine.
lep pozdrav, Marina.
Spletna povezava
Zemljevid
Dodatne informacije
Ogrevanje
Stanje objekta
Podatki o objektu
Okolica
Dovoljenja
Možnosti parkiranja
Funkcionalnost in lastnosti
Lega stanovanja
Kopalnica
KW Slovenia
Vsi oglasi te trgovine
Uporabnik je telefonsko številko preveril v državi Slovenija
- Naslov: Partizanska cesta 26, 2000 Maribor, Podravska, Slovenija
- URL: https://www.kwslovenia.com/
- E-pošta: omnis@kwslovenia.com
-
- Oglas je objavljen
- 30.10.2024. ob 15:49
- Do poteka še
- do prodaje
- Oglas je prikazan
- 1514 -krat
KW Slovenia
Vsi oglasi te trgovine
Uporabnik je telefonsko številko preveril v državi Slovenija
- Naslov: Partizanska cesta 26, 2000 Maribor, Podravska, Slovenija
- URL: https://www.kwslovenia.com/
- E-pošta: omnis@kwslovenia.com
-
















