Ta oglas ni aktiven.
Prebrskaj podobne oglase.
-
- Vrsta stanovanja
- 3-sobno
-
- Leto izgradnje
- 2025
Osnovne informacije
- Vrsta ponudbe
- Prodam
- Lokacija
- Podravska, Hoče, Rogoza
- Nadstropje
- 1.
- Vrsta stanovanja
- 3-sobno
- Neto površina
- 72,20 m²
- Leto izgradnje
- 2025
- Vrsta cene
- Skupna cena
- Interna številka oglasa
- 100103-260
Opis oglasa
NOVOGRADNJA VILA BLOK ROGOZA
ŠE ZADNJA ENOTA NA VOLJO
PROJEKT VILA BLOK B ROGOZA, občina Hoče Slivnica Nastajata dva nova objekta , ki bosta dokončana jeseni 2025.
Lokacija: Rogoza ,1km od AC križa, prijetna lokacija, bližina trgovine, vrtca in športnih površin
Odlična priložnost za nakup zadnje stanovanjske nepremičnine.
Posebna akcija:
zadnji stanovanjski enoti pripadata dva zunanja parkirna mesta, brez doplačila!!!
VILA BLOK ROGOZA »B«
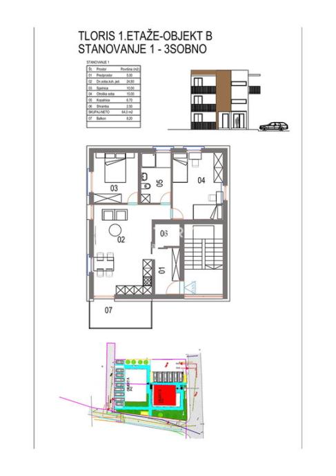
3-sobno stanovanje, locirano v 1.nadstropju bloka. Orientirano je na JV in JZ. Obsega 72,2m2 + 2 zunanja parkirna prostora, vsak velikosti 12m2. Tloris najdete med fotografijami.
CENA: 191.271 EUR
Tehnične značilnosti:
ETAŽNOST: P+2
1.nadstropje: 3 sobno stanovanje z balkonom
Klasična konstrukcija iz opečnih modularnih zidakov Porotherm 30 cm (obodne stene), notranje nosilne stene z zidaki 20 cm ter notranje suho montažne mavčne stene 12cm, dvojno zapiranje. Predelne stene bodo izdelane po projektu glede toplotne in zvočne izolacije
AB vezi nosilcev in plošč
Višina stropov 250 -260 cm
Streha ravne konstrukcije, izolacija 25-30cm, SIKA ( folija)
Fasada termoizolacijska v debelini 20cm, bela barva v kombinaciji s konjak barvo
Dvorišče asfaltirano + parkirna mesta, ki so pripadajoča stanovanjskim enotam
Delno zasajene zelene površine
Priključki: elektrika, voda, kanalizacija ,domofon
Model električnih stikal: TEM Čatež modul
Ogrevanje na električno energijo s toplotno čepalko- v celoti talno gretje
Toplotna črpalka: Grupe Atlantic, serija Loria R32, 3KW z visoko letno učinkovitostjo A +++
Pozicija notranje enote: industrijski kotiček, pozicija zunanje enote : na balkonu
Klima: Cooper&Hunter model Veritas 2, moč 3,5kw, zunanja enota na balkonu
Rekuperacija zraka bo urejena.
PVC okna 3 slojna; bela barva znotraj , zunaj antracit barva
Senčila na električni pomik, lamele-zunanje žaluzije antracit barve
Okenske police notranje in zunanje granitne izvedbe
Vsa notranja vrata s podboji bodo montirana
Zvonci, domofoni pri vhodu v objekt
Zunanja, vhodna vrata ALU, barve antracit
Balkonska ograja kovinska , laserski izrez z vzorci
Finalna obdelava:
VINIL in keramika
Kopalnica:keramika do stropa, kanaleta pri tušu, steklena stena pri tušu
WC: kotliček Geberit, školjka, pokrov
Stene: nevtralni beli opleski
Možni dogovori za individualno spremembo pred zaključkom finalne obdelave ( npr. druga keramika, parket..)
Za več informacij in ogled, me kontaktirajte!
Pravno obvestilo:Podatki in slikovni material na spletni predstavitvi so zgolj informativne narave in investitorja ne zavezujejo, oziroma jih lahko kadarkoli in brez opozorila spremeni. Kupec je dolžan pred nakupom stanovanja vse pomembne podatke skrbno preveriti.
Investitor ima pridobljeno pravnomočno gradbeno dovoljenje in sprejeti so Splošni pogoji prodaje
ŠE ZADNJA ENOTA NA VOLJO
PROJEKT VILA BLOK B ROGOZA, občina Hoče Slivnica Nastajata dva nova objekta , ki bosta dokončana jeseni 2025.
Lokacija: Rogoza ,1km od AC križa, prijetna lokacija, bližina trgovine, vrtca in športnih površin
Odlična priložnost za nakup zadnje stanovanjske nepremičnine.
Posebna akcija:
zadnji stanovanjski enoti pripadata dva zunanja parkirna mesta, brez doplačila!!!
VILA BLOK ROGOZA »B«
3-sobno stanovanje, locirano v 1.nadstropju bloka. Orientirano je na JV in JZ. Obsega 72,2m2 + 2 zunanja parkirna prostora, vsak velikosti 12m2. Tloris najdete med fotografijami.
CENA: 191.271 EUR
Tehnične značilnosti:
ETAŽNOST: P+2
1.nadstropje: 3 sobno stanovanje z balkonom
Klasična konstrukcija iz opečnih modularnih zidakov Porotherm 30 cm (obodne stene), notranje nosilne stene z zidaki 20 cm ter notranje suho montažne mavčne stene 12cm, dvojno zapiranje. Predelne stene bodo izdelane po projektu glede toplotne in zvočne izolacije
AB vezi nosilcev in plošč
Višina stropov 250 -260 cm
Streha ravne konstrukcije, izolacija 25-30cm, SIKA ( folija)
Fasada termoizolacijska v debelini 20cm, bela barva v kombinaciji s konjak barvo
Dvorišče asfaltirano + parkirna mesta, ki so pripadajoča stanovanjskim enotam
Delno zasajene zelene površine
Priključki: elektrika, voda, kanalizacija ,domofon
Model električnih stikal: TEM Čatež modul
Ogrevanje na električno energijo s toplotno čepalko- v celoti talno gretje
Toplotna črpalka: Grupe Atlantic, serija Loria R32, 3KW z visoko letno učinkovitostjo A +++
Pozicija notranje enote: industrijski kotiček, pozicija zunanje enote : na balkonu
Klima: Cooper&Hunter model Veritas 2, moč 3,5kw, zunanja enota na balkonu
Rekuperacija zraka bo urejena.
PVC okna 3 slojna; bela barva znotraj , zunaj antracit barva
Senčila na električni pomik, lamele-zunanje žaluzije antracit barve
Okenske police notranje in zunanje granitne izvedbe
Vsa notranja vrata s podboji bodo montirana
Zvonci, domofoni pri vhodu v objekt
Zunanja, vhodna vrata ALU, barve antracit
Balkonska ograja kovinska , laserski izrez z vzorci
Finalna obdelava:
VINIL in keramika
Kopalnica:keramika do stropa, kanaleta pri tušu, steklena stena pri tušu
WC: kotliček Geberit, školjka, pokrov
Stene: nevtralni beli opleski
Možni dogovori za individualno spremembo pred zaključkom finalne obdelave ( npr. druga keramika, parket..)
Za več informacij in ogled, me kontaktirajte!
Pravno obvestilo:Podatki in slikovni material na spletni predstavitvi so zgolj informativne narave in investitorja ne zavezujejo, oziroma jih lahko kadarkoli in brez opozorila spremeni. Kupec je dolžan pred nakupom stanovanja vse pomembne podatke skrbno preveriti.
Investitor ima pridobljeno pravnomočno gradbeno dovoljenje in sprejeti so Splošni pogoji prodaje
Spletna povezava
Zemljevid
Dodatne informacije
Stanje objekta
- Oglas je objavljen
- 24.06.2025. ob 10:53
- Do poteka še
- oglas je potekel
- Oglas je prikazan
- 189 -krat



