Kaštel Sućurac, Split - Udobno dvosobno stanovanje (S3) v pritličju z (prodaja)
- Cena
- 303.000 €
Šifra oglasa: 15271684
-
- Bivalna površina
- 72,02 m²
-
- Vrsta stanovanja
- 3-sobno
Osnovne informacije
- Vrsta ponudbe
- Prodam
- Lokacija
- Izven Slovenije - Hrvaška, Splitsko-dalmatinska, Kaštela
- Umeščenost stanovanja
- V večstanovanjski stavbi
- Nadstropje
- Pritličje
- Skupno število nadstropij v stavbi
- 2
- Vrsta stanovanja
- 3-sobno
- Bivalna površina
- 72,02 m²
- Balkon / terasa / atrij
- Terasa
- Vrsta cene
- Skupna cena
- Interna številka oglasa
- 137-173
Opis oglasa
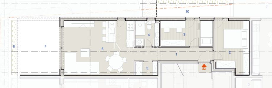
Kaiser Immobilien predstavlja: Udobno dvosobno stanovanje (S3) v pritličju z zasebnim vrtom, PRVA VRSTA DO MORJA, Kaštel Sućurac Na izjemni lokaciji, v prvi vrsti do morja, se nahaja to čudovito, novo in moderno dvosobno stanovanje. Kot del ekskluzivnega stanovanjskega kompleksa to stanovanje v pritličju ponuja edinstveno mešanico razkošja, udobja in neposredne povezave z naravo, s čudovitim pogledom na morje. O PROJEKTU: To stanovanje je bilo skrbno zasnovano tako, da poudarja odprte, svetle prostore in brezhibno povezavo z naravnim okoljem. Velike terase in zasebni vrtovi ponujajo čudovit razgled na morje, visokokakovostni materiali in prefinjena arhitekturna zasnova pa zagotavljajo trajno vrednost. Kompleks je sestavljen iz manjših stavb s samo 8 stanovanji, kar zagotavlja zasebnost in ekskluzivnost. O STANOVANJU: Oznaka: Stavba Istok - Pritličje - Stanovanje S3 Skupna popravljena površina: 72,04 m² RAZPOREDITEV STANOVANJA: Vhodni prostor / hodnik: 7,10 m² Spalnica 1: 11,85 m² Spalnica 2: 8,93 m² Kopalnica: 4,13 m² Shramba / garderobna omara: 2,03 m² Kuhinja, jedilnica in dnevna soba: 25,87 m² Pokrita terasa: 15,57 m² (izračunano 7,79 m²) Vrt 1: 2,00 m² (izračunano 0,20 m²) Vrt 2: 28,36 m² (izračunano 2,84 m²) Asfaltirana pot: 6,52 m² (izračunano 1,30 m²) VRHUNSKA OPREMA IN UGODNOSTI: Lega prva vrsta ob morju: Neoviran pogled na morje in neposreden dostop do obale. Zasebni vrt in velika pokrita terasa: Prostoren zunanji prostor z urejenim vrtom in veliko teraso, idealen za sprostitev in uživanje v mediteranskem vzdušju. Podzemna garaža: Garaža je z dvigalom povezana z vsemi nadstropji za maksimalno udobje. Visokokakovostni materiali: Vrhunski parket in keramika. Klimatska naprava: Večconska klimatska naprava. Aluminijasta drsna polkna: Za zaščito pred soncem in dodatno zasebnost. Talno ogrevanje: V kopalnici za dodatno udobje. Prilagodljivost: Možnost izbire zaključnih materialov med gradnjo. Koncept "na ključ": Stanovanje se prodaja popolnoma dokončano (brez pohištva). CENOVNE IN DAVČNE UGODNOSTI: DDV vključen v ceno: Brez dodatnih skritih stroškov. Brez davka na promet nepremičnin: Kupec je oproščen plačila davka na promet nepremičnin (3 %). Parkiranje: Možnost nakupa parkirnega mesta v garaži po ceni 20.000 € ali zunanjega parkirnega mesta po ceni 10.000 €. LOKACIJA: Kaštel Sućurac, ki se nahaja med Splitom in Trogirjem, ponuja popolno kombinacijo mirnega življenja ob morju in bližine vseh mestnih ugodnosti. Ta lokacija omogoča hiter dostop do letališča, avtoceste in vseh kulturnih in zgodovinskih znamenitosti regije. Ne zamudite priložnosti, da postanete lastnik te edinstvene nepremičnine na eni najbolj privlačnih lokacij na Jadranu! Provizija agencije za kupca znaša 3 % + DDV in se plača v primeru nakupa nepremičnine, ob sklenitvi prvega pravnega dejanja. Ogled nepremičnine je možen le ob predhodnem podpisu pogodbe o posredovanju v prometu z nepremičninami. Če si želite nepremičnino ogledati osebno, se obrnite na: Joška Bašića E-pošta: josko@kaiser-immobilien.hr Tel: +385-91-511-2993 http://kaiser-immobilien.hr/
ID KOD AGENCIJE: 137-173
Joško Bašić
Agent posredovanja u prometu nekretnina
Mob: +385915112693, +385995677888
E-mail: josko@kaiser-immobilien.hr
www.kaiser-immobilien.hr
Vedran Vilović
Agent posredovanja u prometu nekretnina
Mob: +385997031459, +385995677888
E-mail: vedran@kaiser-immobilien.hr
www.kaiser-immobilien.hr
ID KOD AGENCIJE: 137-173
Joško Bašić
Agent posredovanja u prometu nekretnina
Mob: +385915112693, +385995677888
E-mail: josko@kaiser-immobilien.hr
www.kaiser-immobilien.hr
Vedran Vilović
Agent posredovanja u prometu nekretnina
Mob: +385997031459, +385995677888
E-mail: vedran@kaiser-immobilien.hr
www.kaiser-immobilien.hr
Spletna povezava
Zemljevid
Dodatne informacije
Možnosti parkiranja
Kaiser-Immobilien d.o.o.
Vsi oglasi te trgovine
Uporabnik je telefonsko številko preveril v državi Hrvaška
- Naslov: Maršala Tita 97, 51410 Opatija, Hrvaška, Hrvaška
- URL: https://kaiser-immobilien.hr/
-
- Oglas je objavljen
- 11.12.2025. ob 09:25
- Do poteka še
- do prodaje
- Oglas je prikazan
- 21 -krat
Kaiser-Immobilien d.o.o.
Vsi oglasi te trgovine
Uporabnik je telefonsko številko preveril v državi Hrvaška
- Naslov: Maršala Tita 97, 51410 Opatija, Hrvaška, Hrvaška
- URL: https://kaiser-immobilien.hr/
-








