Ta oglas ni aktiven.
Prebrskaj podobne oglase.
-
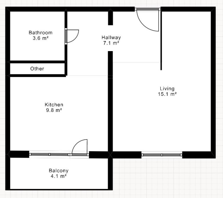
- Bivalna površina
- 39,40 m²
-
- Vrsta stanovanja
- 1-sobno
Osnovne informacije
- Vrsta ponudbe
- Prodam
- Lokacija
- Podravska, Ptuj, Ptuj
- Umeščenost stanovanja
- V večstanovanjski stavbi
- Nadstropje
- 3.
- Skupno število nadstropij v stavbi
- 3
- Vrsta stanovanja
- 1-sobno
- Bivalna površina
- 39,40 m²
- Leto zadnje prenove
- 2020
- Opremljenost in stanje
- Popolnoma opremljeno
- Balkon / terasa / atrij
- Balkon
- Vrsta cene
- Skupna cena
- Možnost menjave
- Menjava za drugo nepremičnino ni možna
Opis oglasa
Ptuj, 39,40 m2, 1 - sobno stanovanje, 3. nadstropje. V celoti prenovljeno konec leta 2020.
Prodamo 1 - sobno stanovanje v 3. nadstropju, ki se nahaja na ulici 5. Prekomorske 6 na Ptuju.
Stanovanje je imelo leta 2018 menjana okna (PVC).
Konec leta 2020 je bilo v celoti prenovljeno:
- prenova vodovodne instalacije,
- prenova elektricne instalacije,
- prenova celotne kopalniske opreme,
- polaganje talnih oblog (keramika v kuhinji,jedilnici, hodniku in kopalnici ter v dnevnem in spalnem prostoru laminat)
- slikopleskarstvo
- po meri izdelano pohistvo v vseh prostorih (izdelal mizar)
Stanovanjski blok ima prenovljeno fasado in streho.
Z veseljem smo vam na razpolago za vec informacij in ogled stanovanja.
Kontaktni podatki:
Jure Fajt, 040-982/666
Prodamo 1 - sobno stanovanje v 3. nadstropju, ki se nahaja na ulici 5. Prekomorske 6 na Ptuju.
Stanovanje je imelo leta 2018 menjana okna (PVC).
Konec leta 2020 je bilo v celoti prenovljeno:
- prenova vodovodne instalacije,
- prenova elektricne instalacije,
- prenova celotne kopalniske opreme,
- polaganje talnih oblog (keramika v kuhinji,jedilnici, hodniku in kopalnici ter v dnevnem in spalnem prostoru laminat)
- slikopleskarstvo
- po meri izdelano pohistvo v vseh prostorih (izdelal mizar)
Stanovanjski blok ima prenovljeno fasado in streho.
Z veseljem smo vam na razpolago za vec informacij in ogled stanovanja.
Kontaktni podatki:
Jure Fajt, 040-982/666
Zemljevid
Dodatne informacije
Ogrevanje
Stanje objekta
Podatki o objektu
Okolica
Dovoljenja
Možnosti parkiranja
Lega stanovanja
Kopalnica
- Oglas je objavljen
- 24.01.2023. ob 15:18
- Do poteka še
- oglas je potekel
- Oglas je prikazan
- 541 -krat












