OTOK PAG-, NOVALJA - Odlično 3s+db stanovanje v novogradnji (prodaja)
- Cena
- 320.000 €
-
Želite na boljše? Preverite stanovanjski kredit OTP banke.OglasOglaševalec OTP banka d.d.
Zakaj vidim ta oglas?
Uporaba omejenih podatkov za izbiro oglasov: oglasi, ki se vam prikazujejo v tej storitvi, lahko temeljijo na omejenih podatkih, kot so spletna stran ali aplikacija, ki jo trenutno uporabljate, vaša približna lokacija, vrsta naprave ali vsebine, s katerimi ste bili v interakciji (npr. za omejevanje pogostosti prikazovanja oglasov).
Šifra oglasa: 9217057
-
- Bivalna površina
- 109,24 m²
-
- Vrsta stanovanja
- 4-sobno
-
- Leto izgradnje
- 2022
Osnovne informacije
- Vrsta ponudbe
- Prodam
- Lokacija
- Izven Slovenije - Hrvaška, Liško-senjska, Novalja
- Umeščenost stanovanja
- V večstanovanjski stavbi
- Nadstropje
- 2.
- Skupno število nadstropij v stavbi
- 2
- Vrsta stanovanja
- 4-sobno
- Bivalna površina
- 109,24 m²
- Leto izgradnje
- 2022
- Število parkirnih mest
- 2
- Balkon / terasa / atrij
- Terasa
- Vrsta cene
- Skupna cena
- Interna številka oglasa
- 13500
Opis oglasa
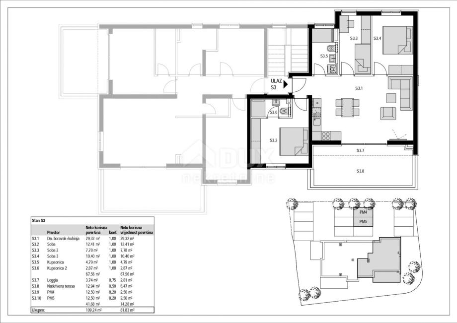
OTOK PAG, NOVALJA - 3s+db stanovanje v novogradnji
Prodamo 3s+db stanovanje S3 s skupno bivalno površino 109,24 m2 v drugem nadstropju. Sestavljen je iz predprostora, kopalnice, kuhinje z jedilnico in dnevne sobe z izhodom na pokrito teraso, treh spalnic od katerih ima glavna soba svojo kopalnico. Stanovanje ima odlično razporeditev in ima v lasti dve parkirni mesti. Prodaja se na ključ.
Spoštovane stranke, agencijska provizija se obračunava v skladu s Splošnimi pogoji poslovanja: www.dux-nekretnine.hr/opci-uvjeti-poslovanja.
ID KOD AGENCIJE: 13500
Darko Miculinić
Vanjski suradnik
Mob: +385 91 899 5705
Tel: +385 91 480 8808
E-mail: darko@dux-nekretnine.hr
www.dux-nekretnine.hr
Prodamo 3s+db stanovanje S3 s skupno bivalno površino 109,24 m2 v drugem nadstropju. Sestavljen je iz predprostora, kopalnice, kuhinje z jedilnico in dnevne sobe z izhodom na pokrito teraso, treh spalnic od katerih ima glavna soba svojo kopalnico. Stanovanje ima odlično razporeditev in ima v lasti dve parkirni mesti. Prodaja se na ključ.
Spoštovane stranke, agencijska provizija se obračunava v skladu s Splošnimi pogoji poslovanja: www.dux-nekretnine.hr/opci-uvjeti-poslovanja.
ID KOD AGENCIJE: 13500
Darko Miculinić
Vanjski suradnik
Mob: +385 91 899 5705
Tel: +385 91 480 8808
E-mail: darko@dux-nekretnine.hr
www.dux-nekretnine.hr
Spletna povezava
Zemljevid
Dodatne informacije
Ogrevanje
Podatki o objektu
Dux nekretnine
Vsi oglasi te trgovine
Uporabnik je telefonsko številko preveril v državi Hrvaška
- Naslov: Tizianova 8, 51000 Rijeka, Hrvaška, Hrvaška
- URL: https://www.dux-nekretnine.hr/
-
- Oglas je objavljen
- 03.04.2026. ob 12:39
- Do poteka še
- do prodaje
- Oglas je prikazan
- 634 -krat
Dux nekretnine
Vsi oglasi te trgovine
Uporabnik je telefonsko številko preveril v državi Hrvaška
- Naslov: Tizianova 8, 51000 Rijeka, Hrvaška, Hrvaška
- URL: https://www.dux-nekretnine.hr/
-






