Istra, Poreč, vrstna hiša - 2 km od morja (prodaja)
- Cena
- 340.000 €
-
OglasOglaševalec OTP banka d.d.
Zakaj vidim ta oglas?
Uporaba omejenih podatkov za izbiro oglasov: oglasi, ki se vam prikazujejo v tej storitvi, lahko temeljijo na omejenih podatkih, kot so spletna stran ali aplikacija, ki jo trenutno uporabljate, vaša približna lokacija, vrsta naprave ali vsebine, s katerimi ste bili v interakciji (npr. za omejevanje pogostosti prikazovanja oglasov).
Šifra oglasa: 11531453
-
- Bivalna površina
- 126,00 m²
-
- Število sob
- 4
-
- Leto izgradnje
- 2024
Osnovne informacije
- Vrsta ponudbe
- Prodam
- Lokacija
- Izven Slovenije - Hrvaška, Istrska, Poreč
- Število sob
- 4
- Število nadstropij
- Enonadstropna
- Vrsta hiše
- Vrstna
- Bivalna površina
- 126,00 m²
- Površina parcele
- 170,00 m²
- Leto izgradnje
- 2024
- Število parkirnih mest
- 2
- Balkon / terasa / atrij
- Terasa
- Vrsta cene
- Skupna cena
- Interna številka oglasa
- 114-090
Opis oglasa
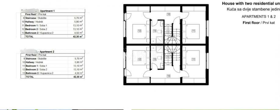
Kaiser Immobilien prodaja moderno vrstno hišo z dvema stanovanjskima enotama. Vsaka stanovanjska enota je sestavljena iz pritličja, nadstropja in mansarde, skupaj 126 m2. V pritličju je predsoba, dve shrambi, kuhinja, jedilnica, dnevna soba in kopalnica. Skozi veliko stekleno steno se dostopa na čudovito teraso velikosti 16 m2 s pergolo v skupni izmeri 17,60 m, na vrtu pa je tudi letna kuhinja. V prvem nadstropju sta dve spalnici s kopalnico. Mansarda je velika 41,90 m2 in je sestavljena iz stopnišča, sobe s kopalnico in terase 11,20 m2. Začetek gradnje, predviden zaključek konec leta 2024.
ID KOD AGENCIJE: 114-090
Dean Cvitko
Agent s licencom u posredovanju u prometu nekretnina
Mob: +385915284449, +385995677888
E-mail: dean.cvitko@kaiser-immobilien.hr
www.kaiser-immobilien.hr
ID KOD AGENCIJE: 114-090
Dean Cvitko
Agent s licencom u posredovanju u prometu nekretnina
Mob: +385915284449, +385995677888
E-mail: dean.cvitko@kaiser-immobilien.hr
www.kaiser-immobilien.hr
Spletna povezava
Zemljevid
Dodatne informacije
Ogrevanje
Podatki o objektu
Kaiser-Immobilien d.o.o.
Vsi oglasi te trgovine
Uporabnik je telefonsko številko preveril v državi Hrvaška
- Naslov: Maršala Tita 97, 51410 Opatija, Hrvaška, Hrvaška
- URL: https://kaiser-immobilien.hr/
-
- Oglas je objavljen
- 24.04.2026. ob 15:23
- Do poteka še
- do prodaje
- Oglas je prikazan
- 342 -krat
Kaiser-Immobilien d.o.o.
Vsi oglasi te trgovine
Uporabnik je telefonsko številko preveril v državi Hrvaška
- Naslov: Maršala Tita 97, 51410 Opatija, Hrvaška, Hrvaška
- URL: https://kaiser-immobilien.hr/
-













