Ta oglas ni aktiven.
Prebrskaj podobne oglase.
-
- Bivalna površina
- 120,00 m²
-
- Število sob
- 2
-
- Leto izgradnje
- 2023
Osnovne informacije
- Vrsta ponudbe
- Prodam
- Lokacija
- Izven Slovenije - Hrvaška, Istrska, Kršan
- Število sob
- 2
- Število nadstropij
- Enonadstropna
- Bivalna površina
- 120,00 m²
- Površina parcele
- 634,00 m²
- Leto izgradnje
- 2023
- Število parkirnih mest
- 1
- Energetski razred
- A+ (0 do 15 kWh/m²a) - HR
- Vrsta cene
- Skupna cena
- Interna številka oglasa
- 19830
Opis oglasa
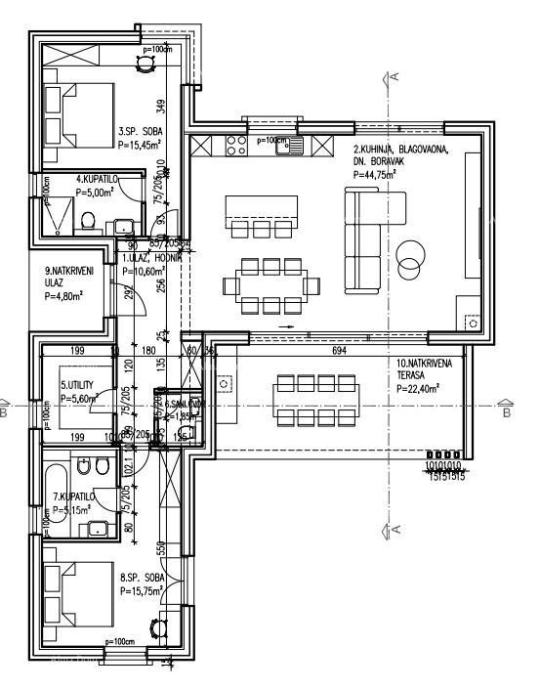
Prodamo enonadstropno hišo velikosti 120m2.
Sestoji iz predsobe in wc-ja, sledi velika kuhinja z otokom, jedilnica in dnevna soba z izhodom na veliko teraso in bazen.
Na levi in desni strani predsobe se nahajata spalnici, vsaka ima svojo kopalnico in shrambo 5,60 m2.
Na željo kupcev se lahko tloris hiše še spremeni.
Ta čudovita hiša je idealna za investitorje, ki se želijo ukvarjati s turizmom.
Cena po fazah je 440.000,00 EUR.
Info:
+385 91 611 5706
azra@almadominvest.com
Sestoji iz predsobe in wc-ja, sledi velika kuhinja z otokom, jedilnica in dnevna soba z izhodom na veliko teraso in bazen.
Na levi in desni strani predsobe se nahajata spalnici, vsaka ima svojo kopalnico in shrambo 5,60 m2.
Na željo kupcev se lahko tloris hiše še spremeni.
Ta čudovita hiša je idealna za investitorje, ki se želijo ukvarjati s turizmom.
Cena po fazah je 440.000,00 EUR.
Info:
+385 91 611 5706
azra@almadominvest.com
Spletna povezava
Zemljevid
Dodatne informacije
Podatki o objektu
Lega stanovanja
Kopalnica
- Oglas je objavljen
- 15.05.2025. ob 08:18
- Do poteka še
- oglas je potekel
- Oglas je prikazan
- 117 -krat





