Vrstna hiša s pogledom na morje v bližini Umaga (prodaja)
- Cena
- 390.000 €
-
Želite na boljše? Preverite stanovanjski kredit OTP banke.OglasOglaševalec OTP banka d.d.
Zakaj vidim ta oglas?
Uporaba omejenih podatkov za izbiro oglasov: oglasi, ki se vam prikazujejo v tej storitvi, lahko temeljijo na omejenih podatkih, kot so spletna stran ali aplikacija, ki jo trenutno uporabljate, vaša približna lokacija, vrsta naprave ali vsebine, s katerimi ste bili v interakciji (npr. za omejevanje pogostosti prikazovanja oglasov).
Šifra oglasa: 14001323
-
- Bivalna površina
- 151,00 m²
-
- Število sob
- 4
-
- Leto izgradnje
- 2025
Osnovne informacije
- Vrsta ponudbe
- Prodam
- Lokacija
- Izven Slovenije - Hrvaška, Istrska, Umag
- Število sob
- 4
- Število nadstropij
- Večnadstropna
- Vrsta hiše
- Vrstna
- Bivalna površina
- 151,00 m²
- Leto izgradnje
- 2025
- Število parkirnih mest
- 1
- Balkon / terasa / atrij
- Terasa
- Energetski razred
- A (16 do 25 kWh/m²a) - HR
- Vrsta cene
- Skupna cena
- Interna številka oglasa
- 589
Opis oglasa
Vrstna hiša s pogledom na morje v bližini Umaga
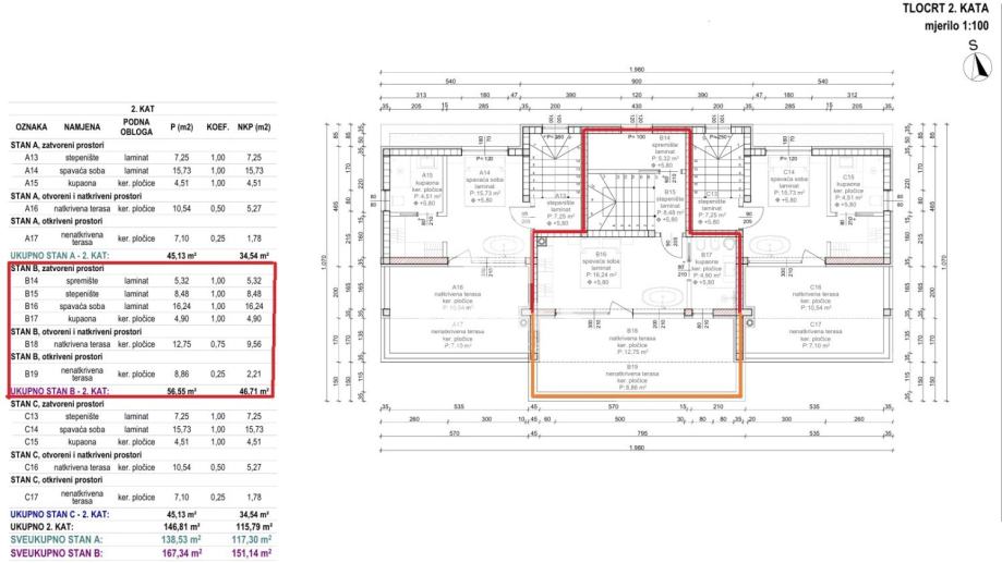
Prodamo moderno vrstno hišo (enota B) s pogledom na morje v bližini Umaga. Neto uporabna površina hiše je 151,14 m2, medtem ko je površina vrta približno 70 m2. V pritličju se nahaja WC, shramba, kuhinja z jedilnico in dnevna soba z izhodom na pokrito teraso. V prvem nadstropju sta 2 spalnici z izhodom na pokrito teraso, kopalnica in shramba. V drugem nadstropju je spalnica z lastno kopalnico in shrambo ter velika terasa s pogledom na morje.
Za ogrevanje je predvidena predispozicija za toplotno črpalko, za hlajenje pa klimatska naprava.
Fasada bo energetsko varčna (stiropor 10 cm), stavbno pohištvo pa troslojno. Ima 2 parkirni mesti. Začetek gradnje je predviden konec leta 2025. Hiša se nahaja v mirnem okolju in je idealna tako za bivanje kot tudi za oddajanje v turistične namene.
Oddaljenost hiše od morja in mesta Umag je 1,5 km.
www.leones-realestate.hr
Prodamo moderno vrstno hišo (enota B) s pogledom na morje v bližini Umaga. Neto uporabna površina hiše je 151,14 m2, medtem ko je površina vrta približno 70 m2. V pritličju se nahaja WC, shramba, kuhinja z jedilnico in dnevna soba z izhodom na pokrito teraso. V prvem nadstropju sta 2 spalnici z izhodom na pokrito teraso, kopalnica in shramba. V drugem nadstropju je spalnica z lastno kopalnico in shrambo ter velika terasa s pogledom na morje.
Za ogrevanje je predvidena predispozicija za toplotno črpalko, za hlajenje pa klimatska naprava.
Fasada bo energetsko varčna (stiropor 10 cm), stavbno pohištvo pa troslojno. Ima 2 parkirni mesti. Začetek gradnje je predviden konec leta 2025. Hiša se nahaja v mirnem okolju in je idealna tako za bivanje kot tudi za oddajanje v turistične namene.
Oddaljenost hiše od morja in mesta Umag je 1,5 km.
www.leones-realestate.hr
Spletna povezava
Zemljevid
Dodatne informacije
Ogrevanje
Stanje objekta
Podatki o objektu
Funkcionalnost in lastnosti
Kopalnica
Leones real estate
Vsi oglasi te trgovine
Uporabnik je telefonsko številko preveril v državi Hrvaška
- Naslov: Ulica Olge Ban/Via Olga Ban 9, Hrvaška, Hrvaška
- URL: https://leones-realestate.hr/
-
- Oglas je objavljen
- 30.01.2026. ob 10:53
- Do poteka še
- do prodaje
- Oglas je prikazan
- 649 -krat
Leones real estate
Vsi oglasi te trgovine
Uporabnik je telefonsko številko preveril v državi Hrvaška
- Naslov: Ulica Olge Ban/Via Olga Ban 9, Hrvaška, Hrvaška
- URL: https://leones-realestate.hr/
-








