Stanovanje Poreč, 77,03m2 (prodaja)
- Cena
- 468.800 €
-
Želite na boljše? Preverite stanovanjski kredit OTP banke.OglasOglaševalec OTP banka d.d.
Zakaj vidim ta oglas?
Uporaba omejenih podatkov za izbiro oglasov: oglasi, ki se vam prikazujejo v tej storitvi, lahko temeljijo na omejenih podatkih, kot so spletna stran ali aplikacija, ki jo trenutno uporabljate, vaša približna lokacija, vrsta naprave ali vsebine, s katerimi ste bili v interakciji (npr. za omejevanje pogostosti prikazovanja oglasov).
Šifra oglasa: 14229714
-
- Bivalna površina
- 77,03 m²
-
- Vrsta stanovanja
- 3-sobno
-
- Leto izgradnje
- 2026
Osnovne informacije
- Vrsta ponudbe
- Prodam
- Lokacija
- Izven Slovenije - Hrvaška, Istrska, Poreč
- Umeščenost stanovanja
- V večstanovanjski stavbi
- Nadstropje
- Pritličje
- Vrsta stanovanja
- 3-sobno
- Bivalna površina
- 77,03 m²
- Leto izgradnje
- 2026
- Število parkirnih mest
- 2
- Balkon / terasa / atrij
- Terasa
- Vrsta cene
- Skupna cena
- Interna številka oglasa
- S3081
Opis oglasa
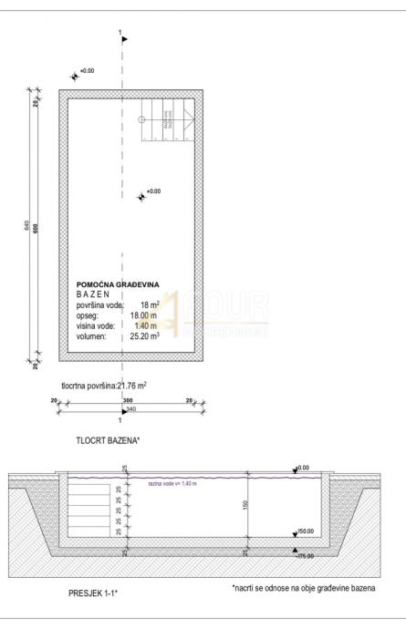
Luksuzni stan s privatnim bazenom – Popolna kombinacija udobnosti in moderne gradnje
Na prodajo je atraktiven stan v novogradnji, velikosti 77,03 m², ki se nahaja na odlični lokaciji, le 800 metrov od morja. Ta luksuzni stan s privatnim bazenom ponuja vrhunski kakovosten bivalni prostor v srcu narave in v bližini vseh potrebnih vsebin.
Sestavlja se iz dveh spalnic, prostornega dnevnega prostora, kuhinje z jedilnico, dveh kopalnic in predprostora. Posebnost te nepremičnine je terasa v velikosti 8,93 m² z jugozahodno usmeritvijo, ki omogoča uživanje v sončnih dneh.
V gradnji, ki je predvidena za leto 2026, so bili postavljeni najnovejši standardi v tehnologiji in opremi: talno gretje, klimatska naprava, toplotna črpalka, aluminijasta stavbna pohištva, protipožarna vrata, električne rolete in kotlovnica, kar zagotavlja visoko energetsko učinkovitost in udobno bivanje skozi vse leto.
Za popolno zasebnost ima stan ločen vstop, lastnikom pa sta zagotovljeni dve zunanjici parkirni mesti. Privatni bazen bo prava osvežitev v vročih poletnih dneh, bližina morja pa omogoča uživanje v vseh čarih obale.
Ta nepremičnina predstavlja popolno priložnost za vse, ki iščejo moden, luksuzen dom z zasebnimi vsebinami. Ne zamudite priložnosti, da postanete lastnik tega ekskluzivnega stanovanja!
Spoštovani kupci, agencijska provizija se zaračunava v skladu z našimi splošnimi pogoji poslovanja.
ID KOD AGENCIJE: S3081
Ured Poreč
Mob: +385994441442
Tel: +385 51 619 770
E-mail: info@four-nekretnine.hr
https://four-nekretnine.hr/
Na prodajo je atraktiven stan v novogradnji, velikosti 77,03 m², ki se nahaja na odlični lokaciji, le 800 metrov od morja. Ta luksuzni stan s privatnim bazenom ponuja vrhunski kakovosten bivalni prostor v srcu narave in v bližini vseh potrebnih vsebin.
Sestavlja se iz dveh spalnic, prostornega dnevnega prostora, kuhinje z jedilnico, dveh kopalnic in predprostora. Posebnost te nepremičnine je terasa v velikosti 8,93 m² z jugozahodno usmeritvijo, ki omogoča uživanje v sončnih dneh.
V gradnji, ki je predvidena za leto 2026, so bili postavljeni najnovejši standardi v tehnologiji in opremi: talno gretje, klimatska naprava, toplotna črpalka, aluminijasta stavbna pohištva, protipožarna vrata, električne rolete in kotlovnica, kar zagotavlja visoko energetsko učinkovitost in udobno bivanje skozi vse leto.
Za popolno zasebnost ima stan ločen vstop, lastnikom pa sta zagotovljeni dve zunanjici parkirni mesti. Privatni bazen bo prava osvežitev v vročih poletnih dneh, bližina morja pa omogoča uživanje v vseh čarih obale.
Ta nepremičnina predstavlja popolno priložnost za vse, ki iščejo moden, luksuzen dom z zasebnimi vsebinami. Ne zamudite priložnosti, da postanete lastnik tega ekskluzivnega stanovanja!
Spoštovani kupci, agencijska provizija se zaračunava v skladu z našimi splošnimi pogoji poslovanja.
ID KOD AGENCIJE: S3081
Ured Poreč
Mob: +385994441442
Tel: +385 51 619 770
E-mail: info@four-nekretnine.hr
https://four-nekretnine.hr/
Spletna povezava
Zemljevid
Dodatne informacije
Ogrevanje
Podatki o objektu
Funkcionalnost in lastnosti
Lega stanovanja
fournekretnine
Vsi oglasi te trgovine
Uporabnik je telefonsko številko preveril v državi Hrvaška
- Naslov: Trpimirova ulica 4A, 51000 Rijeka, Hrvaška, Hrvaška
- URL: https://four-nekretnine.hr/
-
- Oglas je objavljen
- 16.12.2025. ob 11:31
- Do poteka še
- do prodaje
- Oglas je prikazan
- 226 -krat
fournekretnine
Vsi oglasi te trgovine
Uporabnik je telefonsko številko preveril v državi Hrvaška
- Naslov: Trpimirova ulica 4A, 51000 Rijeka, Hrvaška, Hrvaška
- URL: https://four-nekretnine.hr/
-






