Enosobno stanovanje B3 v 3. nadstropju s KROVNIM TERASO, Vabriga! (prodaja)
- Cena
- 273.020 €
Šifra oglasa: 15284712
-
- Bivalna površina
- 52,86 m²
-
- Vrsta stanovanja
- 1-sobno
-
- Leto izgradnje
- 2023
Osnovne informacije
- Vrsta ponudbe
- Prodam
- Lokacija
- Izven Slovenije - Hrvaška, Istrska, Poreč
- Nadstropje
- 3.
- Skupno število nadstropij v stavbi
- 4
- Vrsta stanovanja
- 1-sobno
- Bivalna površina
- 52,86 m²
- Leto izgradnje
- 2023
- Število parkirnih mest
- 1
- Energetski razred
- A+ (0 do 15 kWh/m2a) - HR
- Vrsta cene
- Skupna cena
- Interna številka oglasa
- 25723
Opis oglasa
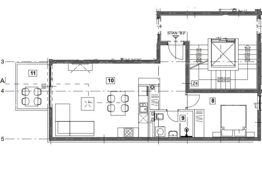
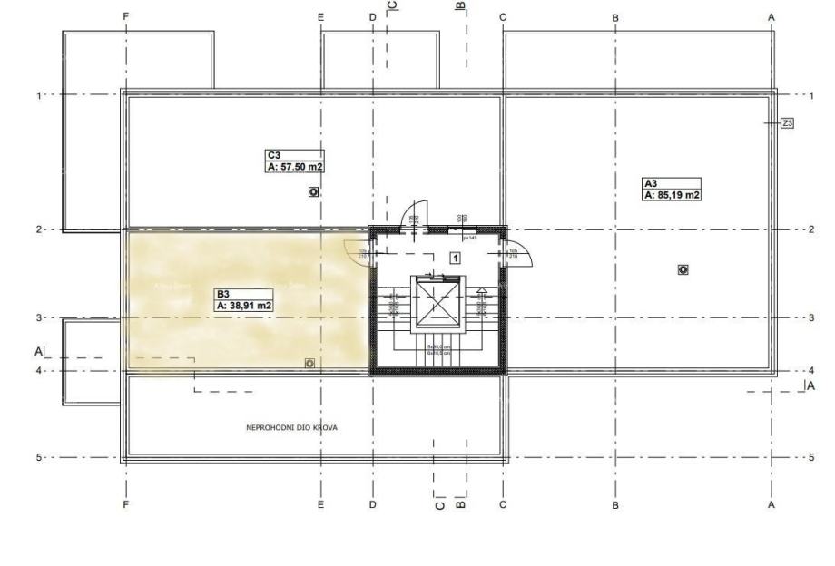
V Vabrigi, Istra, prodajamo enosoben stan oznake B3, velikosti 52,86 m², na 3. nadstropju. Stanu pripada tudi strešna terasa velikosti 39 m², s katere se razprostira čudovit pogled na morje.
Stan se nahaja v stavbi, ki obsega skupno 23 stanovanj, stavba bo opremljena z dvigalom.
Stan B3, velikosti 52,86 m², sestavljajo:
- predsoba, dnevna soba, kuhinja in jedilnica 35,06 m²
- pokrita terasa 5,16 m² * koef. 0,50 = 2,58 m²
- spalnica velikosti 11,19 m²
- kopalnica velikosti 4,03 m²
Stanu pripada tudi shrambe (1,82 m² * koef. 0,50 = 0,91 m²) v pritličju stavbe, strešna terasa (39 m² * koef. 0,25 = 9,70 m²) in parkirno mesto.
V vsaki prostoriji je predvidena klimatska naprava, v kopalnici pa talno ogrevanje.
Kupec je oproščen plačila davka na promet nepremičnin v višini 3%.
Na voljo smo za dodatne informacije in oglede.
+385 91 6115706
+385 98 420 885
azra@almadominvest.com
Stan se nahaja v stavbi, ki obsega skupno 23 stanovanj, stavba bo opremljena z dvigalom.
Stan B3, velikosti 52,86 m², sestavljajo:
- predsoba, dnevna soba, kuhinja in jedilnica 35,06 m²
- pokrita terasa 5,16 m² * koef. 0,50 = 2,58 m²
- spalnica velikosti 11,19 m²
- kopalnica velikosti 4,03 m²
Stanu pripada tudi shrambe (1,82 m² * koef. 0,50 = 0,91 m²) v pritličju stavbe, strešna terasa (39 m² * koef. 0,25 = 9,70 m²) in parkirno mesto.
V vsaki prostoriji je predvidena klimatska naprava, v kopalnici pa talno ogrevanje.
Kupec je oproščen plačila davka na promet nepremičnin v višini 3%.
Na voljo smo za dodatne informacije in oglede.
+385 91 6115706
+385 98 420 885
azra@almadominvest.com
Spletna povezava
Zemljevid
Dodatne informacije
Ogrevanje
Podatki o objektu
Lega stanovanja
Kopalnica
ALMA DOM
Vsi oglasi te trgovine
Uporabnik je telefonsko številko preveril v državi Hrvaška
- Naslov: Hrvaška, Hrvaška
- URL: https://therealestatecroatia.com/
-
- Oglas je objavljen
- 15.12.2025. ob 00:25
- Do poteka še
- do prodaje
- Oglas je prikazan
- 22 -krat
ALMA DOM
Vsi oglasi te trgovine
Uporabnik je telefonsko številko preveril v državi Hrvaška
- Naslov: Hrvaška, Hrvaška
- URL: https://therealestatecroatia.com/
-







