-
- Bivalna površina
- 84,18 m²
-
- Vrsta stanovanja
- 3-sobno
-
- Leto izgradnje
- 2025
Osnovne informacije
- Vrsta ponudbe
- Prodam
- Lokacija
- Izven Slovenije - Hrvaška, Istrska, Medulin
- Nadstropje
- 2.
- Skupno število nadstropij v stavbi
- 3
- Vrsta stanovanja
- 3-sobno
- Bivalna površina
- 84,18 m²
- Leto izgradnje
- 2025
- Število parkirnih mest
- 1
- Energetski razred
- A+ (0 do 15 kWh/m2a) - HR
- Vrsta cene
- Skupna cena
- Interna številka oglasa
- 26060
Opis oglasa
Medulin, mirna lokacija, blizu morja - stanovanje v 2. nadstropju.
Stavba ima 3 nadstropja, eno stanovanje v vsakem nadstropju.
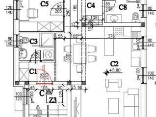
To udobno stanovanje v 2. nadstropju je označeno s "C" s 3 spalnicami, 2 kopalnicama in 16 m2 velikim balkonom s čudovitim razgledom na zelene borovce in morje:
HODNIK - 2,76 m2
DNEVNA SOBA IN KUHINJA - 29,76 m2
KOPALNICA - 3,74 M2
HODNIK - 4,77 m2
SPALNICA - 11,55 m2
SPALNICA - 11,13 m2
KOPALNICA - 4,83 M2
SPALNICA - 8,25 m2
BALKON - 13,62 m2*0,50+2,33 m2*0,25=7,39 m2
Skupna neto površina stanovanja "C" je 84,18 m2.
K stanovanju lahko izberete 2 zunanji parkirni mesti ali 1 parkirno mesto in garažo, odvisno od razpoložljivosti garaže, saj je v stavbi samo 1 garaža, ter shrambo za doplačilo. Cena temelji samo na bivalni površini.
Stavba je zgrajena, stanovanje je takoj vseljivo. Opremljeno je z inverterskimi klimatskimi napravami v vsaki sobi, tla so predvidena kot laminat, v kopalnici, dnevni sobi in kuhinji pa bodo kakovostne keramične ploščice s talnim ogrevanjem.
Okna so troslojna antracit barve na zunanji in notranji strani, z dvižno-drsnimi okni v dnevni sobi z izhodom na teraso, prav tako so samo na teh oknih nameščene električne rulete.
Na vseh oknih so komarniki.
Za več informacij nas pokličite ali se dogovorite za ogled:
Azra
+385 91 611 5706
+385 98 420 885
azra@almadominvest.com
Stavba ima 3 nadstropja, eno stanovanje v vsakem nadstropju.
To udobno stanovanje v 2. nadstropju je označeno s "C" s 3 spalnicami, 2 kopalnicama in 16 m2 velikim balkonom s čudovitim razgledom na zelene borovce in morje:
HODNIK - 2,76 m2
DNEVNA SOBA IN KUHINJA - 29,76 m2
KOPALNICA - 3,74 M2
HODNIK - 4,77 m2
SPALNICA - 11,55 m2
SPALNICA - 11,13 m2
KOPALNICA - 4,83 M2
SPALNICA - 8,25 m2
BALKON - 13,62 m2*0,50+2,33 m2*0,25=7,39 m2
Skupna neto površina stanovanja "C" je 84,18 m2.
K stanovanju lahko izberete 2 zunanji parkirni mesti ali 1 parkirno mesto in garažo, odvisno od razpoložljivosti garaže, saj je v stavbi samo 1 garaža, ter shrambo za doplačilo. Cena temelji samo na bivalni površini.
Stavba je zgrajena, stanovanje je takoj vseljivo. Opremljeno je z inverterskimi klimatskimi napravami v vsaki sobi, tla so predvidena kot laminat, v kopalnici, dnevni sobi in kuhinji pa bodo kakovostne keramične ploščice s talnim ogrevanjem.
Okna so troslojna antracit barve na zunanji in notranji strani, z dvižno-drsnimi okni v dnevni sobi z izhodom na teraso, prav tako so samo na teh oknih nameščene električne rulete.
Na vseh oknih so komarniki.
Za več informacij nas pokličite ali se dogovorite za ogled:
Azra
+385 91 611 5706
+385 98 420 885
azra@almadominvest.com
Spletna povezava
Zemljevid
Dodatne informacije
Ogrevanje
Lega stanovanja
Kopalnica
ALMA DOM
Vsi oglasi te trgovine
Uporabnik je telefonsko številko preveril v državi Hrvaška
- Naslov: Hrvaška, Hrvaška
- URL: https://therealestatecroatia.com/
-
- Oglas je objavljen
- 25.12.2025. ob 00:24
- Do poteka še
- do prodaje
- Oglas je prikazan
- 95 -krat
ALMA DOM
Vsi oglasi te trgovine
Uporabnik je telefonsko številko preveril v državi Hrvaška
- Naslov: Hrvaška, Hrvaška
- URL: https://therealestatecroatia.com/
-

















