Prodaja - novi, moderni stanovi v bližini morja, Peroj! Pogled na morj (prodaja)
- Cena
- 253.700 €
Šifra oglasa: 14925881
-
- Bivalna površina
- 71,54 m²
-
- Vrsta stanovanja
- 2-sobno
-
- Leto izgradnje
- 2025
Osnovne informacije
- Vrsta ponudbe
- Prodam
- Lokacija
- Izven Slovenije - Hrvaška, Istrska, Vodnjan
- Nadstropje
- Pritličje
- Skupno število nadstropij v stavbi
- 3
- Vrsta stanovanja
- 2-sobno
- Bivalna površina
- 71,54 m²
- Leto izgradnje
- 2025
- Število parkirnih mest
- 1
- Energetski razred
- A+ (0 do 15 kWh/m2a) - HR
- Vrsta cene
- Skupna cena
- Interna številka oglasa
- 24172
Opis oglasa
Na prodajo – moderna, nova stanovanja v Peroju s pogledom na morje.
V očarljivem obmorskem kraju Peroj sta v gradnji dve moderni stanovanski stavbi s skupno 12 ekskluzivnimi stanovanji, zasnovanimi za zagotavljanje udobja, funkcionalnosti in sodobnega življenjskega sloga.
Projekt obsega dve stavbi s tremi etažami in 6 stanovanji v vsaki stavbi. Stavbe, moderne arhitekture z trajnostnimi materiali in energetsko učinkovitimi rešitvami, ponujajo možnost vgradnje pametnih domačih sistemov in sončnih panelov.
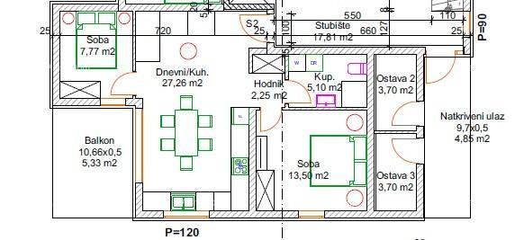
Z2-Stan S2 – pritličje
To stanovanje se nahaja v pritličju stavbe in obsega:
vhodni hodnik, dve spalnici, kopalnico, prostoren dnevni prostor s kuhinjo in jedilnico ter teraso.
Stavba bo zgrajena po visokih standardih s skrbno izbranimi materiali, z integriranimi pametnimi inštalacijami ter obnovljivo energijo za zmanjšan vpliv na okolje in nižje obratovalne stroške, pametnimi vodnimi ventili, ki bodo v primeru puščanja avtomatsko zaprli glavne dovodne ventile. Za gradnjo nepremičnin bodo uporabljeni kakovostni negorljivi in protizvočni materiali, zagotovljen bo videofon z nadzorom in etažni protipožarni sistem, stavba bo opremljena z notranjim dvigalom, ki bo olajšalo dostop do stanovanjskih enot, medtem ko bo stavbno pohištvo PVC s elektro dvigalniki, povezanimi z wi-fi omrežjem, ter možnostjo upravljanja na daljavo. Osvetljava v kopalnici, hodnikih in kuhinji bo lahko izbrana vnaprej, medtem ko bo talno ogrevanje nameščeno v kopalnici, v stanovanju pa bodo tri enote klimatskih naprav. Možnost postavitve kuhinje po meri s Siemens belo tehniko in možnostjo montaže.
Odlična lokacija, blizu morja, le nekaj minut vožnje od Pule.
Stanovanju pripadata 2 parkirna mesta.
Ta nepremičnina je popolna izbira za tiste, ki iščejo moderno domovanje blizu morja, idealno za celoletno bivanje in poletne počitnice.
Za dodatne informacije, prosimo, kontaktirajte:
Azra
+385 91 611 5706
+385 98 420 885
azra@almadominvest.com
V očarljivem obmorskem kraju Peroj sta v gradnji dve moderni stanovanski stavbi s skupno 12 ekskluzivnimi stanovanji, zasnovanimi za zagotavljanje udobja, funkcionalnosti in sodobnega življenjskega sloga.
Projekt obsega dve stavbi s tremi etažami in 6 stanovanji v vsaki stavbi. Stavbe, moderne arhitekture z trajnostnimi materiali in energetsko učinkovitimi rešitvami, ponujajo možnost vgradnje pametnih domačih sistemov in sončnih panelov.
Z2-Stan S2 – pritličje
To stanovanje se nahaja v pritličju stavbe in obsega:
vhodni hodnik, dve spalnici, kopalnico, prostoren dnevni prostor s kuhinjo in jedilnico ter teraso.
Stavba bo zgrajena po visokih standardih s skrbno izbranimi materiali, z integriranimi pametnimi inštalacijami ter obnovljivo energijo za zmanjšan vpliv na okolje in nižje obratovalne stroške, pametnimi vodnimi ventili, ki bodo v primeru puščanja avtomatsko zaprli glavne dovodne ventile. Za gradnjo nepremičnin bodo uporabljeni kakovostni negorljivi in protizvočni materiali, zagotovljen bo videofon z nadzorom in etažni protipožarni sistem, stavba bo opremljena z notranjim dvigalom, ki bo olajšalo dostop do stanovanjskih enot, medtem ko bo stavbno pohištvo PVC s elektro dvigalniki, povezanimi z wi-fi omrežjem, ter možnostjo upravljanja na daljavo. Osvetljava v kopalnici, hodnikih in kuhinji bo lahko izbrana vnaprej, medtem ko bo talno ogrevanje nameščeno v kopalnici, v stanovanju pa bodo tri enote klimatskih naprav. Možnost postavitve kuhinje po meri s Siemens belo tehniko in možnostjo montaže.
Odlična lokacija, blizu morja, le nekaj minut vožnje od Pule.
Stanovanju pripadata 2 parkirna mesta.
Ta nepremičnina je popolna izbira za tiste, ki iščejo moderno domovanje blizu morja, idealno za celoletno bivanje in poletne počitnice.
Za dodatne informacije, prosimo, kontaktirajte:
Azra
+385 91 611 5706
+385 98 420 885
azra@almadominvest.com
Spletna povezava
Zemljevid
Dodatne informacije
Ogrevanje
Podatki o objektu
Lega stanovanja
Kopalnica
ALMA DOM
Vsi oglasi te trgovine
Uporabnik je telefonsko številko preveril v državi Hrvaška
- Naslov: Hrvaška, Hrvaška
- URL: https://therealestatecroatia.com/
-
- Oglas je objavljen
- 24.11.2025. ob 07:31
- Do poteka še
- do prodaje
- Oglas je prikazan
- 246 -krat
ALMA DOM
Vsi oglasi te trgovine
Uporabnik je telefonsko številko preveril v državi Hrvaška
- Naslov: Hrvaška, Hrvaška
- URL: https://therealestatecroatia.com/
-

















