Prodaja - Moderno stanovanje v novem zasebnem stanovanjskem kompleksu (prodaja)
- Cena
- 338.000 €
Šifra oglasa: 15127532
-
- Bivalna površina
- 77,40 m²
-
- Vrsta stanovanja
- 2-sobno
-
- Leto izgradnje
- 2025
Osnovne informacije
- Vrsta ponudbe
- Prodam
- Lokacija
- Izven Slovenije - Hrvaška, Istrska, Pula
- Nadstropje
- 2.
- Skupno število nadstropij v stavbi
- 3
- Vrsta stanovanja
- 2-sobno
- Bivalna površina
- 77,40 m²
- Leto izgradnje
- 2025
- Energetski razred
- A (16 do 25 kWh/m2a) - HR
- Vrsta cene
- Skupna cena
- Interna številka oglasa
- 25111
Opis oglasa
Novo v ponudbi!!!
Na prodajo je moden stan, ki se nahaja na atraktivni lokaciji na vstopu v Pulo, v mirnem in urejenem delu mesta. Projekt obsega šest stanovanjskih zgradb s skupno 24 stanovanji, celoten kompleks pa bo zaprtega in zasebnega tipa, idealen za mirno in varno življenje.
V neposredni bližini se nahajajo vsi pomembni sadržaji – šole, vrtci, trgovski centri, javni prevoz, park-šuma, popolna za sprehode, rekreacijo in bivanje v naravi.
Načrtovan zaključek gradnje je spomladi 2027, z vsemi potrebnimi dovoljenji in energetsko certifikacijo visoke učinkovitosti.
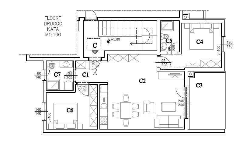
Stan F-C se nahaja v drugem nadstropju zgradbe F in obsega skupno površino 87,31 m², vključno s stanovanjskim delom, ložo, dvema parkirnima mestoma in shrambo.
Stanovanjski prostor v velikosti 77,40 m² obsega dnevno sobo s kuhinjo in jedilnico, dve spalnici, 2 kopalnici, hodnik, shrambo in ložo, ki nudi prijeten prostor za sprostitev.
Ob stanovanju sta na voljo dve parkirni mesti in shramba v pritličju zgradbe.
Posebna pozornost je namenjena kakovosti gradnje in končnim podrobnostim.
Značilnosti gradnje:
Stanovanja so energetske razreda A/A+, z toplotno izolacijo debeline 10 cm, protivlomnimi vhodnimi vrati, PVC stavbnim pohištvom z IZO stekli in roletami ter moderno keramiko v vseh prostorih.
Na ložah je nameščena protizdrsna keramika, medtem ko so v dnevni sobi, kuhinji in kopalnici predvideni klimatske naprave in električno talno ogrevanje.
V kopalnicah so vgrajeni tudi električni radiatorji s sušilci in termostatom.
Okolica zgradbe bo urejena s pozornostjo na podrobnosti – zelene površine z avtohtonim rastlinjem, travnik z avtomatskim namakanjem, tlakovane poti in LED osvetlitev z detektorji gibanja ustvarjajo prijetno in varno okolje.
Ta del mesta se odlikuje z odlično prometno povezanostjo, hitro dostopnostjo do centra Pule in vseh glavnih prometnic.
Ta nepremičnina je idealna za družinsko življenje ali naložbo v kakovostno novogradnjo.
Za dodatne informacije, prosimo, kontaktirajte:
Azra
+385 91 611 5706
+385 98 420 885
azra@almadominvest.com
Na prodajo je moden stan, ki se nahaja na atraktivni lokaciji na vstopu v Pulo, v mirnem in urejenem delu mesta. Projekt obsega šest stanovanjskih zgradb s skupno 24 stanovanji, celoten kompleks pa bo zaprtega in zasebnega tipa, idealen za mirno in varno življenje.
V neposredni bližini se nahajajo vsi pomembni sadržaji – šole, vrtci, trgovski centri, javni prevoz, park-šuma, popolna za sprehode, rekreacijo in bivanje v naravi.
Načrtovan zaključek gradnje je spomladi 2027, z vsemi potrebnimi dovoljenji in energetsko certifikacijo visoke učinkovitosti.
Stan F-C se nahaja v drugem nadstropju zgradbe F in obsega skupno površino 87,31 m², vključno s stanovanjskim delom, ložo, dvema parkirnima mestoma in shrambo.
Stanovanjski prostor v velikosti 77,40 m² obsega dnevno sobo s kuhinjo in jedilnico, dve spalnici, 2 kopalnici, hodnik, shrambo in ložo, ki nudi prijeten prostor za sprostitev.
Ob stanovanju sta na voljo dve parkirni mesti in shramba v pritličju zgradbe.
Posebna pozornost je namenjena kakovosti gradnje in končnim podrobnostim.
Značilnosti gradnje:
Stanovanja so energetske razreda A/A+, z toplotno izolacijo debeline 10 cm, protivlomnimi vhodnimi vrati, PVC stavbnim pohištvom z IZO stekli in roletami ter moderno keramiko v vseh prostorih.
Na ložah je nameščena protizdrsna keramika, medtem ko so v dnevni sobi, kuhinji in kopalnici predvideni klimatske naprave in električno talno ogrevanje.
V kopalnicah so vgrajeni tudi električni radiatorji s sušilci in termostatom.
Okolica zgradbe bo urejena s pozornostjo na podrobnosti – zelene površine z avtohtonim rastlinjem, travnik z avtomatskim namakanjem, tlakovane poti in LED osvetlitev z detektorji gibanja ustvarjajo prijetno in varno okolje.
Ta del mesta se odlikuje z odlično prometno povezanostjo, hitro dostopnostjo do centra Pule in vseh glavnih prometnic.
Ta nepremičnina je idealna za družinsko življenje ali naložbo v kakovostno novogradnjo.
Za dodatne informacije, prosimo, kontaktirajte:
Azra
+385 91 611 5706
+385 98 420 885
azra@almadominvest.com
Spletna povezava
Zemljevid
Dodatne informacije
Ogrevanje
Kopalnica
ALMA DOM
Vsi oglasi te trgovine
Uporabnik je telefonsko številko preveril v državi Hrvaška
- Naslov: Hrvaška, Hrvaška
- URL: https://therealestatecroatia.com/
-
- Oglas je objavljen
- 27.11.2025. ob 08:36
- Do poteka še
- do prodaje
- Oglas je prikazan
- 317 -krat
ALMA DOM
Vsi oglasi te trgovine
Uporabnik je telefonsko številko preveril v državi Hrvaška
- Naslov: Hrvaška, Hrvaška
- URL: https://therealestatecroatia.com/
-



















