Prodajajo se apartmaji v moderni novogradnji z bazenom, Fažana! (prodaja)
- Cena
- 217.566 €
Šifra oglasa: 15299341
-
- Bivalna površina
- 47,28 m²
-
- Vrsta stanovanja
- 1-sobno
-
- Leto izgradnje
- 2025
Osnovne informacije
- Vrsta ponudbe
- Prodam
- Lokacija
- Izven Slovenije - Hrvaška, Istrska, Fažana
- Nadstropje
- Pritličje
- Skupno število nadstropij v stavbi
- 3
- Vrsta stanovanja
- 1-sobno
- Bivalna površina
- 47,28 m²
- Leto izgradnje
- 2025
- Število parkirnih mest
- 1
- Energetski razred
- A+ (0 do 15 kWh/m2a) - HR
- Vrsta cene
- Skupna cena
- Interna številka oglasa
- 25857
Opis oglasa
Novo v ponudbi!
V čudoviti Fažani vam ponujamo moderna stanovanja v novogradnji z bazenom, ki se nahaja v okviru atraktivnega projekta, ki ga sestavljajo štirje objekti s skupno 23 stanovanji različnih velikosti in razporeditev. Projekt se nahaja na odlični lokaciji - mirno okolje v bližini morja in vseh pomembnih ugodnosti.
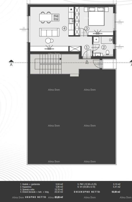
Apartma A1 se nahaja v pritličju trinadstropne stavbe.
Stanovanje obsega vhodno dvorano, garderobo, dnevno sobo s kuhinjo in jedilnico, spalnico, kopalnico.
Vrt 5,41 m² – idealen za sprostitev in uživanje.
Oprema in standard:
Talno ogrevanje v kopalnicah.
Visokokakovostne keramične ploščice.
PVC stavbno pohištvo francoskega tipa z žaluzijami in komarniki.
Kopalniška oprema priznanih proizvajalcev.
Klimatska naprava.
Vhodna vrata proti vlomu.
Možnost izbire končne talne obloge - keramika, parket ali laminat v spalnicah.
1 parkirno mesto vključeno v ceno.
Nepremičnina je idealna za celoletno bivanje, počitnice ali kot naložba za turistični najem.
Za dodatne informacije se obrnite na:
Azra:
+385 91 611 5706
+385 98 420 885
azra@almadominvest.com
V čudoviti Fažani vam ponujamo moderna stanovanja v novogradnji z bazenom, ki se nahaja v okviru atraktivnega projekta, ki ga sestavljajo štirje objekti s skupno 23 stanovanji različnih velikosti in razporeditev. Projekt se nahaja na odlični lokaciji - mirno okolje v bližini morja in vseh pomembnih ugodnosti.
Apartma A1 se nahaja v pritličju trinadstropne stavbe.
Stanovanje obsega vhodno dvorano, garderobo, dnevno sobo s kuhinjo in jedilnico, spalnico, kopalnico.
Vrt 5,41 m² – idealen za sprostitev in uživanje.
Oprema in standard:
Talno ogrevanje v kopalnicah.
Visokokakovostne keramične ploščice.
PVC stavbno pohištvo francoskega tipa z žaluzijami in komarniki.
Kopalniška oprema priznanih proizvajalcev.
Klimatska naprava.
Vhodna vrata proti vlomu.
Možnost izbire končne talne obloge - keramika, parket ali laminat v spalnicah.
1 parkirno mesto vključeno v ceno.
Nepremičnina je idealna za celoletno bivanje, počitnice ali kot naložba za turistični najem.
Za dodatne informacije se obrnite na:
Azra:
+385 91 611 5706
+385 98 420 885
azra@almadominvest.com
Spletna povezava
Zemljevid
Dodatne informacije
Ogrevanje
Kopalnica
ALMA DOM
Vsi oglasi te trgovine
Uporabnik je telefonsko številko preveril v državi Hrvaška
- Naslov: Hrvaška, Hrvaška
- URL: https://therealestatecroatia.com/
-
- Oglas je objavljen
- 19.12.2025. ob 01:24
- Do poteka še
- do prodaje
- Oglas je prikazan
- 19 -krat
ALMA DOM
Vsi oglasi te trgovine
Uporabnik je telefonsko številko preveril v državi Hrvaška
- Naslov: Hrvaška, Hrvaška
- URL: https://therealestatecroatia.com/
-











