Ta oglas ni aktiven.
Prebrskaj podobne oglase.
Pula, nov projekt! Večstanovanjska stavba z dvigalom, Monvidal. (prodaja)
- Cena
- 166.253 €
Šifra oglasa: 14144296
-
- Bivalna površina
- 55,29 m²
-
- Vrsta stanovanja
- 2-sobno
-
- Leto izgradnje
- 2023
Osnovne informacije
- Vrsta ponudbe
- Prodam
- Lokacija
- Izven Slovenije - Hrvaška, Istrska, Pula
- Nadstropje
- 1.
- Skupno število nadstropij v stavbi
- 7
- Vrsta stanovanja
- 2-sobno
- Bivalna površina
- 55,29 m²
- Leto izgradnje
- 2023
- Število parkirnih mest
- 1
- Energetski razred
- A+ (0 do 15 kWh/m2a) - HR
- Vrsta cene
- Skupna cena
- Interna številka oglasa
- 21213
Opis oglasa
Nov projekt, Pula!
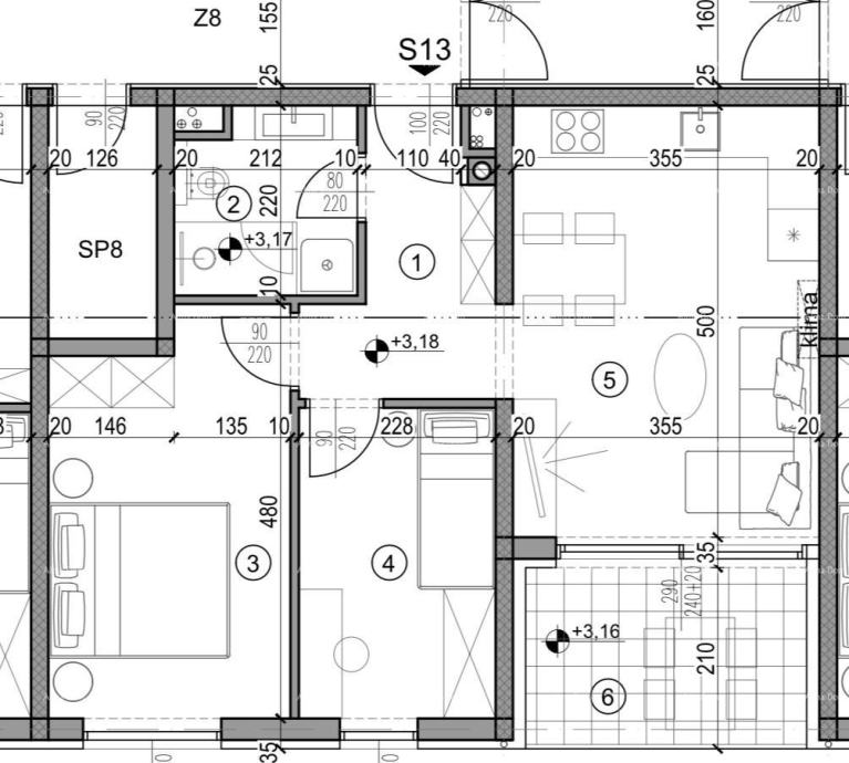
Na voljo je stanovanje v 1. nadstropju večstanovanjske zgradbe z dvigalom. Stanovanje bo sestavljeno iz vhodnega hodnika s garderobo, 2 spalnic, kopalnice, kuhinje s jedilnico, dnevne sobe in loggie.
OPREMA:
-električno talno ogrevanje v kopalnici
-električni bojler Ariston Velis
-protivlomna vhodna vrata
-inverter klimatska naprava
-keramika
-laminat
-notranja bela sobna vrata
Stanovanja se prodajajo dokončana, po sistemu "ključ v roke".
Odlična lokacija. Bližina nakupovalnega centra ter samega središča Pule - 1 km.
Zgradba bo imela dva vhoda, dva dvigala, 6 nadstropij.
Več prostih stanovanj v ponudbi.
Stanovanju pripada shramba velikosti 3,39 m2 in parkirno mesto, ki se dodatno zaračunata.
Cena stanovanja s parkirnim mestom in shrambo: 178.523 evrov.
*V ceno je vključen DDV.
Načrtovan zaključek gradbenih del je začetek leta 2026. Sprejemamo rezervacije.
Za več informacij, prosimo, kontaktirajte:
Azra Valjevac
+385 91 611 5706
+385 98 420 885
azra@almadominvest.com
www.almadom.com
Na voljo je stanovanje v 1. nadstropju večstanovanjske zgradbe z dvigalom. Stanovanje bo sestavljeno iz vhodnega hodnika s garderobo, 2 spalnic, kopalnice, kuhinje s jedilnico, dnevne sobe in loggie.
OPREMA:
-električno talno ogrevanje v kopalnici
-električni bojler Ariston Velis
-protivlomna vhodna vrata
-inverter klimatska naprava
-keramika
-laminat
-notranja bela sobna vrata
Stanovanja se prodajajo dokončana, po sistemu "ključ v roke".
Odlična lokacija. Bližina nakupovalnega centra ter samega središča Pule - 1 km.
Zgradba bo imela dva vhoda, dva dvigala, 6 nadstropij.
Več prostih stanovanj v ponudbi.
Stanovanju pripada shramba velikosti 3,39 m2 in parkirno mesto, ki se dodatno zaračunata.
Cena stanovanja s parkirnim mestom in shrambo: 178.523 evrov.
*V ceno je vključen DDV.
Načrtovan zaključek gradbenih del je začetek leta 2026. Sprejemamo rezervacije.
Za več informacij, prosimo, kontaktirajte:
Azra Valjevac
+385 91 611 5706
+385 98 420 885
azra@almadominvest.com
www.almadom.com
Spletna povezava
Zemljevid
Dodatne informacije
Ogrevanje
Podatki o objektu
Kopalnica
- Oglas je objavljen
- 01.05.2025. ob 06:11
- Do poteka še
- oglas je potekel
- Oglas je prikazan
- 72 -krat



















