Ta oglas ni aktiven.
Prebrskaj podobne oglase.
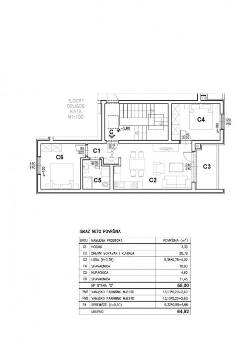
Šijana 65m2 (prodaja)
- Cena
- 199.000 €
-
Želite na boljše? Preverite stanovanjski kredit OTP banke.OglasOglaševalec OTP banka d.d.
Zakaj vidim ta oglas?
Uporaba omejenih podatkov za izbiro oglasov: oglasi, ki se vam prikazujejo v tej storitvi, lahko temeljijo na omejenih podatkih, kot so spletna stran ali aplikacija, ki jo trenutno uporabljate, vaša približna lokacija, vrsta naprave ali vsebine, s katerimi ste bili v interakciji (npr. za omejevanje pogostosti prikazovanja oglasov).
Šifra oglasa: 15165961
-
- Bivalna površina
- 65,00 m²
-
- Vrsta stanovanja
- 3-sobno
Osnovne informacije
- Vrsta ponudbe
- Prodam
- Lokacija
- Izven Slovenije - Hrvaška, Istrska, Pula
- Umeščenost stanovanja
- V večstanovanjski stavbi
- Nadstropje
- 2.
- Vrsta stanovanja
- 3-sobno
- Bivalna površina
- 65,00 m²
- Število parkirnih mest
- 2
- Balkon / terasa / atrij
- Zaprt balkon
- Energetski razred
- A+ (0 do 15 kWh/m2a) - HR
- Vrsta cene
- Skupna cena
- Interna številka oglasa
- 1692
Opis oglasa
ID KOD AGENCIJE: 1692
Malupe nekretnine
Mob: +385 98 980 1155
Tel: 052 210 037
E-mail: malupe.pu@gmail.com
www.malupe.com
Malupe nekretnine
Mob: +385 98 980 1155
Tel: 052 210 037
E-mail: malupe.pu@gmail.com
www.malupe.com
Spletna povezava
Zemljevid
Dodatne informacije
Možnosti parkiranja
- Oglas je objavljen
- 08.01.2026. ob 13:18
- Do poteka še
- oglas je potekel
- Oglas je prikazan
- 51 -krat



















