Opatija - Udobno 2 sobno stanovanje s fantastičnim razgledom (prodaja)
- Cena
- 650.000 €
-
OglasOglaševalec OTP banka d.d.
Zakaj vidim ta oglas?
Uporaba omejenih podatkov za izbiro oglasov: oglasi, ki se vam prikazujejo v tej storitvi, lahko temeljijo na omejenih podatkih, kot so spletna stran ali aplikacija, ki jo trenutno uporabljate, vaša približna lokacija, vrsta naprave ali vsebine, s katerimi ste bili v interakciji (npr. za omejevanje pogostosti prikazovanja oglasov).
Šifra oglasa: 10703966
-
- Bivalna površina
- 157,84 m²
-
- Vrsta stanovanja
- 3-sobno
-
- Leto izgradnje
- 1980
Osnovne informacije
- Vrsta ponudbe
- Prodam
- Lokacija
- Izven Slovenije - Hrvaška, Primorsko-goranska, Opatija
- Umeščenost stanovanja
- V hiši
- Nadstropje
- 1.
- Skupno število nadstropij v stavbi
- 2
- Vrsta stanovanja
- 3-sobno
- Bivalna površina
- 157,84 m²
- Leto izgradnje
- 1980
- Število parkirnih mest
- 1
- Balkon / terasa / atrij
- Balkon, Terasa
- Vrsta cene
- Skupna cena
- Interna številka oglasa
- 101-063
Opis oglasa
Nepremičninska agencija Kaiser Immobilien iz Opatije predstavlja iz svoje ponudbe prostorno in udobno stanovanje, ki se nahaja v novejši vili s skupno tremi apartmaji, ki se nahaja na maksimalno mirni lokaciji v neposredni bližini centra Opatije in obale.
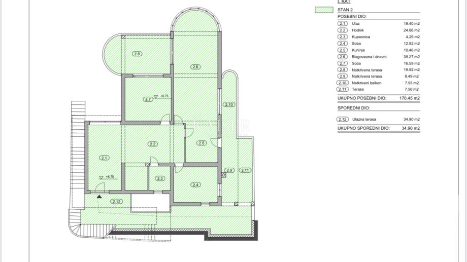
Stanovanje se nahaja v 1. nadstropju in ponuja zelo funkcionalno razporeditev prostorov.
Stanovanje obsega predsobo, hodnik, dnevno sobo odprtega tipa s kuhinjo in jedilnico, dve spalnici, dve kopalnici, dve pokriti terasi, pokrit balkon in eno nepokrito teraso.
Skupna površina stanovanja brez zunanjih delov je 126,55 m2, terase in balkoni dodajo še 78,80 m2.
Stanovanju pripada tudi nepokrito parkirno mesto v izmeri 12,50 m2.
Skupna površina nepremičnine je 217,85 m2, neto površina z upoštevanjem pripadajočih koeficientov pa 157,84 m2.
V stanovanju so izvedene priprave za vgradnjo klime, ogrevanje je centralno na kurilno olje, v kopalnicah je vgrajeno električno talno ogrevanje.
Stanovanje se prodaja brez pohištva, ki si ga lahko novi lastniki izberejo po svojem okusu in potrebah.
Sama vila, v kateri se nahaja apartma, je zgrajena na pobočju in je na severovzhodni in severozahodni strani obdana z zelenjem.
Iz skoraj vseh delov apartmaja je res fenomenalen panoramski pogled na morje.
Terase in balkoni se raztezajo tako rekoč v vse smeri in imajo skupno površino skoraj 80 m2.
Poleg celotnega Kvarnerskega zaliva bodo novi lastniki imeli na dlani tudi zgodovinsko jedro Opatije z glavno plažo Slatina ali Reka.
Zahvaljujoč velikim steklenim površinam in skoraj popolni orientaciji je stanovanje polno dnevne svetlobe in sonca skozi ves dan.
Stanovanju pripada eno parkirno mesto pred vilo.
Vrt vile je skupen.
Idealna nepremičnina za družinsko življenje z vsemi dobrinami v neposredni bližini ali odlična investicijska priložnost za namen elitnega turizma.
Prodajata se tudi druga dva apartmaja, lahko pa se kupi vila kot celota.
Obala in plaža: 650 m / 9 minut hoje
Restavracija: 900 m / 13 minut hoje
Center Opatije: 1,2 km / 15 minut hoje
Center Reke: 12 km / 20 minut
Letališče Rijeka: 35 km / 30 minut
Letališče Pula: 95 km / 60 minut
Zagreb, Ljubljana: 120 km
Budimpešta, Dunaj, München: 500 km
Agencijska provizija za kupca znaša 3% + DDV.
Provizija zajema vse storitve v zvezi z nakupom in se plača samo v primeru nakupa nepremičnine, ob sklenitvi prvega pravnega posla.
Kupnina nepremičnine: 650.000,00 EUR
Provizija (3,75%): 24.375,00 EUR
Celotna naložba: 674.375,00 EUR
Za podrobnejše informacije se obrnite na:
Jirka Nerad
Telefon: +385 911 632 884
Elektronski naslov: jirka@kaiser-immobilien.hr
Hvala!
ID KOD AGENCIJE: 101-063
Jirka Nerad
Agent s licencom u posredovanju u prometu nekretnina
Mob: +385911632884, +385995677888
E-mail: jirka@kaiser-immobilien.hr
www.kaiser-immobilien.hr
Stanovanje se nahaja v 1. nadstropju in ponuja zelo funkcionalno razporeditev prostorov.
Stanovanje obsega predsobo, hodnik, dnevno sobo odprtega tipa s kuhinjo in jedilnico, dve spalnici, dve kopalnici, dve pokriti terasi, pokrit balkon in eno nepokrito teraso.
Skupna površina stanovanja brez zunanjih delov je 126,55 m2, terase in balkoni dodajo še 78,80 m2.
Stanovanju pripada tudi nepokrito parkirno mesto v izmeri 12,50 m2.
Skupna površina nepremičnine je 217,85 m2, neto površina z upoštevanjem pripadajočih koeficientov pa 157,84 m2.
V stanovanju so izvedene priprave za vgradnjo klime, ogrevanje je centralno na kurilno olje, v kopalnicah je vgrajeno električno talno ogrevanje.
Stanovanje se prodaja brez pohištva, ki si ga lahko novi lastniki izberejo po svojem okusu in potrebah.
Sama vila, v kateri se nahaja apartma, je zgrajena na pobočju in je na severovzhodni in severozahodni strani obdana z zelenjem.
Iz skoraj vseh delov apartmaja je res fenomenalen panoramski pogled na morje.
Terase in balkoni se raztezajo tako rekoč v vse smeri in imajo skupno površino skoraj 80 m2.
Poleg celotnega Kvarnerskega zaliva bodo novi lastniki imeli na dlani tudi zgodovinsko jedro Opatije z glavno plažo Slatina ali Reka.
Zahvaljujoč velikim steklenim površinam in skoraj popolni orientaciji je stanovanje polno dnevne svetlobe in sonca skozi ves dan.
Stanovanju pripada eno parkirno mesto pred vilo.
Vrt vile je skupen.
Idealna nepremičnina za družinsko življenje z vsemi dobrinami v neposredni bližini ali odlična investicijska priložnost za namen elitnega turizma.
Prodajata se tudi druga dva apartmaja, lahko pa se kupi vila kot celota.
Obala in plaža: 650 m / 9 minut hoje
Restavracija: 900 m / 13 minut hoje
Center Opatije: 1,2 km / 15 minut hoje
Center Reke: 12 km / 20 minut
Letališče Rijeka: 35 km / 30 minut
Letališče Pula: 95 km / 60 minut
Zagreb, Ljubljana: 120 km
Budimpešta, Dunaj, München: 500 km
Agencijska provizija za kupca znaša 3% + DDV.
Provizija zajema vse storitve v zvezi z nakupom in se plača samo v primeru nakupa nepremičnine, ob sklenitvi prvega pravnega posla.
Kupnina nepremičnine: 650.000,00 EUR
Provizija (3,75%): 24.375,00 EUR
Celotna naložba: 674.375,00 EUR
Za podrobnejše informacije se obrnite na:
Jirka Nerad
Telefon: +385 911 632 884
Elektronski naslov: jirka@kaiser-immobilien.hr
Hvala!
ID KOD AGENCIJE: 101-063
Jirka Nerad
Agent s licencom u posredovanju u prometu nekretnina
Mob: +385911632884, +385995677888
E-mail: jirka@kaiser-immobilien.hr
www.kaiser-immobilien.hr
Spletna povezava
Zemljevid
Dodatne informacije
Ogrevanje
Podatki o objektu
Možnosti parkiranja
Kaiser-Immobilien d.o.o.
Vsi oglasi te trgovine
Uporabnik je telefonsko številko preveril v državi Hrvaška
- Naslov: Maršala Tita 97, 51410 Opatija, Hrvaška, Hrvaška
- URL: https://kaiser-immobilien.hr/
-
- Oglas je objavljen
- 22.04.2026. ob 13:30
- Do poteka še
- do prodaje
- Oglas je prikazan
- 216 -krat
Kaiser-Immobilien d.o.o.
Vsi oglasi te trgovine
Uporabnik je telefonsko številko preveril v državi Hrvaška
- Naslov: Maršala Tita 97, 51410 Opatija, Hrvaška, Hrvaška
- URL: https://kaiser-immobilien.hr/
-



















