Prodaja stanov v novem stanovanjskem kompleksu, Štinjan! 9B (prodaja)
- Cena
- 172.125 €
Šifra oglasa: 14023026
-
- Bivalna površina
- 45,59 m²
-
- Vrsta stanovanja
- 1-sobno
-
- Leto izgradnje
- 2025
Osnovne informacije
- Vrsta ponudbe
- Prodam
- Lokacija
- Izven Slovenije - Hrvaška, Istrska, Ližnjan
- Nadstropje
- 1.
- Skupno število nadstropij v stavbi
- 3
- Vrsta stanovanja
- 1-sobno
- Bivalna površina
- 45,59 m²
- Leto izgradnje
- 2025
- Število parkirnih mest
- 1
- Energetski razred
- A+ (0 do 15 kWh/m2a) - HR
- Vrsta cene
- Skupna cena
- Interna številka oglasa
- 20844
Opis oglasa
Prodajemo stan v novem stanovanjski komplekso, v Štinjanu. Kompleks obsega 19 stanovanjskih dvonadstandarnih zgrad. Lokacija novega stanovanjskega kompleksa je odlična, le kilometer oddaljena od centra Štinjana in v neposredni bližini osnovne šole, otroškega vrtca, mestne plaže Hidrobaza, lekarne ter le štiri kilometre od centra mesta Pule in tri kilometre od centra naselja Fažana.
Dostop do stanovanjskega kompleksa je zagotovljen z asfaltirane površine, v okviru katere se bo nahajala vsa potrebna infrastruktura (elektrika, voda, kanalizacija).
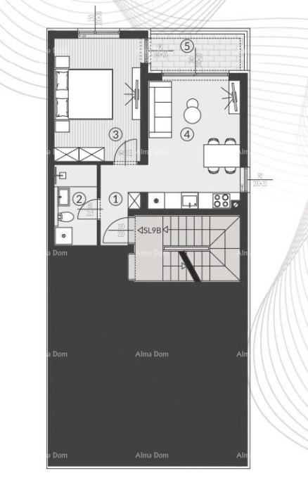
Stan oznake 9B se nahaja v 1. nadstropju zgradbe in obsega: hodnik, dnevno sobo s kuhinjo in jedilnico, spalnico, kopalnico in teraso.
Kar naredi ta projekt poseben je arhitekturna rešitev fasade stanovanjskih zgradb ter zeleni strehi, ki se pojavljata na fasadi.
Vsaki stanovanjski enoti je zagotovljen potreben številu parkirnih mest v skladu z urbanističnim načrtom mesta Pule, dimenzij 2,50m x 5,00m. Vsakemu parkirnemu mestu je zasnovan prihodnji priključek na elektroenergetsko omrežje z namenom povezovanja polnilnikov za električna vozila.
Ta stan vključuje 1 parkirno mesto in shrambo, kar je vključeno v ceno.
Sprejemamo rezervacije!
Za dodatne informacije, prosimo, kontaktirajte:
Azra
+385 91 611 5706
+385 98 420 885
azra@almadominvest.com
Dostop do stanovanjskega kompleksa je zagotovljen z asfaltirane površine, v okviru katere se bo nahajala vsa potrebna infrastruktura (elektrika, voda, kanalizacija).
Stan oznake 9B se nahaja v 1. nadstropju zgradbe in obsega: hodnik, dnevno sobo s kuhinjo in jedilnico, spalnico, kopalnico in teraso.
Kar naredi ta projekt poseben je arhitekturna rešitev fasade stanovanjskih zgradb ter zeleni strehi, ki se pojavljata na fasadi.
Vsaki stanovanjski enoti je zagotovljen potreben številu parkirnih mest v skladu z urbanističnim načrtom mesta Pule, dimenzij 2,50m x 5,00m. Vsakemu parkirnemu mestu je zasnovan prihodnji priključek na elektroenergetsko omrežje z namenom povezovanja polnilnikov za električna vozila.
Ta stan vključuje 1 parkirno mesto in shrambo, kar je vključeno v ceno.
Sprejemamo rezervacije!
Za dodatne informacije, prosimo, kontaktirajte:
Azra
+385 91 611 5706
+385 98 420 885
azra@almadominvest.com
Spletna povezava
Zemljevid
Dodatne informacije
Ogrevanje
Lega stanovanja
Kopalnica
ALMA DOM
Vsi oglasi te trgovine
Uporabnik je telefonsko številko preveril v državi Hrvaška
- Naslov: Hrvaška, Hrvaška
- URL: https://therealestatecroatia.com/
-
- Oglas je objavljen
- 16.12.2025. ob 07:11
- Do poteka še
- do prodaje
- Oglas je prikazan
- 349 -krat
ALMA DOM
Vsi oglasi te trgovine
Uporabnik je telefonsko številko preveril v državi Hrvaška
- Naslov: Hrvaška, Hrvaška
- URL: https://therealestatecroatia.com/
-















