Sure! Please provide the title you would like me to translate into Slo (prodaja)
- Cena
- 325.000 €
-
Želite na boljše? Preverite stanovanjski kredit OTP banke.OglasOglaševalec OTP banka d.d.
Zakaj vidim ta oglas?
Uporaba omejenih podatkov za izbiro oglasov: oglasi, ki se vam prikazujejo v tej storitvi, lahko temeljijo na omejenih podatkih, kot so spletna stran ali aplikacija, ki jo trenutno uporabljate, vaša približna lokacija, vrsta naprave ali vsebine, s katerimi ste bili v interakciji (npr. za omejevanje pogostosti prikazovanja oglasov).
Šifra oglasa: 15170763
-
- Bivalna površina
- 97,00 m²
-
- Vrsta stanovanja
- 3-sobno
-
- Leto izgradnje
- 2025
Osnovne informacije
- Vrsta ponudbe
- Prodam
- Lokacija
- Izven Slovenije - Hrvaška, Istrska, Pula
- Nadstropje
- 2.
- Skupno število nadstropij v stavbi
- 3
- Vrsta stanovanja
- 3-sobno
- Bivalna površina
- 97,00 m²
- Leto izgradnje
- 2025
- Število parkirnih mest
- 1
- Energetski razred
- A+ (0 do 15 kWh/m2a) - HR
- Vrsta cene
- Skupna cena
- Interna številka oglasa
- 25325
Opis oglasa
Prodajamo stan v gradnji na odlični lokaciji.
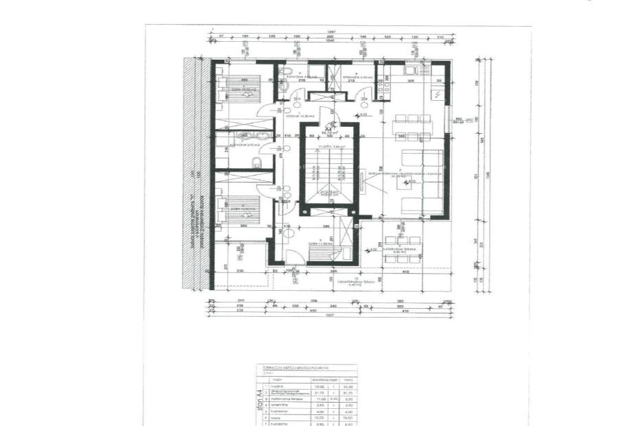
Stan se nahaja v drugem nadstropju in je edini stan na tem nadstropju.
Sestavljen je iz treh spalnic, dveh kopalnic, shrambe, kuhinje, jedilnice in dnevne sobe, iz katere se izhaja na pokrito teraso.
Dnevna soba, jedilnica, kuhinja in kopalnica imajo talno ogrevanje.
Stanu pripadata dva parkirna mesta, eno (pokrito) in eno (nepokrito), ter shramba, ki sta vključena v ceno.
Načrtovani rok za zaključek del je september 2026.
Za več informacij smo vam na voljo:
Info: Azra Valjevac +385 91 611 5706
Email: azra@almadominvest.com
www.almadom.com
Kontakt: Gojko Đurković +385 95 4700000
Email: gojko@alma-nekretnine.com
Stan se nahaja v drugem nadstropju in je edini stan na tem nadstropju.
Sestavljen je iz treh spalnic, dveh kopalnic, shrambe, kuhinje, jedilnice in dnevne sobe, iz katere se izhaja na pokrito teraso.
Dnevna soba, jedilnica, kuhinja in kopalnica imajo talno ogrevanje.
Stanu pripadata dva parkirna mesta, eno (pokrito) in eno (nepokrito), ter shramba, ki sta vključena v ceno.
Načrtovani rok za zaključek del je september 2026.
Za več informacij smo vam na voljo:
Info: Azra Valjevac +385 91 611 5706
Email: azra@almadominvest.com
www.almadom.com
Kontakt: Gojko Đurković +385 95 4700000
Email: gojko@alma-nekretnine.com
Spletna povezava
Zemljevid
Dodatne informacije
Ogrevanje
Kopalnica
ALMA DOM
Vsi oglasi te trgovine
Uporabnik je telefonsko številko preveril v državi Hrvaška
- Naslov: Hrvaška, Hrvaška
- URL: https://therealestatecroatia.com/
-
- Oglas je objavljen
- 26.01.2026. ob 08:59
- Do poteka še
- do prodaje
- Oglas je prikazan
- 53 -krat
ALMA DOM
Vsi oglasi te trgovine
Uporabnik je telefonsko številko preveril v državi Hrvaška
- Naslov: Hrvaška, Hrvaška
- URL: https://therealestatecroatia.com/
-



