Ta oglas ni aktiven.
Prebrskaj podobne oglase.
-
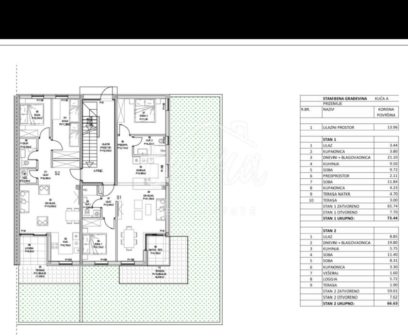
- Bivalna površina
- 66,63 m²
-
- Vrsta stanovanja
- 3-sobno
Osnovne informacije
- Vrsta ponudbe
- Prodam
- Lokacija
- Izven Slovenije - Hrvaška, Istrska, Barban
- Umeščenost stanovanja
- V večstanovanjski stavbi
- Nadstropje
- Pritličje
- Skupno število nadstropij v stavbi
- 1
- Vrsta stanovanja
- 3-sobno
- Bivalna površina
- 66,63 m²
- Balkon / terasa / atrij
- Terasa
- Vrsta cene
- Skupna cena
- Interna številka oglasa
- 6180
Opis oglasa
ID KOD AGENCIJE: 6180
Ana Gulin
Mob: 095 3908636
E-mail: ana@terra-realestate.eu
www.terra-realestate.eu
Ana Gulin
Mob: 095 3908636
E-mail: ana@terra-realestate.eu
www.terra-realestate.eu
Zemljevid
Dodatne informacije
Ogrevanje
Podatki o objektu
Funkcionalnost in lastnosti
- Oglas je objavljen
- 24.02.2025. ob 13:07
- Do poteka še
- oglas je potekel
- Oglas je prikazan
- 95 -krat


