-
- Bivalna površina
- 92,57 m²
-
- Vrsta stanovanja
- 4-sobno
Osnovne informacije
- Vrsta ponudbe
- Prodam
- Lokacija
- Izven Slovenije - Hrvaška, Primorsko-goranska, Omišalj
- Umeščenost stanovanja
- V večstanovanjski stavbi
- Nadstropje
- 1.
- Skupno število nadstropij v stavbi
- 1
- Vrsta stanovanja
- 4-sobno
- Bivalna površina
- 92,57 m²
- Število parkirnih mest
- 2
- Balkon / terasa / atrij
- Balkon, Terasa
- Vrsta cene
- Skupna cena
- Interna številka oglasa
- 2668
Opis oglasa
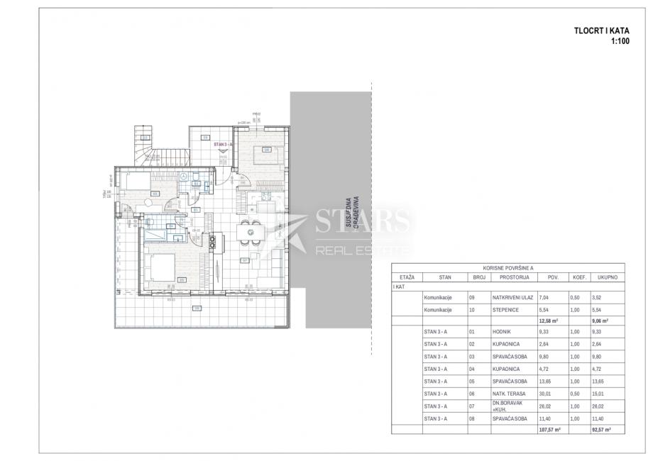
V Omišlju na otoku Krku je naprodaj moderno stanovanje 3S+DB s površino 92,57 m², v izgradnji, ki se nahaja v stanovanjski stavbi s skupno štirimi enotami.
Stavba je na koncu slepe ulice, kar zagotavlja popolno zasebnost in mir. Parcela meji na zeleno območje, kjer ni več možna gradnja, kar zagotavlja neoviran razgled in ohranjeno okolje.
Stanovanje obsega:
Tri spalnice (glavna spalnica ima svojo lastno kopalnico)
Dnevni prostor s kuhinjo in jedilnico
Dve kopalnici
Prostorno pokrito teraso (15,01 m²) z razgledom na morje
Skupna tlorisna površina s pripadajočimi prostori: 107,57 m²
Obračunska površina (s koeficienti): 92,57 m²
Stanovanju pripadata dve parkirni mesti, vključeni v ceno.
Stanovanje bo opremljeno s toplotnimi črpalkami, talnim gretjem v kopalnicah ter PVC stavbnim pohištvom, kar zagotavlja visoko energetsko učinkovitost in dodatno udobje.
Predviden zaključek gradnje: sredina leta 2027.
To stanovanje predstavlja idealno priložnost za mirno družinsko bivanje, počitniški oddih ali kot investicija na eni izmed najbolj iskanih lokacij na Jadranu.
Za več informacij ali dogovor za ogled nas kontaktirajte!
Stanovanje 3-A
ID KOD AGENCIJE: 2668
Mirjana Vadlja
Prodajni predstavnik
Mob: + 385 99 302 5010
Tel: +385 51 302 501
E-mail: mirjana.vadlja@starsrealestate.hr
https://starsrealestate.hr
Stavba je na koncu slepe ulice, kar zagotavlja popolno zasebnost in mir. Parcela meji na zeleno območje, kjer ni več možna gradnja, kar zagotavlja neoviran razgled in ohranjeno okolje.
Stanovanje obsega:
Tri spalnice (glavna spalnica ima svojo lastno kopalnico)
Dnevni prostor s kuhinjo in jedilnico
Dve kopalnici
Prostorno pokrito teraso (15,01 m²) z razgledom na morje
Skupna tlorisna površina s pripadajočimi prostori: 107,57 m²
Obračunska površina (s koeficienti): 92,57 m²
Stanovanju pripadata dve parkirni mesti, vključeni v ceno.
Stanovanje bo opremljeno s toplotnimi črpalkami, talnim gretjem v kopalnicah ter PVC stavbnim pohištvom, kar zagotavlja visoko energetsko učinkovitost in dodatno udobje.
Predviden zaključek gradnje: sredina leta 2027.
To stanovanje predstavlja idealno priložnost za mirno družinsko bivanje, počitniški oddih ali kot investicija na eni izmed najbolj iskanih lokacij na Jadranu.
Za več informacij ali dogovor za ogled nas kontaktirajte!
Stanovanje 3-A
ID KOD AGENCIJE: 2668
Mirjana Vadlja
Prodajni predstavnik
Mob: + 385 99 302 5010
Tel: +385 51 302 501
E-mail: mirjana.vadlja@starsrealestate.hr
https://starsrealestate.hr
Spletna povezava
Zemljevid
Dodatne informacije
Podatki o objektu
Stars Real Estate
Vsi oglasi te trgovine
Uporabnik je telefonsko številko preveril v državi Hrvaška
- Naslov: Ciottina 8c, 51000 Rijeka, Hrvaška, Hrvaška
-
- Oglas je objavljen
- 24.12.2025. ob 08:01
- Do poteka še
- do prodaje
- Oglas je prikazan
- 2195 -krat
Stars Real Estate
Vsi oglasi te trgovine
Uporabnik je telefonsko številko preveril v državi Hrvaška
- Naslov: Ciottina 8c, 51000 Rijeka, Hrvaška, Hrvaška
-











